查看完整案例

收藏

下载

翻译
Architects:Nigel Grigg Architects
Area:280m²
Year:2022
Photographs:Nigel Grigg
Manufacturers:Lysaght
Lead Architects:Nigel Grigg
Category:Houses
Lead Team:Nigel Grigg
Design Team:Kristen Phillips, Ziggy Stelmach
General Contractor:COAD 88
Engineering & Consulting > Structural:Jomil Engineering
City:Melbourne
Country:Australia
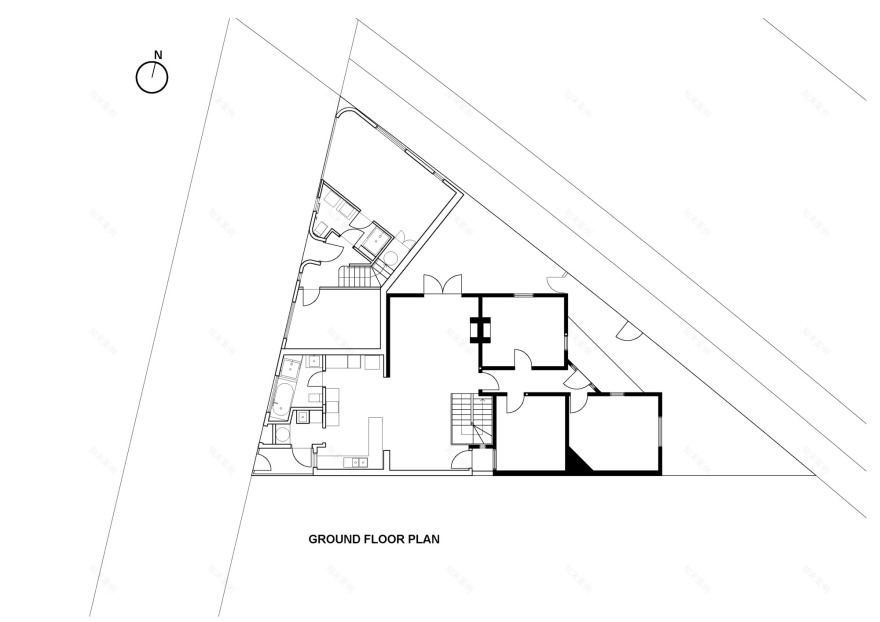
Text description provided by the architects. Around the Bend is both an extension to a timber Edwardian house built in the early 1900's and a separate but attached newly built Studio Garage Apartment building at the rear of the property on an unusual triangular piece of land.
The new work fronts the rear wide bluestone laneway and also lies on a slow curved bend in the road, in which this section of the crescent hasn't seen any new buildings built since the mid 1960's, and is generally dominated by 19th-century Victorian and early 20th-century Edwardian houses. The crescent also lies on the Capital City Walking Trail and is opposite a train line and park, and lies on a curved road, and as such is viewed by many people each day, particularly locals.
The new design has been clad in a natural finish Zincalume corrugated steel sheet cladding to give the project an apparent lightness and reflect the many adjacent outhouses, sheds, and garages built over the years, which dominate the rear laneway. So the architect tried to keep it a bit Outhousey.
Additionally, the random size, shape, and arrangement of windows and openings with a hint of utilitarianism contribute to this lightness and reduce the apparent mass of the new work, and engage with the streetscape at a human scale, avoiding the heavy and rigid appearance of a standard urban infill development. The resulting form and massing of the design are also particularly site-specific and largely a response to the detailed client brief on this fairly tight piece of land.
The new apartment is given an identifiable entry recess directly off the rear laneway, while the existing house retains its original street frontage. The old and the new house sites comfortably side by side and are visually distinguished, with a third internal intersecting zone which is much more intertwined.
For the structure, a combination of light timber framing and core-filled concrete block work with a reinforced concrete slab floor was used, which is both clad in the Zincalume Custom Orb corrugated cladding & roofing. This project was designed by the architect Nigel Grigg (formerly a director of ITN Architects) in 2017 and completed in 2022.
Project gallery
客服
消息
收藏
下载
最近




















