查看完整案例

收藏

下载

翻译
Space and comfort are two words that can fully describe the idea of that project. Villa MEDOVA is designed in Lviv, in the eastern part of the city's outskirts. The house is located on a hill next to the park. The most challenging task for us was creating a feeling of coziness and space in a problematic small and wedge-shaped area in a formed environment. At the customer's request, we had to develop a sizeable full-functional house for his family on a small and complex plot.
The house is located on a plot defined by two light-traffic roads and a line of the city park. While setting the building on the field, we decided to place it close to the road to maximize the space behind the house defined by the park line. That allows us to create a cozy place for relaxation by opening the view to the park, providing a space connected to the trees and nature, and giving our clients a feeling of being outside the crowded and noisy city. The layout of the house, combined with the fence and landscaping, creates a cozy patio. Residential premises are mainly oriented to the backyard, where the plot merges with the park. These rooms have large panoramic windows that provide a dialogue between the interior and nature outside and could receive a significant amount of sunlight throughout the day. In the rooms oriented to neighboring plots, windows are primarily horizontal and placed in the upper part of the facade. This allows us to close the neighboring buildings visually but open the view to the surrounding landscape.
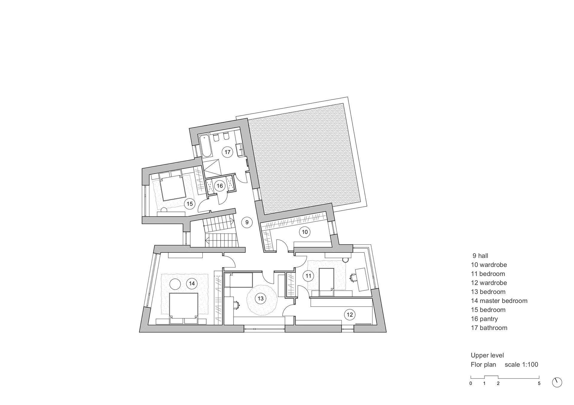
The house shape consists of several simple geometric volumes of different heights and colors. In the plan, these are rectangular shapes unfolded along the site's boundaries. The stairs are located in the central space between them. We designed a living room with garden-opened windows, a kitchen, an office, a garage, and a utility room on the first floor. Living rooms, wardrobes, and a bathroom occupy the second floor.
The facades combine white paint, clinker tiles, LAMINAM, and architectural concrete. Hand-formed clinker tiles with uneven edges dilute the precise geometric shapes of the house. We project the fence with the same finishing materials as the house. The exterior finishing materials also go into the interior, adding space, making the border between the interior and exterior invisible, and creating a harmoniously integrated volume.
Thank you for looking through our project. We'll be happy to receive your feedback and likes.
客服
消息
收藏
下载
最近





















