知末
知末
创作上传
VIP
收藏下载
登录 | 注册有礼

CLENOVA 小屋草图项目

2024/08/26 02:23:44
查看完整案例
微信扫一扫
收藏
下载
翻译
CLENOVA​​​​​​​
SKETCH PROJECT OF THE COTTAGE
2024
CLENOVA 小屋草图项目-3
CLENOVA 小屋草图项目-4
CLENOVA 小屋草图项目-5
CLENOVA 小屋草图项目-6
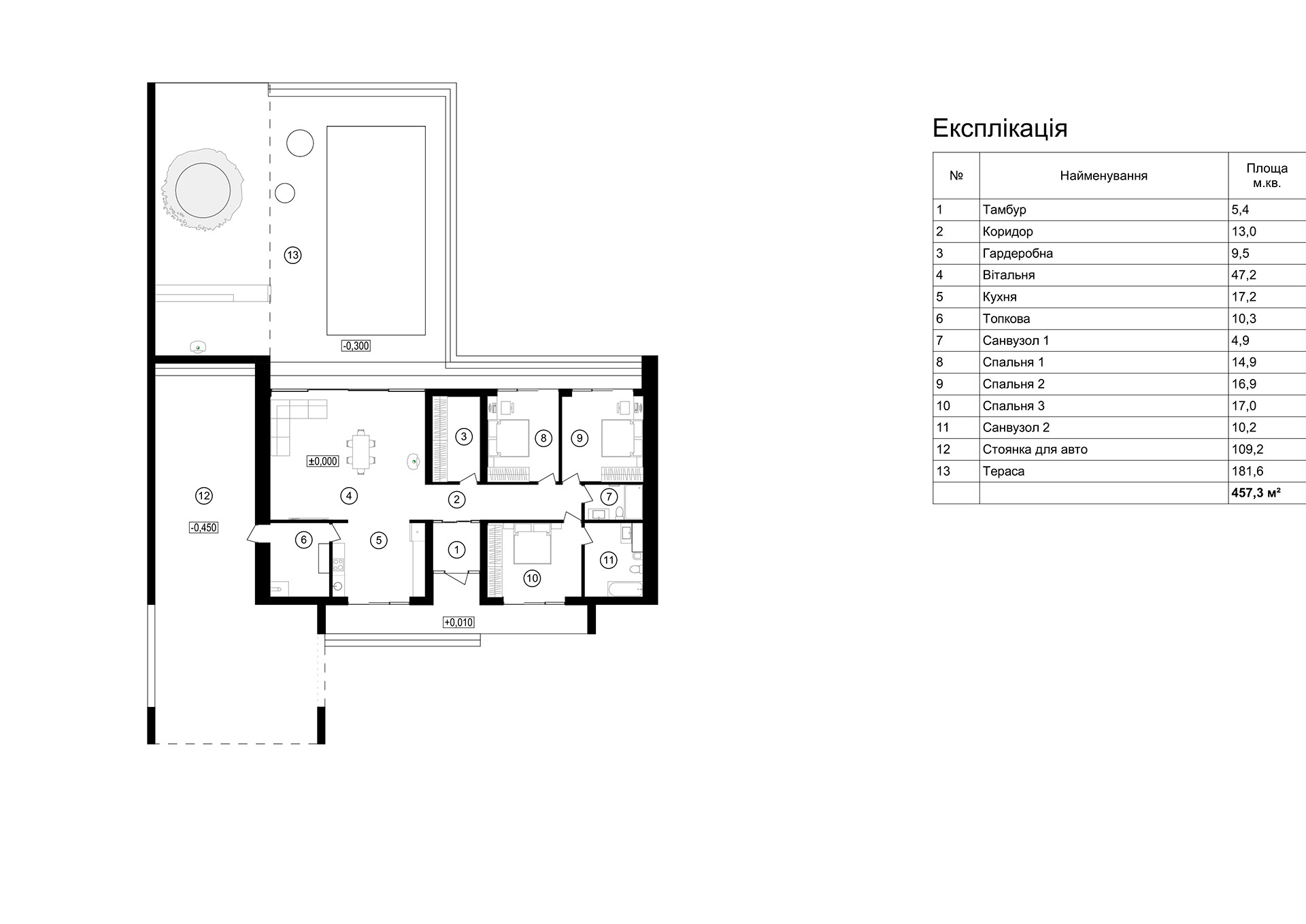
ПЛАН НА ВІДМ. ±0.000
CLENOVA 小屋草图项目-8
CLENOVA 小屋草图项目-9
CLENOVA 小屋草图项目-10
南京喵熊网络科技有限公司 苏ICP备18050492号-4知末 © 2018—2020 . All photos and trademark graphics are copyrighted by their owners.增值电信业务经营许可证(ICP)苏B2-20201444苏公网安备 32011302321234号
客服
消息
收藏
下载
最近