查看完整案例

收藏

下载
▲外观(远景) ©ToLoLo studio
岐阜县岐阜市位于东京与京都的中间地带,原县政府大楼因老化和空间狭窄等问题而启动了原址重建项目。作为地域辽阔且拥有多样性气候风土和历史文化的“清流之国·岐阜”的象征,本项目旨在充分利用桧木、杉木、美浓和纸、瓷砖等县产材料,打造集结当地企业技术力量的“岐阜橱窗”。行政楼采用1层柱帽隔震结构,并将隔震装置及重要设备布置在浸水线以上的区域,有效避免了浸水风险。通过消除地面与隔震层之间的间隙,将前部广场与低层部分无缝衔接,形成向地区开放的空间。此外,顶层的观景大厅采用高通透性的CLT幕墙,可360度俯瞰岐阜的丰饶景致,成为彰显地区特色的标志性场所。
▲外观(鸟瞰) ©ToLoLo studio
▲感受北侧自然采光、与前庭融为一体的3层挑高入口 ©ToLoLo studio
集结当地技术力量的“岐阜橱窗”
岐阜县岐阜市位于东京与京都的中间地带,本项目是对其饱受老化和空间狭窄等问题困扰的原县政府大楼进行的原址重建。周边区域集中了包括政府大楼在内的县行政机构。岐阜自古被誉为“飞山浓水(飞驒之山、美浓之水)”之地。县北部飞驒地区海拔3,000m的群山连绵不断,南部美浓地区的浓尾平原上木曾三川(木曾川、长良川、揖斐川)蜿蜒流淌。作为地域辽阔且拥有多样性气候风土和历史文化的“清流之国”的象征,项目旨在充分利用县产材料和产品,打造集结当地企业技术力量的“岐阜橱窗”。
▲与飞驒山脈、浓尾平原相呼应的政府大楼 ©SS
体现岐阜县特色的外立面
项目由低层和高层部分组成的“行政楼”与独立的“议会楼”构成。外装根据各栋建筑的规模,采用了各种岐阜县生产的特制瓷砖。从长期维护的角度出发,所有饰面均采用干法施工。作为政府大楼门面的高层建筑南北立面,采用县产杉木浮雕模板浇筑的预应力混凝土,构成了带有深邃雕刻设计的外框架,令人联想到高山地区的千鸟格纹。这一设计不仅为清洁窗户、更换密封胶等维护作业预留了作业空间,还兼具日照调节功能,实现了极具象征意义的外立面。
▲外立面与县警察局、原政府大楼保持统一感 ©ToLoLo studio
深受当地喜爱、传播清流之国魅力的政府大楼
▲木曾桧迎客的入口 ©ToLoLo studio
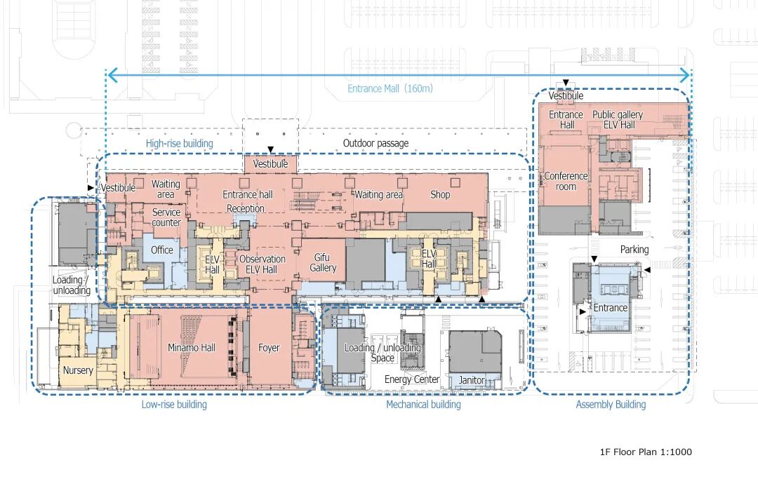
行政楼与议会楼合计东西长达160m的入口大厅向地区开放,以县产桧木、美浓和纸、瓷砖打造的空间迎接着来访者。
▲与外部空间相连的入口 ©ToLoLo studio
从“水光潋滟”中汲取灵感,用蓝色玻璃釉面细长条瓷砖铺砌的墙面,模拟“水面涟漪”的悬浮白色盒体构成的“水面天花板”,以及象征“细水潺潺”的层间木质百叶等,空间设计中点缀着诸多以“水之变幻”为灵感的抽象化设计元素,旨在营造出清爽柔和、仿佛清流荡漾的空间氛围。
▲议会楼入口用特制瓷砖表现清流的涟漪与波光 ©ToLoLo studio
行政楼1层北侧设有连续14.4m的可全开式开口,举办活动时可与带大型雨棚的北侧广场融为一体、内外联动使用。此外,可用于研讨会、表彰仪式等的“MINAMO礼堂”配备了可移动观览席,能够灵活应对阶梯式或平面式布局等使用方式。
▲可将岐阜美景尽收眼底的20层“清流大厅” ©ToLoLo studio
20层设有可体验岐阜“飞山浓水”风光的环游式观景层“清流大厅”,其东西跨度达100m,南北宽30m。自天花板到下方2.7m部分,采用岐阜县产杉木CLT的木钢混合立柱构成四边支撑幕墙,其下方则为双边支撑玻璃,从而在视线高度实现零遮挡的高通透性空间。
▲20层CLT幕墙剖面图
▲20层的环游式清流大厅“清流大厅” ©ToLoLo studio
此外,各层观景电梯厅与清流大厅的内装均采用美浓和纸打造出连续的视觉序列,始终彰显着“清流之国·岐阜”的橱窗定位。
实现高度的抗灾能力与安全性
为提升建筑在灾害发生时的抗灾能力与韧性,行政楼采用了1层柱帽隔震工法作为抗震措施,并通过将重要设备集中布置在浸水线以上的区域,实现对浸水风险的有效控制。在紧急情况下,可收起该栋楼5层的移动隔断,使整个楼层作为一间危机管理室运作。此外,还配备了利用南北立面外装柱型空间的自然通风系统、太阳能发电板、雨水利用、冷热渠(利用地温对空调新风进行预冷·预热的系统)等系统,既能在紧急情况下维持正常功能,又实现了日常能耗的削减。
▲行政楼柱帽隔震工法说明图
▲办公室通风设计图
此外,通过在1层设置安检门,将高层办公区与低层公共区的安保系统分开。高层标准层在无隔断的开放式楼层中央设置连接各层的中庭楼梯,使职员能够自由移动,从而提升部门间的协作效率。明确区分两个区域的安保系统,实现了县行政机构的信息管理与紧急情况下的高效运作。彻底开放安保区域外的访客空间,力求将政府大楼打造成传播地区魅力的中心。
▲剖面图
保持议会独立性、向大众开放的会场
▲会楼中以林木为灵感的天花板、从原政府大楼拆移而来的彩绘玻璃构成的信息角 ©ToLoLo studio
设于独栋(议会楼)内的会场象征着独立性,而与观景层设计相呼应的CLT幕墙则体现了议会的透明性。内装采用了许多岐阜县产的材料来构筑空间,如灵感源自清流与林木的瓷砖、木质天花板的大厅、木质家具与瓷砖,以及以美浓和纸为设计元素的天花板照明等。此外,通过在关键位置采用从原政府大楼拆移过来的彩绘玻璃和陶板等历史元素,营造出适合探讨岐阜过去与未来的空间氛围。
▲议会楼会场采用县产桧木与县产特制瓷砖打造出高品质空间 ©ToLoLo studio
▲以岐阜风格打造向民众开放的议会楼 ©ToLoLo studio
滑动查看更多图纸
项目业主|岐阜县
项目位置|日本岐阜县岐阜市
用地面积|33,974.26㎡
建筑面积|85,384.29㎡
建筑层数|地上21层、阁楼2层
最高高度|106.19m
主体结构|钢结构、部分型钢混凝土结构(行政楼:1层柱帽隔震工法)
设计单位|日建・大建・岬设计共同体
业务范围|
方案设计、初步设计、施工图设计:日建・大建・岬设计共同体
监理:日建・大建设计共同体
竣工年月|2022年9月
客服
消息
收藏
下载
最近


























