查看完整案例

收藏

下载
环境©梁山
站在永诺上海展厅入口的开放区,“日光”从屋顶一处洞口照射下来,这时候如果留意一下室外的商场环境,会意识到不远处也有相似的顶、洞口、日光,不知不觉中自然光带来时间流动的感受与展厅室内的行进节奏相互匹配,完成了一次微妙的连接。
概貌©梁山
入口©梁山
外与内、空间与人之间,用关注于关系的独特视角进行观察,建筑不再是单纯的物质性存在,而具备可交流和沟通的精神性内容。从由直觉引导的空间构建,渐渐形成路径清晰、表达明确的建筑实践,都是围绕“纯粹和重复”空间的展现和使用。
这里的“纯粹”指将除了基本建筑元素比如墙、色彩中的白色等以外的装饰性元素简化或去除,关注材料的运用,只留下空间本身,让进入场地的人们能通过身体体验直接对建筑空间产生心理上的感受,避免被干扰而削弱对空间的感知。
“重复”的效用则较为显著地常见于宗教建筑,如果有兴趣可以回观一下前往寺庙时获得的体验。当行走在形式重复的殿宇之间,看似不经意的路线其实已由空间特点所决定,沿轴线排列的布局、层层递进的院落,在营造出深邃空间序列感的同时使人在固定方向的不断绕行中接纳领悟与改变。
公共展厅©梁山
公共展厅©梁山
公共展厅©梁山
在涵盖“纯粹和重复”空间组织方式的两个不同方案类型“围中心”和“九宫格”中,永诺上海展厅项目最终确定了“九宫格”形式,前者以围绕中心从边缘开始进行有深度的递进动作为特点;后者以看似平均的空间分布,定义人的运动方式,通过行进动作使空间对人产生影响。
中央展厅©梁山
展示区©梁山
永诺上海展厅位于喜盈门商场三楼。将这一始于1912年的德国品牌的过去和未来融入空间构建中,是建造这座展厅的目的,与此同时,区隔于商场整体的商业氛围,搭建商场内的小建筑,以体验和感受为核心,让人在一个与身体体验一致的建筑中收获由物理空间带来触动的可能。
这场体验的旅程从来到商场三楼就开始了。进入展厅建筑之前,展厅中心散发出的彩色光芒透过玻璃橱窗给人留下对这里的最初印象。在八个象限围绕一个中心的“九宫格”布局中,参观者由公共展厅进入,经过中厅到达产品展示区,接着第二次经过中厅到达智能体验区,随后第三次经过中厅到达洽谈区──这个过程中完成围绕九宫格中心的绕行,并在每个区域里都有一次顺时针方向的绕行,这也是建筑师对展厅参观路线的精确设计。
展示区©梁山
展示区©梁山
公共展厅位于入口处,是这座建筑面对所有观众的第一个空间,它相对独立,与中央展厅以一道自动移动门相隔,来到这里的观众被勒·柯布西耶色彩系列开关展示墙所吸引,一开始并不能进入其他区域。
参观完公共展厅,通过触发肘击开关,自动移门缓缓开启,观众被邀请进入中央展厅──一座迷你博物馆。中央展厅内四面白墙上显现出关于永诺德国总部沙克斯缪勒的影像短片,永诺的制造工厂一百多年来置身于森林之中,正如创始人阿布希特·永诺所说,“每次去往工厂就是回到森林里的家”。中厅的中心位置展出四件代表永诺四个不同历史时期的开关作品,展品结合影片营造了360度环绕沉浸体验。
展示区©梁山
展示区©梁山
观赏完这一段小型表演,观众来到东侧产品展示区,在导览员的讲解下获得对各个产品系列全面概要的了解。从这里回到中厅时,面对同样空间但自不同方向进入,视线端头的门框刻意收窄,使视线所及内容受控在有限范围内。此时中厅开始播放另一部短片,白墙上显现的时间轴提示着关于永诺发展进程中的各个历史时刻。短片内容结合变换的灯光带给人熟悉又陌生的感觉。
跟随时间轴指示的方向完成绕行,观众进入北侧的智能体验区。相向放置的沙发、壁炉、灯具以及影音设备,带来舒适、放松的氛围,观众在独享空间的同时可通过平板电脑控制调节音乐、灯光,冬季时还可以调节壁炉内的火焰大小。壁炉上方的顶部有一个与公共展厅内相同的洞口,“日光”传递的时间感受形成再一次的连接。
历史开关陈列品©梁山
体验区©梁山
体验区©梁山
离开体验区后第三次进入中厅,这里展现的是日常的天光状态。观众可穿过中厅结束浏览离开,或者对于已定制永诺品牌服务的客户来说,便来到洽谈区与工作人员就具体方案进行商谈。作为容纳长时间交流的场所,这里除了展示机柜还有专门设计的家具,电动窗帘和玻璃门接入智能系统,从闭合调至打开状态成为会议结束时附有仪式感的最终展示环节,并带给人关于这座建筑的完整体验。
中央展厅©梁山
洽谈区©梁山
洽谈区©梁山
作为大型商业建筑里的小建筑,展厅具有清晰的混凝土顶面和界限分明的墙体结构,这二者也是技术上承担许多突破和创新的部分。顶面采用的材料和施工方法都来自针对项目的单独研发,将原本用于工厂预制件的高强度混凝土混合玻璃纤维的配方,改进后用于展厅现场,并运用喷射的创新方式完成屋顶浇筑。在原有工艺最多生成40至50平方米预制件的情况下,展厅项目对工艺的突破达成了132平方米超大面积的成果。在喷射浇筑的过程中,功能性设备和管道包括顶面上的轨道、喷淋装置、投影仪、音箱等都考虑预埋在内。
墙体的复杂程度可以从公共展厅区域的一件模型展品中窥知一二。这是被称为HUB的墙体结构,中间的铝合金墙体骨架集合所有设备,比如悬挂Led屏幕或者嵌入隐形音箱,再以免拆模板浇筑混凝土完成建造,整个墙体独立于顶面而存在,与顶面之间预留2厘米缝隙作为空调风口。顶面和墙体的高度整合性使小建筑成为可能。
橱窗©梁山
立面©梁山
理想的空间设计,就像隐藏了复杂系统的“简洁容器”,它让人感觉自然流畅,而背后的一切复杂性都已被无形解决。当把纯粹空间、隐藏式节点做到极致,身处其中的人们感受到的就是空间所呈现出的长久、稳定的建筑性。从进入到离开,时间的流动与对空间的感知贴合在一起,就像陇上书店项目中面对街道设置的那扇窗的作用一样,构成自然与人的连接。
在空间里体会时间,在行为中获得感受,展厅和人的联系在此展开。
图纸
平面©米凹工作室
轴侧©米凹工作室
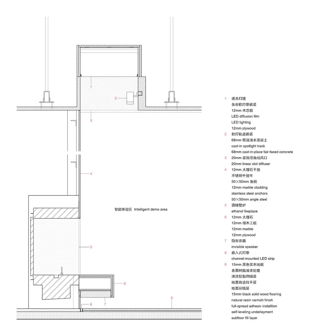
详图©米凹工作室 详图©米凹工作室
详图©米凹工作室
详图©米凹工作室
模型©米凹工作室
模型©米凹工作室
信息:
设计单位:米凹工作室
项目地点:上海市徐汇区
室内面积:132平方米
建成时间:2025年
项目负责:周维
设计团队:张冯韬、叶葭焕、吴雪婷、阎安(实习)
摄影视频:梁山
照明顾问:昇霖照明设计事务所、欧科照明
智能顾问:联电智宅智能化技术(上海)有限公司
施工单位:禾邑精造
品牌支持:JUNG, 日朗, ERCO, TIME & STYLE, Planika, 倍砼堡, SilentGliss, Luci, Delta Light, 环球石材, TEIBAR
客服
消息
收藏
下载
最近





























