查看完整案例

收藏

下载
麦田为畔,自然交互;清混营造,藏趣于境;——巢羽
Here,wheat fields as neighbors, natural interaction; pure concrete construction, hiding delight within the environment。——ChAOYU design
▼鸟瞰图,Aerial view of the project©董博儒
▼二层挑空区域,Upper level balcony©董博儒
1.缘起
The Beginning
「格物智能汽车总部」位于江苏省常熟市的乡村麦田间,让自然与现代建筑形成对话,苏沪一小时交通圈的区位红利,让这片乡野之地成为连接两大都市资源的关键节点,既便于吸纳苏沪两地的产业人才和技术资源,实现智能汽车研发的高效协同;又为乡村文旅打开通道,让访客便捷抵达,在自然中感受产业与自然的交融力量。
▼区位图, Location©巢羽设计事务所
「GoodGrid Automotive AI Headquarters」 is situated in the rural wheat fields of Changshu, Jiangsu Province, creating a dialogue between nature and modern architecture. Benefiting from its prime location within the one-hour transportation circle of Suzhou and Shanghai, this rural area has become a key node connecting resources from the two major cities. It not only facilitates the attraction of industrial talents and technical resources from Suzhou and Shanghai, enabling efficient collaboration in intelligent automotive research and development, but also opens up new opportunities for rural cultural tourism. Visitors can arrive conveniently and experience the powerful integration of industry and nature in a tranquil natural environment.
▼项目鸟瞰,Aerial view of the project©董博儒
业主起初希望做一些类集装的组合来作为一个企业的办公和及接待,作为一个新能源汽车测试的,极致控制预算的基础上同时希望企业形象有些模块化的展示。在此基础上我们考虑将把每个功能区都作为一个标准的模块。
The client initially intended to adopt a container-like modular combination for corporate office and reception functions, as well as for new energy vehicle testing. They required extreme budget control, while also expecting the corporate image to be showcased through a modular system. Against this background, we decided to design each functional area as a standardized module.
▼道路视角,View from the road©董博儒
2.场地回响
Echoing the Site
考察了项目周边的村落和场地,我们希望项目再满足业主对建筑表现呈当代性的需求的同时,在空间的感知及路径上能够回应项目场地周边的乡村肌理。有巷道,有转角,有坡路等乡村里的体验。
▼概念生成,concept generation©巢羽设计事务所
Through research into the surrounding villages and the site itself, we aimed to meet the client’s demand for a contemporary architectural expression, while responding to the local rural fabric in terms of spatial perception and circulation.The design evokes authentic rural experiences, including lanes, corners, slopes, and other village-like spatial qualities.
▼入口视角,view from the entrance©董博儒
整个建筑外观以简洁的轮廓与利落的线条,在开阔的麦田中形成清晰的视觉焦点,巧妙地融入乡村自然肌理。无论是晨雾里还是夕阳间,这座建筑让智能汽车不再是抽象概念,而是可感知的产业景观。这种乡野自然和产业场景的复合属性,为周边注入科技与田园的独特体验,激活乡村价值。▼分析图,analysis©巢羽设计事务所
With a simple form and clean lines, the building stands out as a distinct visual focal point amidst the expansive wheat fields, while blending elegantly into the rural natural fabric. Whether shrouded in morning mist or bathed in sunset glow, the architecture transforms intelligent vehicles from an abstract concept into a tangible industrial landscape. This hybrid identity of rural nature and industrial setting infuses the surroundings with a unique experience of technology and pastoral charm, activating the inherent value of the countryside.
▼入口夜景,night view from the entrance©董博儒
综合考虑周边属性,将建筑体块通过错落的盒子组合,局部的挑出与退台,既打破外观的单调感,又为室内留出视觉边界。▼项目模型,model©巢羽设计事务所
Taking the surrounding context into full consideration, the building massing is composed of staggered box volumes, with partial overhangs and setbacks. It breaks the monotony of the exterior and creates generous visual boundaries for the interior spaces.
▼侧立面,Side elevation©董博儒
3.悬浮的灯塔
Floating Lighthouse
建筑外观以大面积玻璃幕墙、清水混凝土与穿孔板铝板共同组合。混凝土原生的灰色调与粗糙肌理支撑起建筑的空间骨架,为光线营造提供稳定载体;玻璃幕墙通透,仿佛为建筑加入自然滤镜,朝阳时将麦田的翠绿与天光引入,夕阳时则反射暖橙光影,让建筑随自然时序充满变化。
The building’s exterior features a combination of large-scale glass curtain walls, fair-faced concrete, and perforated aluminum panels.The natural grey tone and rough texture of concrete form the spatial framework of the building, providing a stable foundation for the interplay of light.The transparent glass curtain wall acts as a natural filter for the building.It draws in the lush green of the wheat fields and natural light at sunrise, while reflecting warm orange hues at sunset, allowing the architecture to evolve dynamically with the rhythm of nature.
▼侧立面,Side elevation©董博儒
▼二层架空区域,elevated area on the upper level©董博儒
▼二层架空区域,elevated area on the upper level©董博儒
大小不一的建筑盒子错落嵌套、有序组合,自然生成多元公共空间——露台,这里是整栋建筑视觉感最丰富的地方,无遮挡直面整片麦田,春风拂过,麦浪清香扑面而来;夕阳西下,暖光布满露台。置身于此,真正有一种身处建筑、心归乡野的深度体验感。
Box-like volumes of varying sizes are staggered and nested in an orderly composition, naturally forming diverse public spaces—among them the terrace, the most visually rich area of the entire building. It offers unobstructed views facing the vast wheat fields. When the spring breeze blows, the fresh scent of wheat fills the air; as the sun sets, warm light bathes the terrace. Standing here, one truly experiences a profound sense of being within architecture while returning to the countryside.
▼东立面,East elevation©董博儒
▼架空二层,Elevated wooer level©董博儒
▼屋顶露台,Roof terrace©董博儒
3.双层皮肤
Dual Architectural Language
内层落地玻璃窗,外层穿孔铝板幕墙。双层的建筑表皮,满足了业主对场地可控观察的诉求,又很好的得控制的了夏天玻璃幕墙带来的炎热。穿孔板铝板与建筑交相辉映,形成动态光影,白天,阳光透过穿孔投射出移动的光斑,落在清水混凝土地面与墙面,仿若麦田中的星光;夜晚,室内灯光透过穿孔向外发散,让建筑内观成为乡村夜景的一部分,既提升建筑辨识度,又为乡村文旅增添夜间景观亮点。
The inner layer consists of floor-to-ceiling glass windows, while the outer layer is a perforated aluminum panel curtain wall. This double-layer building envelope meets the client’s need for controllable views of the site, while effectively reducing heat gain from glass curtain walls in summer. The perforated aluminum panels interact with the building to create dynamic light and shadow. During the day, sunlight filters through the perforations, casting shifting light spots onto the fair-faced concrete floors and walls, like starlight scattered across the wheat fields. At night, interior light radiates outward through the perforations, integrating the building’s interior glow into the rural night scene. This not only enhances the building’s identity but also adds a distinctive nighttime highlight for rural cultural tourism.
▼三层隐藏窗,The hidden window©董博儒
▼三层隐藏窗,The hidden window©董博儒
▼主入口,main entrance©董博儒
建筑一楼的咖啡馆,以橙色为主色调,既呼应朝阳与夕阳下的自然光影,又与麦田的绿色形成视觉对比,成为建筑内部的情绪亮点,为整个建筑注入温暖活力。
The cafe shop on the ground floor features orange as its main hue, echoing the natural light of sunrise and sunset, and creating a striking visual contrast with the green of the wheat fields.It serves as an emotional highlight inside the building, infusing the entire structure with warmth and vitality.
▼室内咖啡吧,The cafe shop©董博儒
▼室内咖啡吧,The cafe shop©董博儒
4.成长中的建筑
The Growing Architecture
清水混凝土浇筑的通道,以平缓坡度缓慢延展。步入其中,随着坡度的升高,视觉的尺度也随之变化,仿佛在建筑中展开一场趣味探寻,外界的纷扰情绪随脚步渐缓而悄然放下,身心逐渐融入建筑与乡野共生的静谧氛围里。
The passageway, cast in fair-faced concrete, extends gently along a mild slope.As you step inside and ascend the slope, the visual scale shifts gradually, as if embarking on an intriguing journey of exploration within the building.The distractions of the outside world quietly fade away with your slowing steps, allowing the body and mind to blend into the serene atmosphere where architecture and countryside coexist in harmony.
▼入口雨棚,canopy at the entrance©董博儒
▼户外坡道,Outdoor ramp©董博儒
▼户外坡道,Outdoor ramp©董博儒
建筑为未来可能增加的功能预留了结构框架,企业在成长,建筑也跟着企业的步伐再逐步完生长。
The building reserves a structural framework for future functions to be added. As the enterprise grows, the architecture evolves and matures step by step alongside it.
▼预留结构,Preserved structure©董博儒
盒子模块打造的空间骨架,勾勒出清晰脉络,纵横交错的墙体与光线相互作用,形成富有秩序的规则感,恰好契合智能汽车总部所需的严谨、高效属性,让空间形态与产业特质自然相融。
The spatial framework, constructed with box-type modules, outlines a clear structural order. The crisscrossing walls interact with light to create a strong sense of order and rhythm, which aligns perfectly with the precision and efficiency required for an intelligent automotive headquarters. This allows the spatial form to naturally integrate with the characteristics of the industry.
▼室内活动区,Indoor activity space©董博儒
内庭天井通过半透明玻璃,将外部天光与内部空间串联,天井底部的绿植,让内部空间兼具自然生机,呼应乡村有庭有院的感受。我们希望通过在地性设计另一种的尝试,当代建筑下的设计是否也能对场地及周边有所回应。
The internal courtyard links exterior natural light with the interior space through translucent glass. Greenery at the bottom of the courtyard infuses the inner space with natural vitality, echoing the rural courtyard experience. We hope this represents another attempt at place-based design, demonstrating that contemporary architecture can also respond to the site and its surroundings.
▼内庭院,The internal courtyard©董博儒
田野间的苏州格物智能汽车总部,不仅让建筑成为契合产业属性的现代化表达,更以一种“润物细无声”的方式激活乡村潜力,推动乡村产业的转变。
Located in the fields, The GoodGrid Automotive AI Headquarters expresses a modern architecture that aligns with industrial characteristics, activates rural potential in a “silent, moistening manner”, driving the transformation of rural industries.
▼田野间的汽车总部,The Automotive AI Headquartersin the fields©董博儒
▼周围乡村肌理,countryside fabric©巢羽设计事务所
▼模型,model©巢羽设计事务所
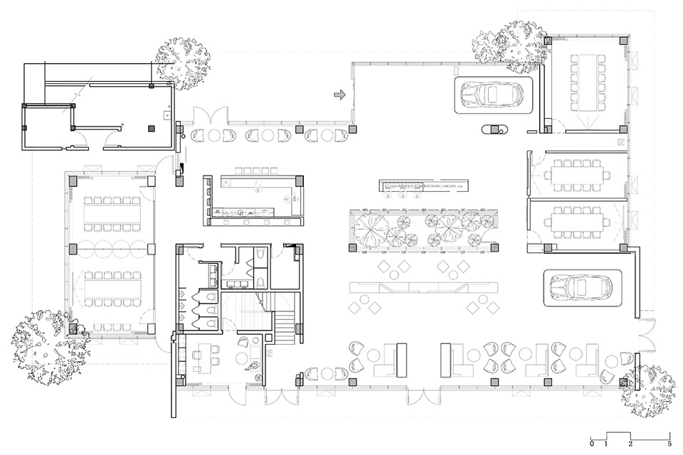
▼一层平面图,ground floor plan©巢羽设计事务所
▼二层平面图,first floor plan©巢羽设计事务所
▼三层平面图,third floor plan©巢羽设计事务所
▼立面图,elevation©巢羽设计事务所
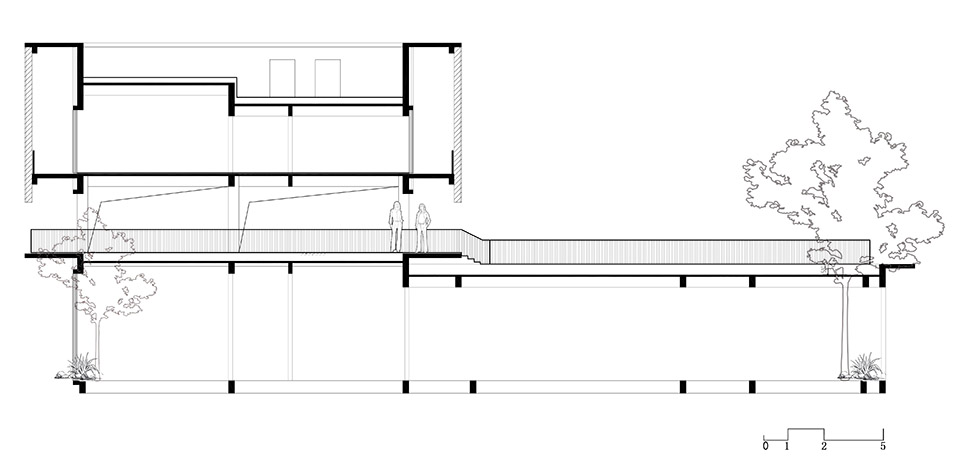
▼剖面图,section©巢羽设计事务所
项目名称|格物智能汽车总部
项目地址 | 江苏 苏州
项目面积|1200㎡
竣工时间|2025.11
建筑设计|巢羽设计事务所设计
主创|王星、梁飞
设计团队 | 薛佳凯、杨佳豪,程志涵
室内设计|巢羽设计事务所设计 张跃、王永波、程志涵、张啸天
文宣策划|EDG贰道杠传媒
空间摄影|董博儒
Project Name|GoodGrid Automotive
Project Address|Suzhou,Jiangsu
Project Area|1200 ㎡
Completion Date|November 2025
Architectural Design |CHAOYU Architectural Design
Lead Designers|Wang Xing, Liang Fei
Design Team|Xue Jiakai Yang Jiahao,Cheng Zhihan
Interior Design|CHAOYU Architectural Design
Design Team|Zhang Yue, Wang Yongbo,Cheng Zhihan, zhang xiaotian
Publicity & Planning|EDG Media
Space Photography|Dong Boru
客服
消息
收藏
下载
最近











































