查看完整案例

收藏

下载

翻译
Architects:IDIN Architects
Area:640m²
Year:2025
Photographs:DOF Sky|Ground
Manufacturers:Aluzat,Lamptitude,Ligman,Luxteel
Category:Houses
Interior Design:SEIZEtheDAY STUDIO Co., LTD
Landscape Architecture:Pergolar Co., Ltd.
City:Bangkok
Country:Thailand
Text description provided by the architects. TN House is a two-story residence designed for a couple with a passion for art and a lifestyle that often includes hosting friends and social gatherings at home. Located on a corner plot in the city, the design takes its main concept from creating connections between interior and exterior spaces, allowing the house to adapt flexibly to different activities.
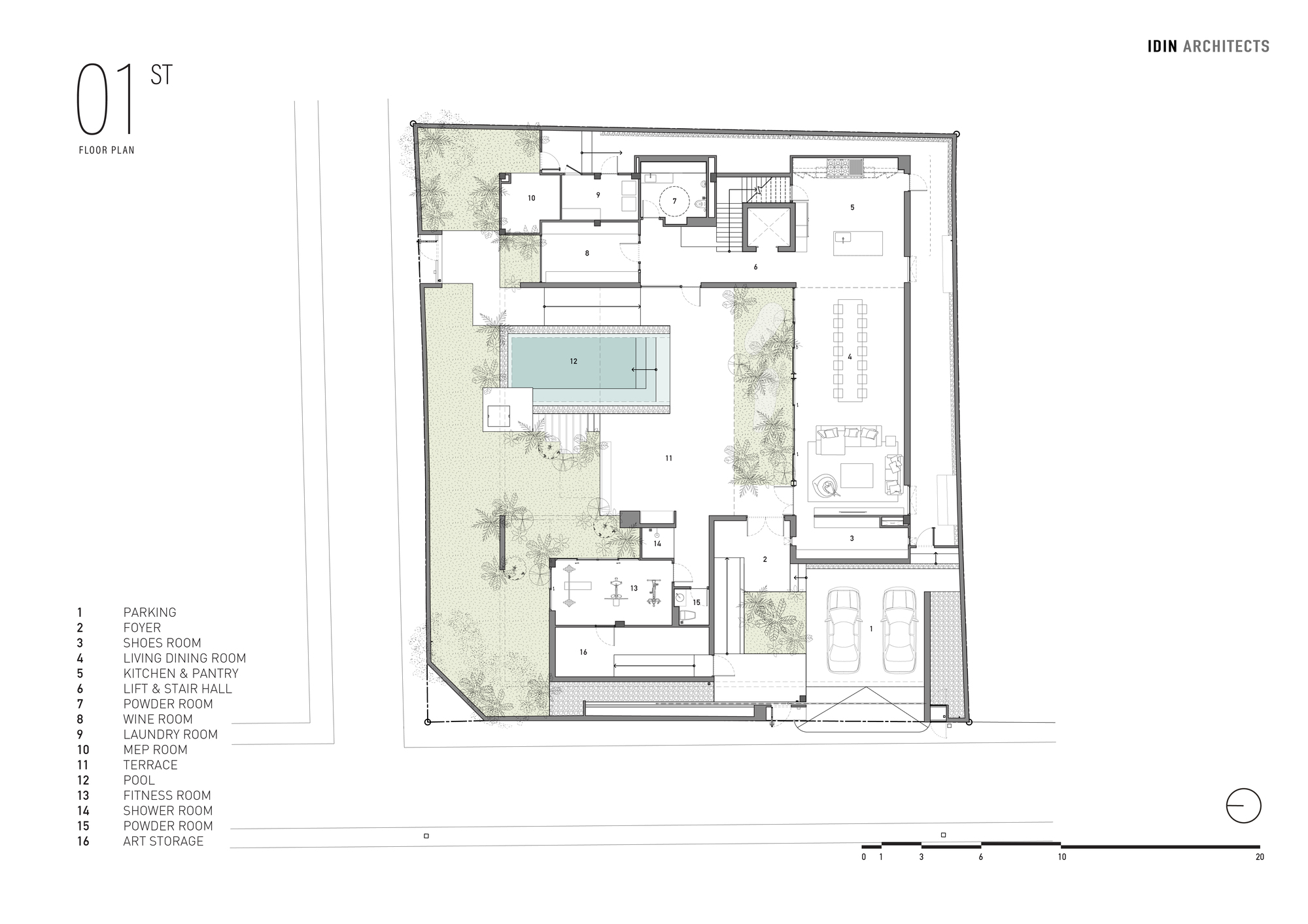
The planning begins by dividing the house into two primary zones: the private sleeping quarters and the living–dining area. The sleeping quarters are lifted to the second floor, leaving the ground level open as a multipurpose terrace. Between the two wings lies a central courtyard, which serves as both a shared visual focal point and a source of northern light and natural ventilation. Rather than being enclosed, the spaces are designed to connect—visually, climatically, and functionally.
The interiors emphasize fluidity of circulation and visual continuity. A double-volume living room links vertically to the second floor, while an open-plan layout connects the living and dining areas with full views of the courtyard. This courtyard also leads directly to an 11-meter-long multipurpose veranda, which can easily transform into a space for parties or events. The veranda further extends to the swimming pool, side garden, gym, and a secondary entrance that leads to a temperature-controlled wine cellar.
Although it is a two-story house, accessibility for long-term living was a key concern. An elevator is located adjacent to the main staircase, and various spaces are designed to be wheelchair-accessible. The master bathroom, for instance, uses a gentle floor slope instead of level changes for safe and convenient use. The master bedroom connects seamlessly to the walk-in closet and bathroom, while two additional guest bedrooms are included to accommodate visiting friends. On the upper floor, a small lounge with sliding doors provides cross ventilation and visual connection to the spaces below.
Materiality plays an important role in the atmosphere of the house. Board-formed concrete is used throughout the structure and walls, creating natural textures that act as a neutral backdrop for the owners' art collection. Around the second floor, a black steel double wall provides shading and thermal protection for the bedrooms, while also becoming a distinctive architectural feature of the house.
TN House is therefore the result of interpreting the owners' desire for a home that functions simultaneously as a living space, an informal gallery, and a place for gathering with friends. The planning strategy and material choices are intended to support both everyday living and occasional events, without separating these functions rigidly. Instead, the spaces are allowed to flow into one another naturally, reflecting both the couple's lifestyle and their appreciation of art and social life.
Project gallery
客服
消息
收藏
下载
最近





































