查看完整案例

收藏

下载
一、项目缘起
Overviews
2022年,位于杭州拱墅区大城北核心区的智慧网谷小镇被成功命名为第六批浙江省特色小镇,被《人民日报》头版头条誉为东部地区产业优化发展的全国样本。随着顺丰、新浪、联想、58同城、360、货拉拉等全国头部企业入驻,智慧网谷小镇的数字经济核心产业日渐蓬勃。智慧网谷的管委会大楼作为小镇的未来管理中心,地处智慧网谷西部入口门户区位,是小镇生态基底架构的核心组成部分,也是其滨水休闲活力轴线的西向起始节点,在区域空间格局中具有战略支点价值。项目总用地面积7005㎡,总建筑面积约3万㎡,建筑高度60m,容积率2.5。
▼折叠的建筑形态 ,Folded Architectural Form ©奥观建筑视觉
二、设计解读
Design Thinking
项目的主要功用是满足智慧网谷小镇管委会的使用要求,同时又处于智慧网谷小镇西部的门户位置,因此,其所处的门户地位和表达的智慧网谷气质,决定了该建筑应该体现出科技、未来和现代的场所精神,成为区域具有识别度的新地标。
The primary function of the project is to fulfill the operational needs of the Gongshu Intelligence Valley Administrative Committee. Occupying a gateway position in the western part of the town, its prominent location and the ethos of the “Gongshu Intelligence Valley” dictate that the architecture should embody a technological, futuristic, and modern spirit of place, establishing itself as a highly recognizable regional landmark.
(一)复杂功能与门户地标的统一融合
Unifying Complex Functions with a Gateway Landmark
作为智慧网谷小镇的管委会载体,项目承担着管委会展示、服务、办公等多方面的需求;作为小镇的的西部门户,建筑需要恰如其分地体现出小镇未来科技的小镇精神。如何实现复杂功能和小镇精神气质的和谐统一,是建筑需要解决的第一个问题。
As the host facility for the Administrative Committee, the project addresses multifaceted demands, including exhibition, services, and administration. Serving as the town’s western gateway, the building must fittingly reflect the town’s spirit of future technology. The primary architectural challenge is to achieve a harmonious integration between these complex functions and the town’s overarching ethos.
▼向上动感的形体 ,An upwardly dynamic form ©奥观建筑视觉
(二)居住服务与产业发展的双重身份
The Dual Identity of Residential Services and Industrial Services
项目所处的地块为住宅与产业用地混合的区块,兼具科研气质和生活气息。在地块面积仅7005平方米、限高60米、绿地率35%的规划条件下,要实现文化活动中心、体育健身、社区管理、居家养老照料服务中心和社区医疗服务站等多元功能。如何高效率地组织功能流线,同时满足完成未来居住社区中心和未来产业社区中心双中心的身份,是建筑需要解决的第二个问题。
The site is located in a mixed-use block of residential and industrial land, blending a research atmosphere with the vitality of daily life. Constrained by a small site area of 7,005 square meters, a 60-meter height limit, and a 35% green space requirement, the project must accommodate diverse programs: a cultural activity center, sports and fitness facilities, community management offices, an elderly care center, and a community medical clinic. The second architectural challenge is efficiently organizing circulation flows while realizing its dual role as both a future residential community center and an industrial community hub.
▼建筑夜景鸟瞰 ,Aerial night view ©奥观建筑视觉
(三)绿色生态与建筑性能的协同优化
Synergistic Optimization of Green Ecology and Building Performance
项目北侧紧邻城市干道,西侧为沿管家漾路设置的40米宽的城市公园绿带,南侧紧邻管家漾河,场地有良好的自然环境基础。如何自然地契合场地环境,让绿色生态成为建筑亮点,是项目需要解决的第三个问题。
Bordered by an urban arterial road to the north, a 40-meter-wide urban park along Guanjiayang Road to the west, and the Guanjiayang River to the south, the site benefits from a strong natural context. The third challenge is seamlessly integrating with this environment and making green ecology a distinctive architectural highlight.
▼建筑夜景图,Nighttime photograph ©奥观建筑视觉
三、设计策略推演
Design Strategies
面对上述三大核心问题,设计团队摒弃传统高层办公楼的设计思路,转而以“折叠森林”为核心叙事概念,对这三个问题给出了结构性、系统性的解答。
In response to these three core challenges, the design team moved away from the traditional high-rise office building paradigm. Instead, using the “Folding Forest” as the core narrative concept, they provided structural and systematic solutions.
(一)复合功能 Multiple Functions
在仅有7005平方米的狭小局促用地内,要塞入约3万平方米、容积率2.5的建筑体量,且需同时兼顾科研办公人员与社区普通居民(老人、就医者)的复杂流线,这对空间的组织能力提出了极高的挑战。设计团队以“微型城市”的理念,重构这一双中心复合体。
Fitting a 30,000-square-meter gross floor area with an FAR of 2.5 into a constrained 7,005-square-meter site, while simultaneously managing the complex circulation of scientific researchers and community residents (including the elderly and patients), posed a significant spatial organization challenge. The design team employed the concept of a “micro-city” to conceptualize this dual-center complex.
▼建筑小鸟瞰,Elevated view ©奥观建筑视觉
为了避免不同使用人群的动线交叉与相互干扰,主入口及高活力的公共活动区(如文化活动中心、体育健身功能)被布置在面向城市界面最为开阔的地块西侧与北侧,以开放的姿态迎接网谷小镇的产业人群与外部访客,充分发挥其展示接待功能。而对于隐私性、适老化、生活化要求极高的社区服务功能(社区管理、居家养老照料服务中心、社区医疗服务站),则被妥帖地安置在建筑相对静谧的东侧与南侧的1至4层。这部分功能不仅拥有独立的东侧入口,更配备了专属的垂直电梯与疏散楼梯。
To prevent the intersection and interference of different user circulation paths, the main entrance and highly active public areas (such as the cultural and sports centers) are located on the west and north sides, facing the most open urban interface. This welcoming posture embraces the Valley’s industrial workforce and external visitors, maximizing its display and reception capabilities. Conversely, community service functions that require high levels of privacy, a senior-friendly design, and a domestic atmosphere (community management, elderly care, and medical services) are thoughtfully placed on the 1st to 4th floors on the quieter east and south sides. These functions feature an independent eastern entrance and are equipped with dedicated elevators and evacuation stairs.
▼晨光中的建筑,The building bathed in morning light ©奥观建筑视觉
这种“双中心”的布局,让建筑既是智慧网谷的管理中枢,也是周边居民的生活驿站。1-4层通高大厅、5-6层和7-8层的两层通高展厅设计,既满足企业展示需求,又为社区活动提供灵活空间。当产业的高效与生活的烟火气在同一栋楼里相遇,建筑便超越了功能本身,成为城市温度的载体。
This “dual-center” layout establishes the building as both the administrative hub of Gongshu Intelligence Valley and a lifestyle hub for surrounding residents. The double-height atrium spanning floors 1 to 4, along with the double-height exhibition halls on floors 5-6 and 7-8, accommodate enterprise exhibition needs while offering flexible spaces for community activities. When industrial efficiency and civic vitality converge within the same structure, the architecture transcends mere functionality to become a vessel for urban warmth.
▼与外部呼应叠退的大厅 ,The stepped atrium echoing the exterior form ©奥观建筑视觉
(二)型体塑造 Building volume
本项目用地面积小、相对容积率高,若是采用城市中常见的“裙房+塔楼”的传统公建范式,难以在局促的地块内释放出足够的空间形态呼应网谷的绿色框架,并表达出小镇未来现代的精神内核。因此设计将建筑视为一个整体统一雕琢,建筑基座顺应街道与公园的边界,呈现出宽大厚实的姿态,稳稳地锚固在场地之中。然而,随着高度的攀升,体量开始逐层进行大尺度的削减与收缩。这种自下而上的退让,不仅有效缓解了高密度开发带来的空间压迫感,更像是一种谦逊的姿态——将天空与阳光还给城市。
Given the small site area and relatively high FAR, the traditional “podium and tower” typology would struggle to create a spatial form that adequately echoes the Valley’s green framework and expresses the town’s modern, future-oriented spirit. Therefore, the building is treated as a holistically sculpted entity. The base aligns with the street and park boundaries, presenting a substantial mass firmly anchored to the site. However, as the building rises, the volume undergoes significant, layer-by-layer reduction. These stepped setbacks from the ground up not only effectively alleviate the spatial oppression typical of high-density development but also act as a gesture of humility—giving the sky and sunlight back to the city.
▼日幕下的管委会大楼 ,The Building at dusk ©奥观建筑视觉
这种切、削并非随意为之,而是精准地回应了内部功能的需求:西侧面向城市界面,切面舒展开放,昭示着小镇的科技活力;东侧与南侧面向社区,切面内敛柔和,为居民生活留出静谧的角落。最终,这座建筑不再是冰冷的垂直盒子,而是一座蜿蜒向上的“折叠森林”。它在视觉上消解了高层建筑的厚重感,仿佛是从地面生长而出,一路攀爬至苍穹,呈现强烈的向上动感,既表征蒸蒸日上的小镇精神,又与西侧的公园绿带、南侧的管家漾河共同编织出一幅流动的立体画卷。
This carving is intentional, precisely responding to internal programmatic needs. The western facade, facing the city, features broad, open facets that project the town’s technological vitality. The eastern and southern facades, facing the community, are more introverted and gentle, preserving quiet corners for residential life. Ultimately, the building transcends the cold, vertical box typology, becoming an upward-winding “folding forest.” It visually diminishes the bulkiness of a high-rise, appearing to grow from the ground and reach toward the sky. This strong upward dynamism symbolizes the town’s thriving spirit while weaving a flowing, three-dimensional spatial tapestry with the western park and the southern river.
▼沿河一隅,A riverside corner view ©奥观建筑视觉
(三)折叠形态
Folding Form
在由大至小的基本体量上,设计以 “纸张折叠”为抽象概念赋予建筑具象形态。建筑每两层为一个基础功能单元,如一张折叠的纸张,自下而上进行错位与斜向切割,形成景观露台,向天空寻找绿意。这种折叠的形态打破了传统办公大楼均质、刻板的垂直体量,在西部门户的城市界面上,雕塑出一种蜿蜒向上、充满生命力的动态势能。这种极简而富有张力的几何切割昭示了小镇作为“数字经济高地”的未来派先锋气质。
Building upon this tapering volume, the design utilizes the abstract concept of “paper folding” to generate the building’s concrete form. Every two floors constitute a basic functional unit that, like a folded sheet of paper, is offset and diagonally cut from bottom to top, creating landscaped terraces that reach toward the sky. This folding morphology breaks the homogenous, rigid verticality of traditional office buildings, sculpting an upward-winding, vital dynamic energy along the western gateway’s urban interface. The minimalist yet tension-filled geometric cuts declare the town’s avant-garde, futuristic identity as a “digital economy highland.”
▼折叠的方案概念 ,The “folding” design concept ©奥观建筑视觉
除了外部空间的折叠,大厅的内部空间边界跟随外部的“折叠”形态进行逐层退台。设计在西侧主入口区域退让出了一个内外通透的四层通高阳光共享大厅,巨大的通透玻璃将室外光线与绿意引入室内,开敞式的漫游楼梯穿插其间,将1-4层的空间在垂直方向上贯通。紧随的5-6层、7-8层的通高设计展厅为各自基础功能单元的核心,为科技从业者、社区居民提供了一个极具包容感的“空中城市会客厅”——它不仅是一个交通枢纽,更是一个融合了科研气质与市井生活气息的社会交往发生器。
Mirroring the exterior folding, the internal spatial boundaries of the lobby also step back layer by layer. At the western main entrance, the design carves out a four-story, sunlit shared atrium. Expansive glazing draws outdoor light and greenery into the interior, while an open, meandering staircase intersects the space, vertically linking the 1st through 4th floors. Above this, the double-height exhibition halls on the 5th-6th and 7th-8th floors act as the core of their respective functional units, offering tech professionals and residents a highly inclusive “urban sky lounge”—serving not just as a circulation node, but as a social generator that blends research culture with civic life.
▼阳光共享大厅 ,The sunlit shared atrium ©奥观建筑视觉
(四)双层表皮
Double-Skin Facade
地标性的外衣之下包裹着对功能实用性的考量。建筑采用 “刚柔相济”的双层表皮系统:内层是正常开启通风的玻璃窗户,外层则是以渐变形式开孔的白色穿孔铝板。穿孔铝板采用正方形转45度角阵列,每个正方形由四块三角形铝板内凹拼接。在满足室内不同功能空间的视线与遮阳的情况下,开洞亦随日光变幻出丰富的明暗光影。
Beneath its landmark exterior lies a careful consideration of functional practicality. The building employs a double-skin facade system combining rigidity and softness: the inner skin consists of operable glass windows for natural ventilation, while the outer skin features white aluminum panels with a gradient perforation pattern. The perforated aluminum panels are arranged in a square array rotated at 45 degrees, with each square formed by four concave triangular panels. While meeting the sightline and solar shading needs of the interior spaces, these perforations also cast rich, shifting light and shadow patterns throughout the day.
▼叠退的韵律,The rhythm of the setbacks ©奥观建筑视觉
在白色铝板与内部玻璃之间,设计预留了最大宽达3.6米的弹性间隙。一方面,它完美容纳并遮挡了所有的空调室外机组及复杂管线,使得建筑外观得以保持绝对的极简与纯粹;另一方面,空腔结合顶部的格栅与底部的排水沟,形成了一个巨大的空气环流层,保障了内部庞杂功能区块的高效散热与通风。铝板和玻璃形成虚实相间的材质对比,坚实的白色穿孔铝板勾勒出建筑清晰而硬朗的折叠轮廓,深灰色的玻璃则在退台与空腔的阴影中隐退。这种“一实一虚”的界面处理,不仅在视觉上消解了高密度建筑的厚重感,更赋予了整个“折叠森林”一种轻盈悬浮的未来诗意。
A flexible cavity, up to 3.6 meters wide, is reserved between the outer aluminum panels and the inner glass. This space perfectly conceals all outdoor HVAC units and complex piping, ensuring the exterior remains absolutely minimalist and pure. Additionally, this cavity, combined with top louvers and bottom drainage channels, creates a massive air circulation layer, guaranteeing efficient heat dissipation and ventilation for the complex programs inside. The aluminum panels and glass create a strong material contrast between solid and void. The rigid white panels define the building’s sharp, folded silhouette, while the dark gray glass recedes into the shadows of the setbacks and the cavity. This interplay of solid and void not only visually diminishes the mass of the high - density structure but also endows the entire “folding forest” with a weightless, futuristic poetic quality.
▼建筑和倒影相映成趣 ,The interplay between the building and its reflection ©奥观建筑视觉
(五)绿色生态
Green Ecology
由于地面空间被建筑占地与消防环道的挤压,设计采取了立体绿化的设计策略,建筑面向西侧主干道(拱康路)的有规律斜向退让,形成了一系列阶梯式露台,向天空借一片绿意。因此,建筑呈现出从地面一直攀爬至屋顶的7个空中花园——“智谷七境”。从城市视角看,西侧40米宽的公园绿带顺着建筑的退台一路蔓延至苍穹,模糊了建筑与自然的边界;从南侧水岸看,这座“折叠森林”倒映在管家漾河中,与波光玻璃相映成趣。覆土绿化不仅在视觉上软化了科技建筑的机械感,更成为调节建筑屋顶及立面微气候的优质保温隔热层。
Given that ground-level space is constrained by the building footprint and fire access roads, the design adopts a three-dimensional greening strategy. The building’s systematic diagonal setbacks facing the western arterial road (Gongkang Road) create a series of stepped terraces, introducing greenery into the vertical dimension. Consequently, the building features seven sky gardens—the “Seven Realms of Wisdom Valley”—ascending from the ground to the roof. From an urban perspective, the 40-meter-wide park on the west extends upward along the terraces, blurring the boundary between architecture and nature. Viewed from the southern waterfront, this “folding forest” is reflected in the Guanjiayang River, contrasting beautifully with the shimmering glass. The green roofs not only visually soften the mechanical feel of the high-tech building but also act as excellent thermal insulation, regulating the microclimate of the roof and facades.
▼绵延折叠的露台绿化 ,The continuous folded landscaped terraces ©奥观建筑视觉
建筑在西侧、南北两侧形成的水平悬挑在满足造型要求时,也巧妙成为被动式遮阳构件。夏季阳光高照,西侧深远的出挑能有效阻挡直射光进入室内,减少西晒,降低空调负荷;而南北侧的出挑也为室内办公与社区活动提供了珍贵的“室外延展空间”。双层表皮间的“烟囱效应”带来的自然热压通风,绝大部分房间实现了自然空气的流畅置换。除此之外,光伏发电系统(BIPV)的“光电玻璃”大规模应用在建筑的屋顶层及东、西、南侧向阳立面。这些光电玻璃在维持了建筑未来感外观的同时,为建筑的日常运营源源不断地提供清洁电能。当建筑挑檐、覆土绿化与光伏系统共同作用时,建筑不再是能源消耗者,而成为生态循环的参与者和宜人环境的容纳者。
The horizontal cantilevers on the west, north, and south sides subtly function as passive shading devices while fulfilling aesthetic requirements. During intense summer heat, the deep western overhangs effectively block direct sunlight, reducing solar gain and lowering cooling loads. The northern and southern overhangs also provide valuable “outdoor extension spaces” for offices and community activities. Furthermore, the “stack effect” within the double-skin cavity drives natural thermal ventilation, allowing the vast majority of rooms to achieve efficient natural air exchange. Additionally, Building-Integrated Photovoltaics (BIPV) “smart glass” is extensively applied to the roof and the sun-facing east, west, and south facades. While maintaining the building’s futuristic aesthetic, these panels continuously generate clean energy for daily operations. Through the synergistic effects of the building overhangs, green roofs, and photovoltaic systems, the architecture transitions from a mere energy consumer to an active participant in the ecological cycle and a vessel for a comfortable environment.
▼铝板细部 ,Aluminum panel details ©奥观建筑视觉
(六)结语
Summary
智慧网谷管委会大楼的设计是一次对高密度城市混合语境的回应。虽然场地条件苛刻,但建筑通过“折叠森林”的形态转译、“微型城市”的流线重构以及“生态复合”的低碳实践,将“地标性、功能性与生态性”这三个维度完美融合在了一座建筑之中。“折叠森林”不仅是一个建筑形态,更是一种设计态度:在高密度的城市语境中,我们不必在科技与自然、效率与人文之间做单选题。通过折叠的形态、双层的表皮、立体的绿化,这片“森林”既承载了智慧网谷的未来想象,又为城市留下一片可呼吸的绿意。当夕阳西下,穿孔铝板上的光影与空中花园的绿意交织,当你手捧一杯清茶步出办公室踏进景观露台,你会看到——建筑,原来可以如此温柔地与城市对话。
The design of the Gongshu Intelligence Valley Administrative Committee Building is a measured response to the mixed-use context of high-density cities. Despite demanding site conditions, the architecture seamlessly integrates the dimensions of “landmark, functionality, and ecology” through the formal translation of the “folding forest,” the circulatory reconfiguration of the “micro-city,” and the low-carbon practices of “ecological compounding.” The “folding forest” is more than an architectural form; it is a design philosophy. In a high-density urban context, we do not have to make a binary choice between technology and nature, or between efficiency and humanism. Through its folded geometry, double-skin facade, and multi-dimensional greening, this “forest” embodies the futuristic vision of Gongshu Intelligence Valley while gifting the city a breathing expanse of greenery. As the sun sests, casting intertwining shadows on the perforated aluminum panels and illuminating the sky gardens, stepping onto a landscaped terrace with a cup of tea reveals a profound truth: architecture can, indeed, engage in such a gentle dialogue with the city.
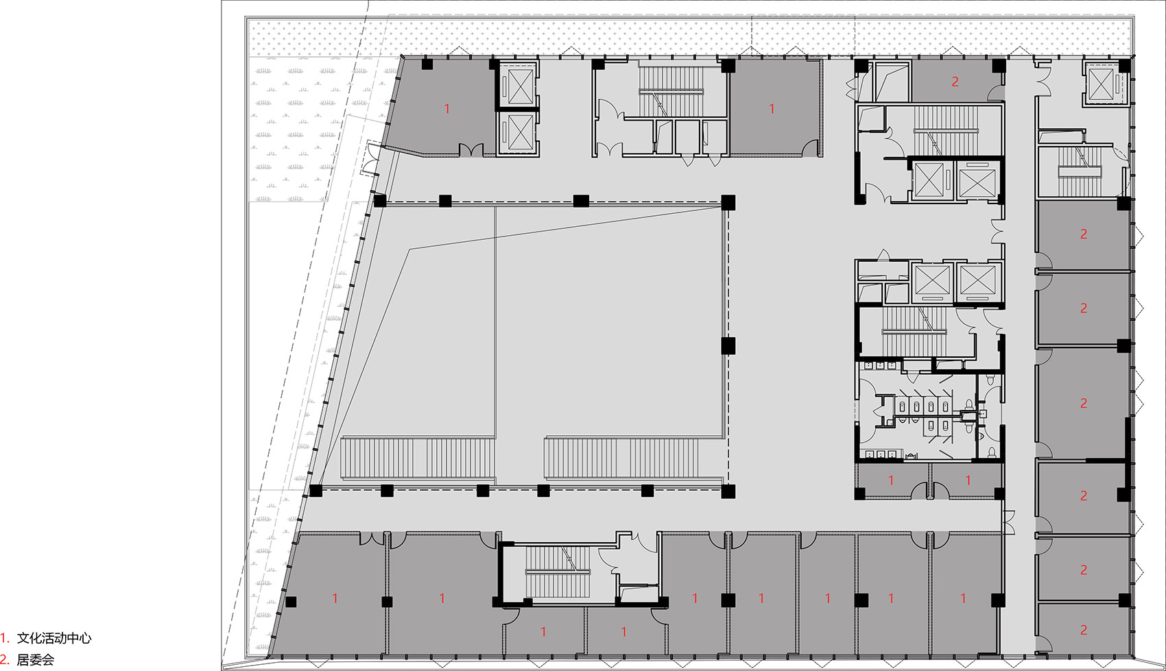
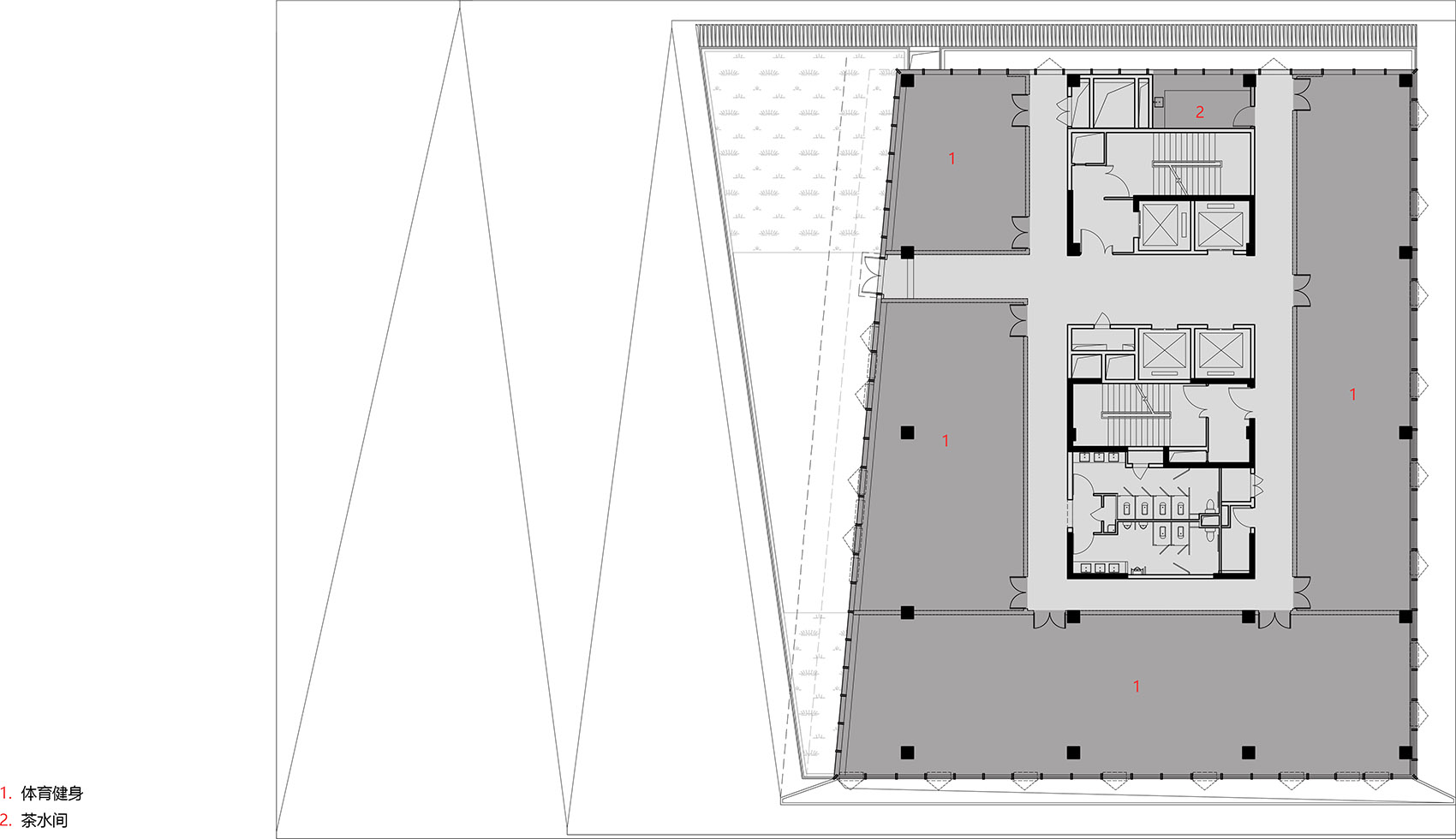
▼典型平面图(一层),The First Floor Plan© 中国联合工程有限公司
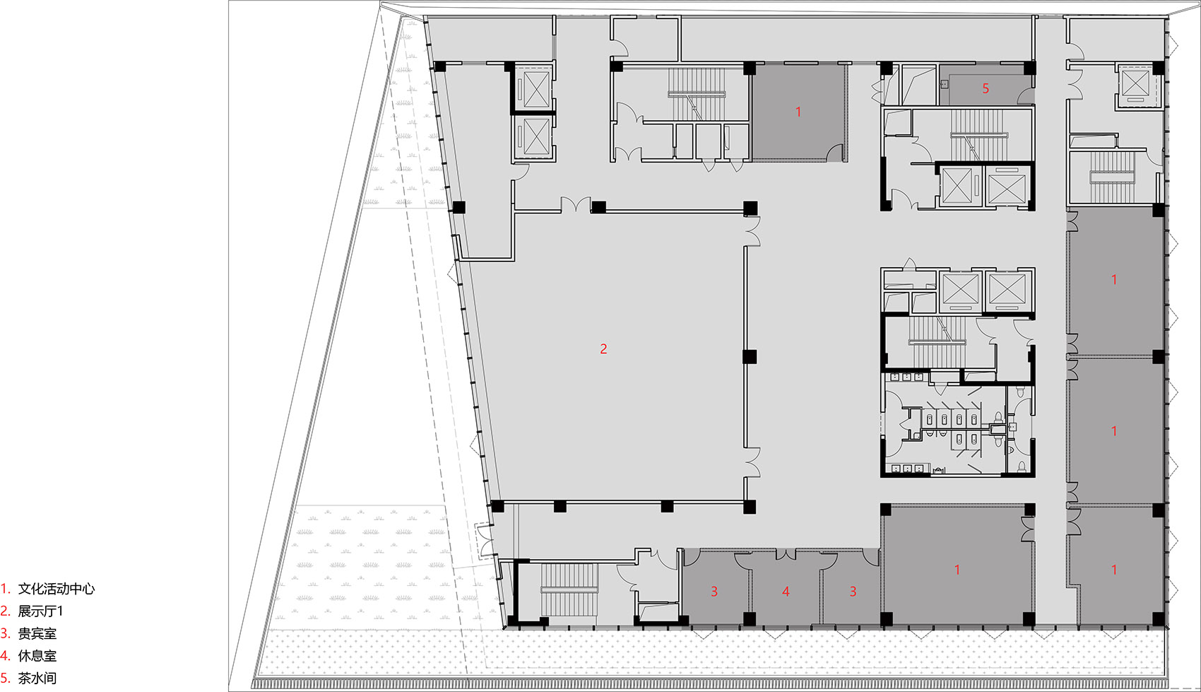
▼典型平面图(三层),The Third Floor Plan© 中国联合工程有限公司
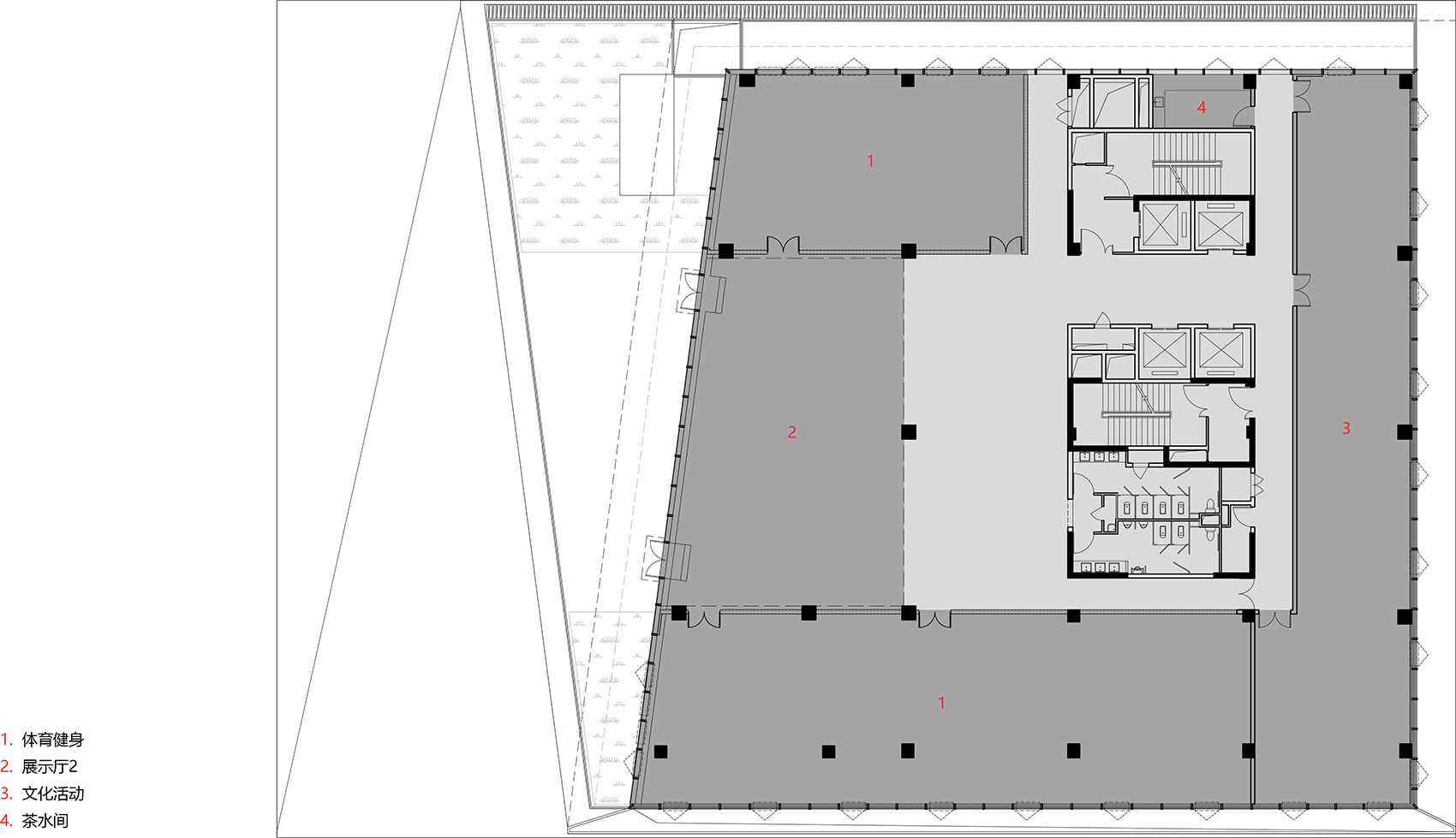
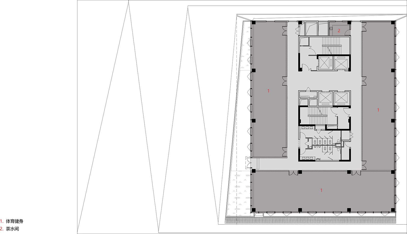
▼典型平面图(五层),The Fifth Floor Plan© 中国联合工程有限公司
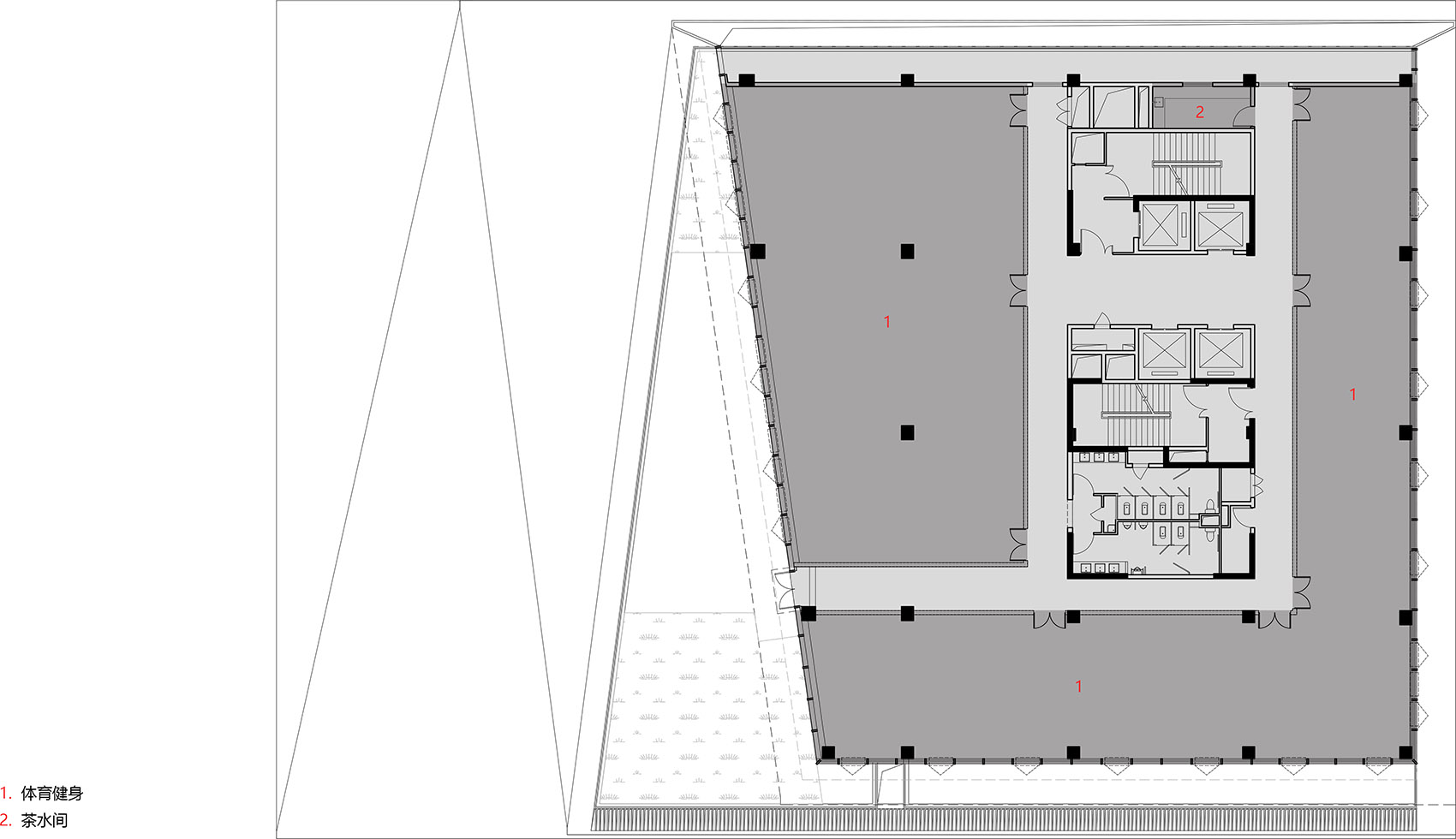
▼典型平面图(七层),The Seventh Floor Plan© 中国联合工程有限公司
▼典型平面图(九层),The Nineth Floor Plan© 中国联合工程有限公司
▼典型平面图(十一层),The Eleventh Floor Plan© 中国联合工程有限公司
▼典型平面图(十三层),The Thirteenth Floor Plan© 中国联合工程有限公司
项目标签
设计公司: 中国联合工程有限公司
位置:中国
类型:建筑
材料:混凝土 玻璃 铝板 光伏发电涂料
标签:杭州 智慧网谷
分类:建筑设计 公共建筑 办公建筑 绿色建筑
项目名称:智慧网谷管委会大楼
项目地点:浙江,杭州,拱墅区智慧网谷小镇
设计时间:2022年
建成时间:2024年
用地面积:7005㎡
建筑面积:约3万㎡
设计单位:中国联合工程有限公司
设计负责人:姜传鉷、李志刚
建筑设计:王婧逸、董浩然、叶思宏、胡佳琪
结构设计:方小军、王开
机电设计:徐爱军、殷皓健、何君、7郭健捷、沈嘉辰、吕高宁
景观设计:李立、韦庆龙
业主单位:杭州市智慧网谷经济发展有限公司
摄影:奥观建筑视觉
客服
消息
收藏
下载
最近
























