查看完整案例

收藏

下载

翻译
Architects:DSDHA
Year:2026
Photographs:©Jim Stephenson,©Rob Hill
Category:Barn,Adaptive Reuse,Cowork Interiors
Country:Afghanistan
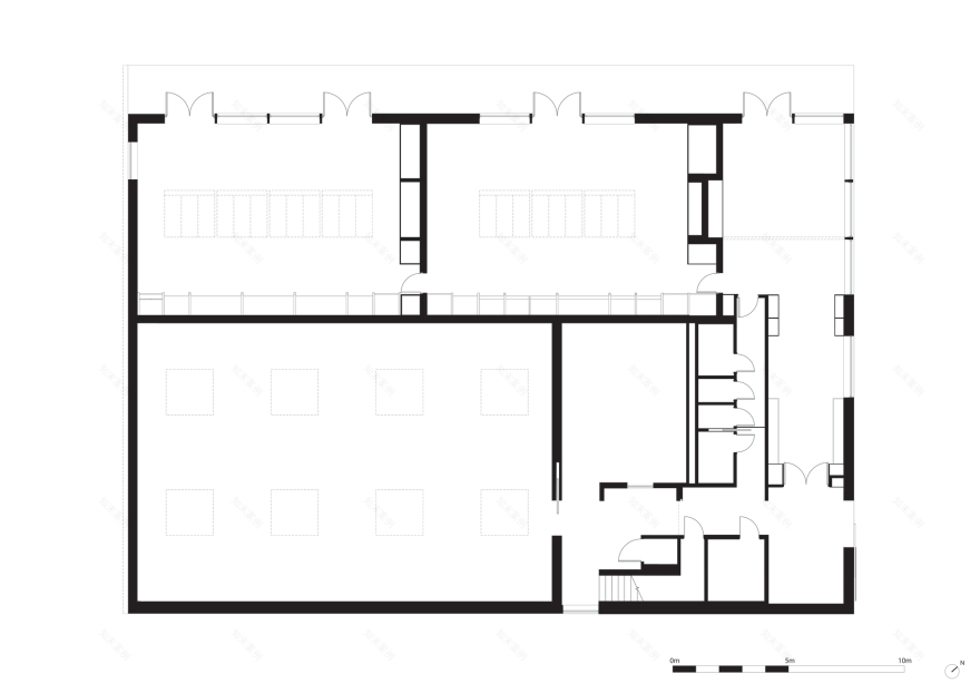
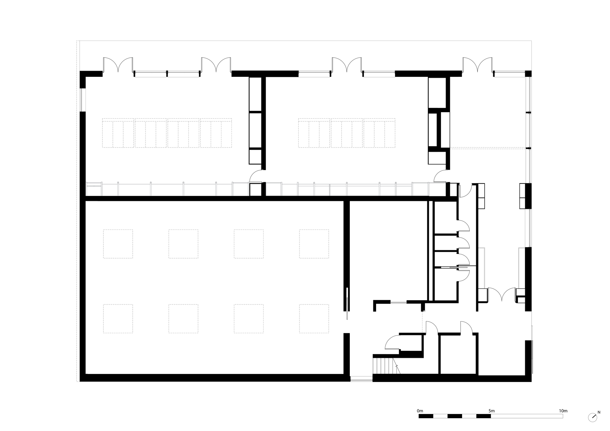
Text description provided by the architects. DSDHA has transformed the Sheep Field Barn at Henry Moore Studios & Gardens to provide new learning and engagement facilities alongside enhanced gallery spaces dedicated to the life and work of Henry Moore. Located at the Hertfordshire home of the acclaimed sculptor in the hamlet of Perry Green, the newly renovated structure sits within 70 acres of sheep fields and sculpture gardens, adjacent to the studios where Moore created his unique works. The Sheep Field Barn provides dedicated learning and making spaces where students and participants can create their own work - inspired by the same landscapes and natural environment experienced by Henry Moore.
Originally an agricultural building used for storage by Moore and later adapted by Hawkins\Brown as a gallery in 1999, DSDHA have now reimagined the structure through a substantial refurbishment and extension that doubles its footprint. Informed by principles of regenerative design, the project creates new workshops for learning, making and engagement, improves the gallery experience and upgrades ageing building services. It also advances the Henry Moore Foundation's net-zero ambitions, setting a benchmark for low-carbon gallery environments.
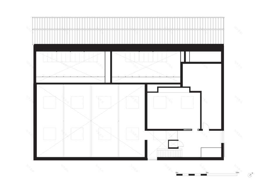
DSDHA has upgraded the original barn with a simple lean-to 'cart shed' extension, extending the existing steel frame by one bay and adding a Douglas Fir timber structure to the west that sits lightly on reusable steel screw pile foundations; providing a restrained, understated complement to Moore's sculptures displayed within the Sheep Field. Reflecting Moore's ethos of reuse and frugality, the exterior is overclad with reclaimed Silver Spruce Timber from barns in Yorkshire and the interior lined with the barn's repurposed timber cladding, thereby reducing carbon emissions and supporting the circular economy.
The visitor entrance within the northern extension is now more clearly signalled by a more generous agricultural sliding door and a visual connection directly to the galleries and studios while the glazed cart shed elevation allows the landscape horizon to continue uninterrupted beyond the building, helping to situate it quietly in its sensitive rural context.
Inside, a double-height entrance space welcomes visitors, opening clear lines of sight between the gallery and the outdoors, once again reinforcing the connection to nature. The renovation provides an improved suite of exhibition galleries. The refurbished ground-floor gallery accommodates large-scale works and will host the first-ever permanent exhibition dedicated to the life and work of Henry Moore at the Studios & Gardens. The upper gallery has also been refurbished to host a programme of changing exhibitions. The inaugural display focuses on Moore's Second World War Shelter Drawings.
At ground level, a new corridor, lined in floor to ceiling recycled Douglas Fir timber with concealed storage spaces for visitors and staff, connects the entrance to the learning areas and leads into a flexible foyer that also functions as a lunch space for visiting groups.
The new cart shed extension provides facilities for interactive, hands-on 'dry' and 'wet' workshops, strengthening the learning and engagement programme in a top-lit studio-like environment. These are clad using the existing building's old façade, repurposed and returned to their natural Douglas Fir finish. Alongside the back wall, integrated storage and display cabinets provide opportunities to showcase work created in the spaces, , while large windows maintain a strong visual connection to the surrounding landscape and Large Reclining Figure on the mound.
From the workshops, doors open outside, providing additional external learning space, and creating close proximity to the sheep grazing in the fields. The overhang roof eaves offer shelter and protection from rain, glare and overheating, with sheep troughs serving as outdoor sinks.
Through material reuse, integrated ground source heat pumps, solar panels and efficient conditioning systems and form-factor, Sheep Field Barn is projected to surpass 50% reduction to 2030 LETI targets for embodied and operational carbon. Reflecting the environmental values embedded in Moore's life and work, the new extended roofscape integrates photovoltaic panels, alongside openable rooflights, enabling natural ventilation and controlled daylight to the learning spaces. New air-conditioning systems to the galleries operate at lower, less energy-intensive speeds, which remove audible disruption, whilst maintaining conservation conditions required for artworks. Sheep wool insulation within the building envelope provides an environmentally friendly, natural material solution that further references the agricultural identity and context of the scheme. In applying regenerative design principles, DSDHA's design both doubles the size of the barn and halves the running costs.
Deborah Saunt, Founding Director of DSDHA, commented: "Our approach for the barn, inspired by Moore's ethos of no-nonsense frugality, interrogates each design decision through the lens of sustainability at every scale, while aiming to create an inclusive and welcoming cultural environment that appeals to and nurtures all those who come to explore, learn and be inspired by the UK's most significant artist of the twentieth century. The design maintains constant views of nature, to anchor and create a considered backdrop to the work, home and studios of Henry Moore, while supporting the work of the Foundation today and into the future."
Lesley Wake, Chief Operating Officer of the Henry Moore Foundation, commented: "We are thrilled with the new Sheep Field Barn. Externally it retains the feel of the former agricultural barn known by Henry Moore, while internally offering state of the art facilities for exhibitions and creative making. The building sits harmoniously within Moore's historic landscape, in quiet dialogue with his monumental sculptures in the Sheep Fields. This is the Foundation's most sustainable building to date - both in terms of decarbonised operations and embodied carbon - and it is beautiful - an inspiring place in which to see and make art."
Project gallery
客服
消息
收藏
下载
最近



































