查看完整案例

收藏

下载
引言
Introduction
在郑州,钢筋与混凝土筑就的地方,曾是城市扩张最显赫的烙印。作为一座“火车拉来的城市”,这里的脉搏与快节奏同频共振,人们步履匆匆,仿佛与疾驰的列车共享着同一份基因。
然而,当繁华成为触手可及的日常,一种新的渴望正在觉醒,在速度至上的洪流中,能够从容“慢”下来,正悄然成为现代居所最奢侈的注脚。
“
我一直尊重空间改造带来的体验感,不过度用材质对抗,不去标榜装饰,就是把空间与生活体现其中,用体块建立关系,承载丰富的空间情感,从而找到适合当下节奏的一种‘慢’生活。
”
—设计师手记
光,是空间最温柔的建筑师。
特意打造的“框”像是与光影最好的组合,框出生活中最美好的画面。这方小小的天地,被精心框定,却容纳了无限的想象与宁静,成为喧嚣都市中,一处可以安放灵魂、与自我对话的诗意角落。
午后阳光暖融融的,泡杯热茶窝在里面,翻几页书,闻着书页间的墨香,连时光都慢下来了。
不久,孩子也会挤过来,抱着绘本翻看,这里没有电视的喧嚣,没有手机的干扰,只有书页翻动的沙沙声,和窗外偶尔传来的鸟鸣,成了最治愈的精神栖息地。
在这里,没有繁复的装饰,每一处都服务于生活的本质。无论是沙发上的慵懒午后,还是廊道上的驻足凝望,空间都在用光影、材质与留白,诉说着关于“家”的诗意。
这不仅是居住的空间,更是一场关于内心与空间的对话,暮色降临,暖黄的灯光亮起,这里便成了城市喧嚣之外,最温柔的避风港。
不必刻意营造,却自有深意,无需繁复装饰,却满是生活的余韵。这里是独属于男女主人的精神角落,是卸下疲惫后,与自己、与时光温柔相拥的场域。
△演变过程丨EVOLUTION PROCESS
在设计之初,我们就改变了原有结构,将3层的楼梯间与书房通过新“廊道”连接在了一起,并加宽了书房的尺度。这个设计让原本独立的两个空间产生了奇妙的互动,形成了一个开放而流畅的动线。
廊道的增设解决了功能性的连接问题,更创造了一个充满仪式感的过渡空间。可以从楼梯间直接步入书房,也可以从书房望向楼梯间的光影变化,这种空间的渗透性,让整个区域的采光和通风都得到了极大的改善。
挑高的客厅以极简线条勾勒空间骨架,地毯上的几何纹路如无声的乐章,将视线引向电视墙的深邃留白。
木的温润、石的冷冽、光的灵动,编织出“少即是多”的空间美学,每一处留白都藏着生活的余韵,每一道线条都指向内心的宁静,让家成为承载时光与情感的容器。
这一层,是家的“公共客厅”,包容了生活的烟火气,也承载了家人的欢声笑语,一次次相聚都成为记忆中温暖的底色。
打破空间的界限,让茶室与休闲区自然过渡。格栅屏风半遮半掩,既保留了中式的含蓄韵味,又让视线在光影中自由穿梭。
这道“隐匿的窗”,既是美感的一部分,也是视觉的延伸,将茶桌、地毯、沙发的轮廓悄然框入画面,使得空间在虚实之间自由呼吸。
步入卧室,整面墙的衣柜色调干净整洁,搭配嵌入式的开放格,为空间留下适度的呼吸感。梳妆区放在卧室与卫生间之间的位置,方便使用。
我们打破常规布局,根据居住者独特的生活轨迹重构了空间,主卧室设置的双动线,可以更好的与阅读空间联动起来,形成一个不明确的拓展地带。
△区位分析丨LOCATION ANALYSIS
△项目俯视丨OVERHEAD VIEW
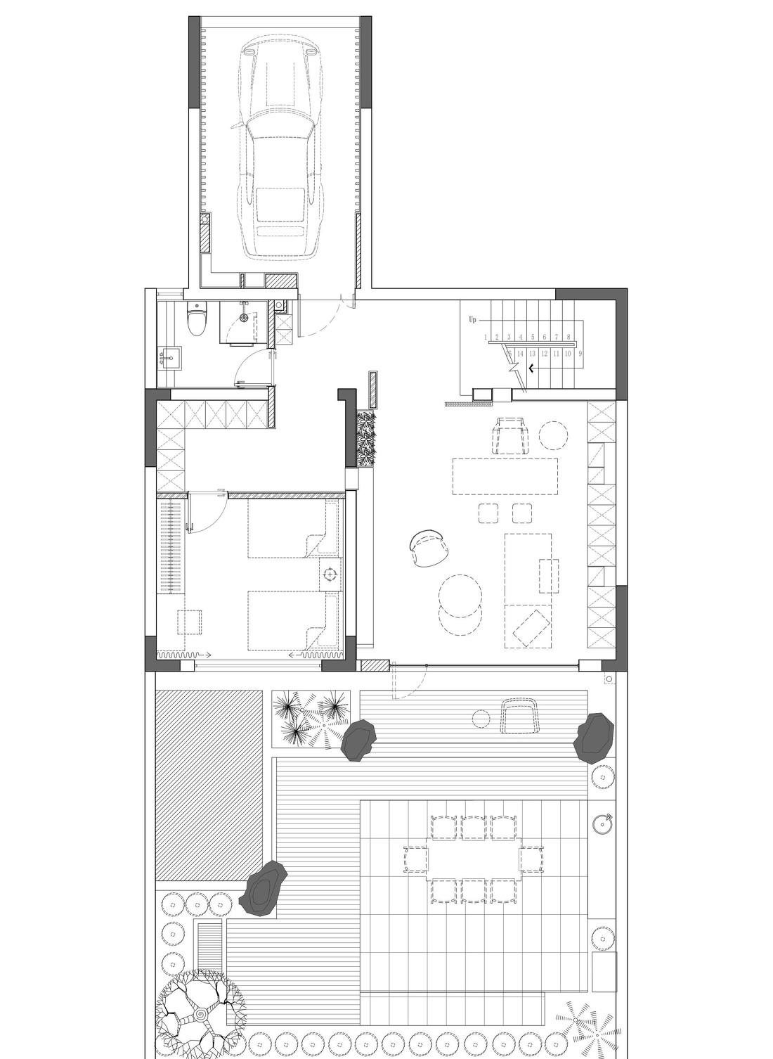
△1F平面布局丨PLAN
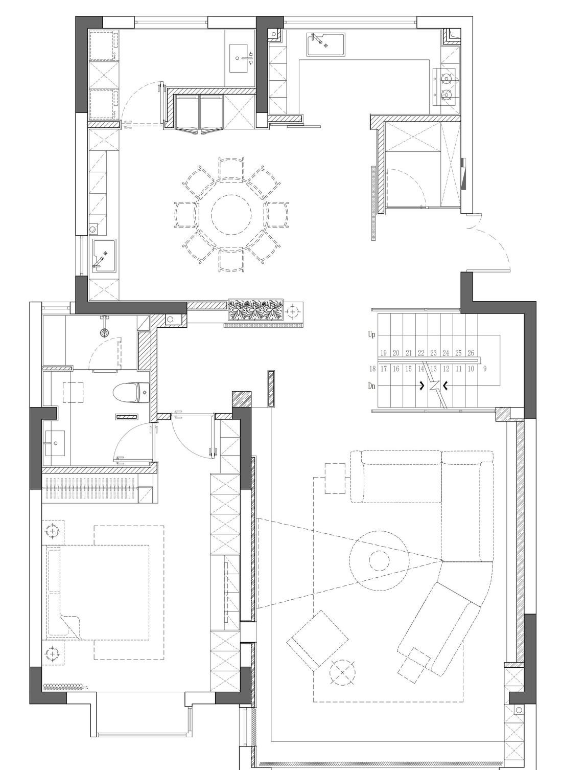
△2F平面布局丨PLAN
△3F平面布局丨PLAN
△轴测图丨AXONOMETRIC
△施工现场丨CONSTRUCTION SITE
项目信息
Project information
项目名称丨慢序住宅
项目位置丨河南郑州
设计机构丨XZID室内设计事务所
主持设计丨许臻、路盼
项目类型丨叠拼别墅
项目面积丨430m²
设计时间丨2023.07
完工时间丨2025.04
摄影拍摄丨张扬
主要材料丨拉丝不锈钢、爵士白石材、夹丝玻璃、橡木木皮、壁布
其他品牌丨HC28、可木、威诗勒、HIK汉格、ASKO电器、利勃海尔、德国帝森、巨铠
关于我们
About us
XZID室内设计主创许臻(右)、路盼
XZID室内设计是一支年轻有活力的90后设计力量,由设计师许臻领衔,专注于提供室内空间整体解决方案,以现代主义为设计核心,注重空间情绪与体验营造,在丰富与克制间寻求平衡,致力于为空间探索无限可能。
客服
消息
收藏
下载
最近



































































