查看完整案例

收藏

下载

翻译
Architects:Goldstein Heather
Area:244m²
Year:2025
Photographs:James Retief
Manufacturers:Bauwerk Colour,CAD,Hempblock,Lime Green,London Brick Co,Sebastian Cox,Sebastian Cox
Planning Consultant:Maddox Planning
Structural engineer:Float Structures
M&E consultant:IC&T
Quantity surveyor:Metrum Consulting LLP
Category:Houses
Approved Building Inspector:Thames Building Control
Client:Rowan & Angelina Bamford
City:London
Country:United Kingdom
Text description provided by the architects. Goldstein Heather has completed West London House, an ambitious four-storey lateral extension that extends a narrow end-of-terrace Victorian home in Stamford Brook over the site of a former, now demolished, Territorial Army building. Known for their preference for enduring forms, natural materials, and a resistance to short-lived architectural trends, Goldstein Heather was a natural fit for a project that demanded both contextual sensitivity and the creation of spaces that feel perennial.
Homeowners Rowan and Angelina Bamford, who purchased their original house a decade ago, had long felt constrained by its narrow floorplate and disjointed scissor-like layout. With three children and a multigenerational lifestyle in mind, they often found the family could spend an entire day without crossing paths. Rooms felt isolated, and the dining room sat deep in the plan with little daylight or connection to the garden. So when the neighbouring 1930s former military building, once known as Expedition House, unexpectedly came on the market, the couple seized the rare opportunity to create the naturally lit and socially cohesive home they envisioned. What began as a straightforward refurbishment soon evolved into a complete rethinking of their life at home, guided by Goldstein Heather from design concept through planning and construction.
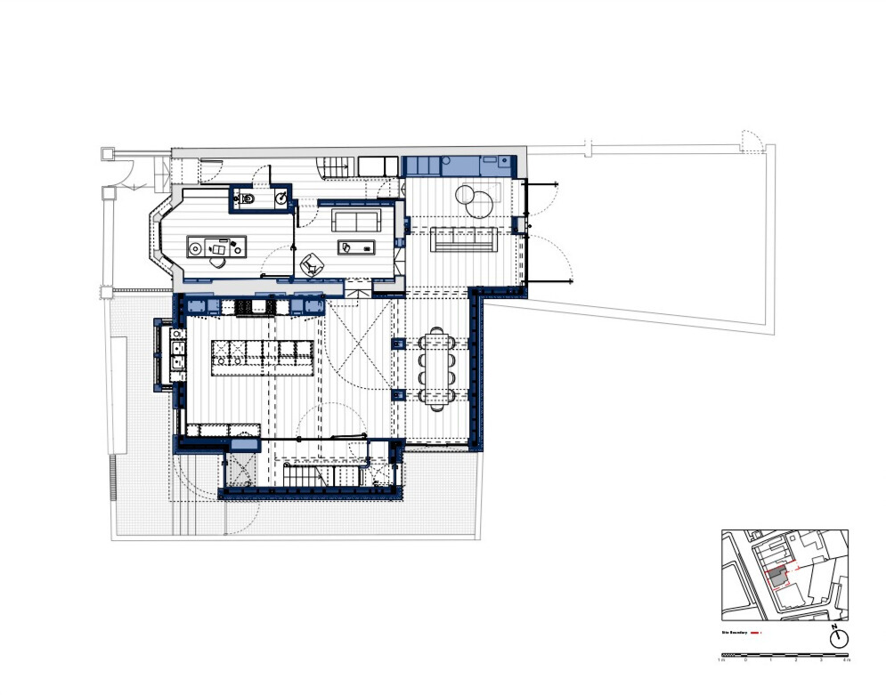
The brief centred on creating wide, fluid, and interconnected spaces. The site, benefitting from east–west light and a green square opposite, offered an unusually bright urban condition. Goldstein Heather choreographed this natural light into the architecture, introducing a soaring double-height volume that brings daylight deep into the plan. A large pendant light anchors this vertical opening, visually connecting the lounge above with the kitchen and dining areas below. Windows, skylights, and framed openings offer outlooks to the park at the front, glimpses of treetops above, and new views to the rear garden.
A defining feature of the interior and exterior of the extension is its expressive architectural language. Curved arches, sculpted to catch and shape light, lend the new structure a sense of permanence and tactility. It's unmistakably contemporary, with expressive geometries and purposeful brickwork. Together, the original home and the extension total nearly 500 sqm. The 244 sqm extension functions almost like a separate house in its own right, but is connected to the original home on every level.
On the ground floor, an expansive kitchen, dining, and living space has quickly become the family's favourite gathering area. The Bamfords now host with ease, recently welcoming twenty-five guests: teenagers and younger children flowed upstairs, and adults gathered around the table, all connected yet comfortably spread out. The kitchen, collaboratively developed by Sebastian Cox and Goldstein Heather, features a long marble island with green veining, bespoke ash joinery, and cabinetry with a distinctive crinkle-pattern that echoes the same articulation on the setback third-floor storey.
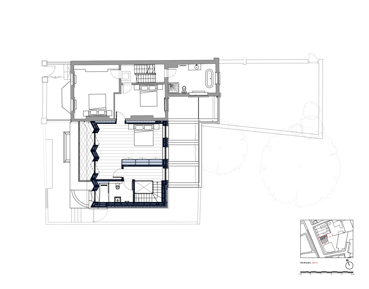
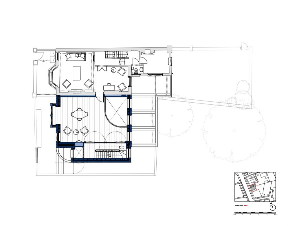
Travelling upstairs, the second level opens onto an expansive landing, offering a relaxing lounge space with an internal balcony that overlooks the ground floor. The home's layout is carefully balanced to support both privacy and connection: three children share an interconnected suite on the third floor, spanning the old and new sections of the house, allowing them to remain close while also providing the option to separate discreetly in the future. The top floor is dedicated to a master bedroom with its own private balcony. A graceful curving timber staircase threads through one side of the home linking the levels. As one moves up the stairs, the landings progressively widen, and natural light becomes more abundant.
Externally, Goldstein Heather carefully restored the original Victorian façade, removing layers of white paint, repointing the brickwork, and restoring the parapet. The extension adopts a lighter-toned yellow brick, complemented by a two-toned render which gives the new build its own distinct architectural language. At the upper level, an accordion-form façade breaks down the massing and introduces rhythm to the street elevation, allowing the top-floor volume to sit comfortably within its context. Highly insulated construction and solar panels across the roof bring the project close to carbon-neutral in the summer months. West London House is a pivotal moment for Goldstein Heather, the studio's most complete expression to date of its design ethos. Bold yet contextual, contemporary yet timeless, the project is a compelling demonstration of how London's existing fabric can be expanded with generosity, permanence, and beauty.
Giles Heather, Director at Goldstein Heather, said: "The West London House crystallises the design ethos of our studio. With like-minded clients and an excellent contractor, we have been able to realise a house that is at once completely of its time and yet perennial. The geometrical forms that articulate the exterior continue through to the interior, where domestic, intimate spaces seamlessly connect with more expansive communal areas, filled with light from both east and west. It's also now a more practical house, more usable, and more connected. We are delighted that we have achieved a unified vision, one shared by everyone involved in the process."
Rowan Bamford, client, said, "With Goldstein Heather, we were able to create a light-filled, connected home that suits the way our family lives. It's been designed with the future in mind. A space where our children can stay longer if they choose, and where Angelina's mum and sisters always have a place to stay when visiting London."
Project gallery
客服
消息
收藏
下载
最近





























