查看完整案例

收藏

下载

翻译
Architects:James Harbard Architects
Area:250m²
Year:2025
Photographs:Pier Carthew
Lead Architects:James Harbard
Builder:Agora Homes
Category:Houses
Engineer:Clive Steele Partners
Styling:House of Paule
City:Victoria
Country:Australia
Text description provided by the architects. Ramsden is a home for a young family assembled from fragments of memory. The design was heavily influenced by The Rings of Saturn by W. G. Sebald, a reflective travelogue with no conventional plot, yet densely layered with personal and international histories. The work reveals the complexity and disorder inherent in individual relationships to history, culture, and the past.
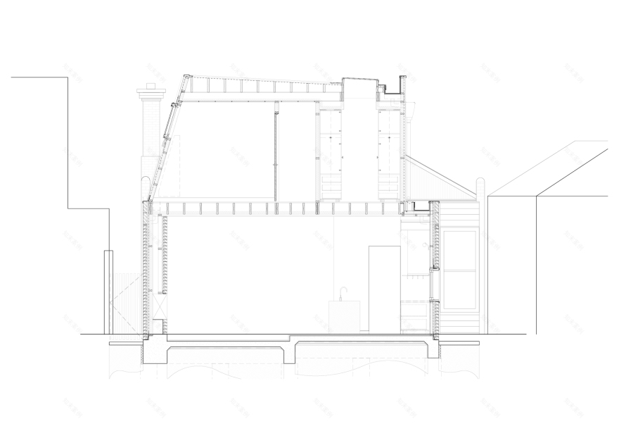
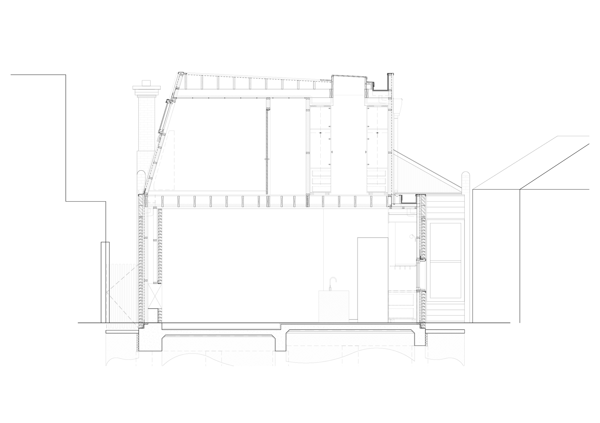
The house operates in a similar way, as a set of interwoven histories. It carries a certain simple grandeur, yet is punctuated by moments that recall both episodes of canonical architectural thought and fragments of the client's own past.
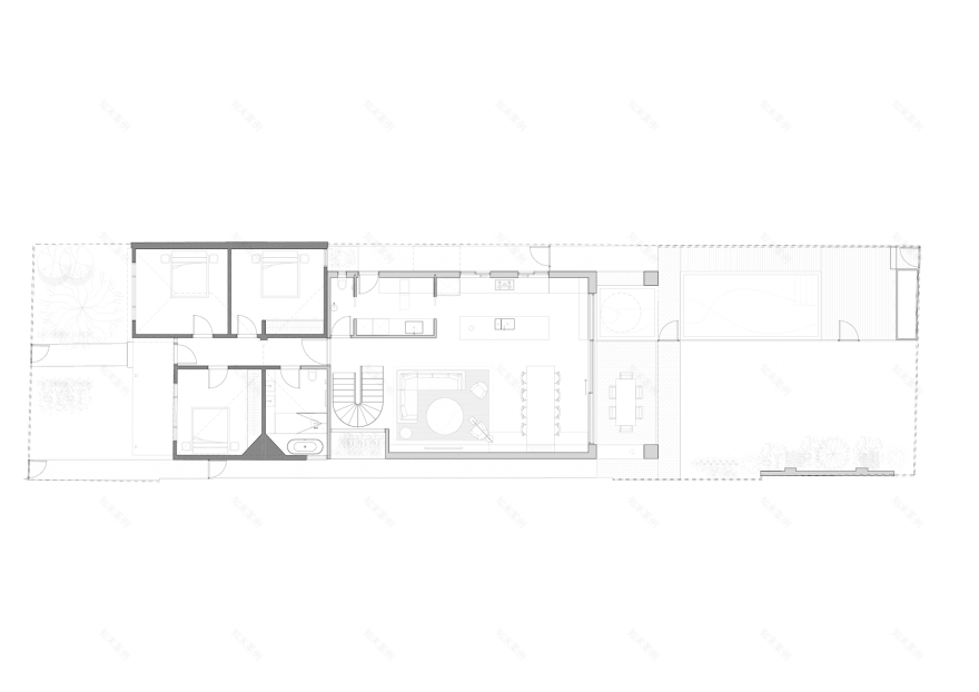
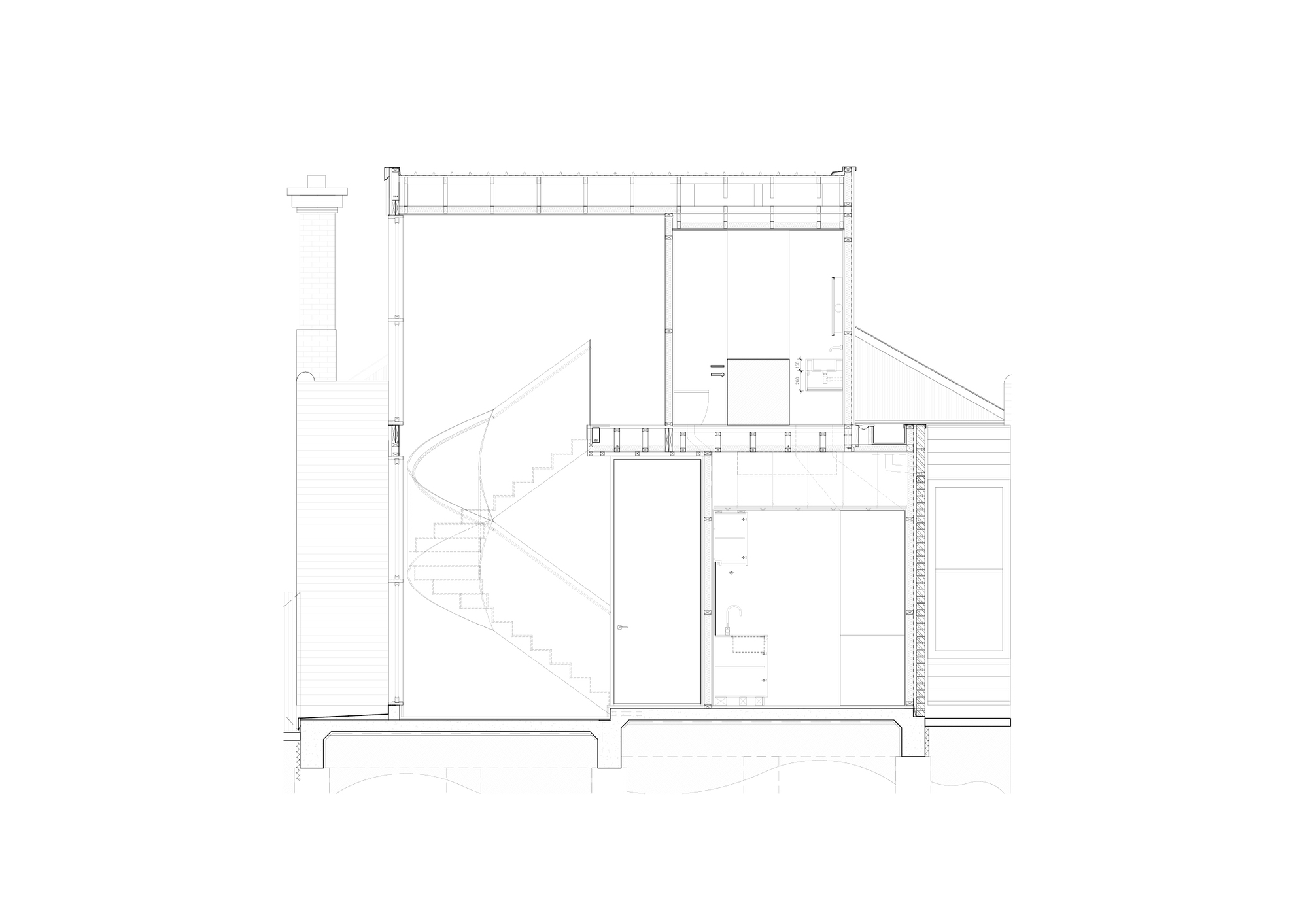
The stair's double-height window echoes the client's childhood home, while the orientation of the kitchen and dining recalls another. These plainly domestic moments fold into a broader architectural collage, binding memory with history in a manner indebted to Sebald's drifting narratives.
References to Carlo Scarpa appear in the stepped details that choreograph movement and blur thresholds throughout the building. Nods to Gio Ponti emerge in the use of deep blue as both ornament and structural accent, introducing bursts of intensity and playfulness. The spiral stair punctuates the space as a feature and an anchor; the deep blue used to paint it reappears in other areas of the house, from the carpet to the hues in the stone.
A single Miesian column supports the breakfast bar overlooking the pool, a nod to Ludwig Mies van der Rohe, bringing a note of tectonic discipline. It's a moment that feels at once slightly absurd and yet entirely at home.
Together, these elements form a kind of spatial collage. Rather than the cut-and-paste chaos the term might imply, the house feels holistic, light, and calm, where disparate layers and louder individual moves resolve into a sort of quiet coherence.
The design process became a negotiation between discipline and delight. The weight of meaning embedded in its details recedes over time, becoming a backdrop for the everyday rhythms of domestic life, a walk through twentieth-century history that also continues the intimate settings of the occupants' own past.
Project gallery
客服
消息
收藏
下载
最近

































