查看完整案例

收藏

下载
项目名称 | 碧桂园·天玺 Project address | BiGuiYuan
项目地址 | 中国·重庆
Project address | Chongqing, China
项目面积 | 450㎡
Gross Built Area | 450㎡
项目主题 | 现代极简
Project style | Modern minimalism
设计团队 | KD室内设计事务所
Design team | K.D.interior design office
施工落地 | 恺邸工程
Engineering construction | KaiDi construction
陈设设计 | 恺悦陈设
Furnishing construction | KaiYue furnishing
设计艺术线条是光影下的切片,绝妙又神奇
Slices under light and shadow
本案为一套合院别墅,设计师注重整体美观与空间的协调,运用现代极简化的设计,将光源利用到极致,营造爱与和谐共融的居住空间。
业主的想法与设计师的理念不谋而合,在满足功能性需求后,以“隐于形”为核心,打破空间动线固有的逻辑,将彩色藏匿于深色中,缔造出大气却静谧的居家「奢侈感」。
01“重新定义生活仪式感”
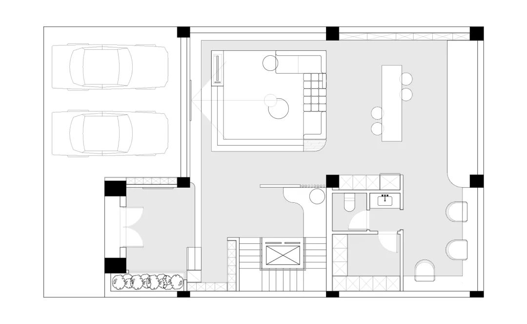
负一层功能区划分为下沉式花园、餐厅、西厨、中厨、书房、保姆间等。
下沉 Deep seating area
-
下沉式的休闲区,错落有致,纵向延伸,增加空间的层次感和纵深感。胡桃木色与白色的交织,整个室内慵懒随性,惬意悠然。改变原户型的错层概念,将原本下沉的空间变成错落的结合,借由不同的颜色及弧形造型出视觉隔断。隐藏式的灯带勾勒出空间的轮廓,营造出场域的艺术性与仪式感。
室内由设计师重新规划,双层挑高和相互贯通的空间,在柔和的中性色调中,与天然的材料质感和绿植的气息,营造出温暖,宁静,舒适的生活环境。
公区的开放布局增加了互动性,独立却不孤立,以通透的视觉来引导居住着在空间中的生活轨迹。展现着设计师对空间的互动喝秩序的重塑。设计师在这里玩转几何体块,但又以温柔的弧线收拢,艺术得以包裹在细腻设计表达中。
巧妙的运用居住着的兴趣,将原本局促的角落变成开放的竞技室;与下沉沙发区共建出富有节奏喝层次的行进体验,随着视线和路径发生不同的转变,情绪在这一刻的变换中得到滋养。
02“下沉式庭院,自然流转”
负二层功能划分为车库、下沉式休闲区、茶室等。
转换
Living container -
餐厅与西厨设计为一个开放式大区域,圆形餐桌让家温馨感倍增。宽敞的吧台区,实现烹饪、用餐、交流等多功能。
越是自然的,就越有烟火气。设计师放弃大理石,转而用木质的温润和岩板的颗粒质感转换不同需求的体验过渡。让负二层的功能区现代且雅致,整体的风格性达到了完美的统一,静静的诉说着居住着的温馨。
03“意境开阔,展景沐温馨”
一层功能划分户外花园、客厅、书房、老人房。
对话
Open artistic conception -
空间设计的乐趣在于分解生活延展至空间的居住体验感,生活的状态是空间的气场,独处的自由是对设计的考验。
客厅展现出极简之美。潘多拉岩板、透明玻璃、竖琴隔断、布艺等多种极简元素的使用,塑造出一种节制而阔达,简单却又意味无穷的墅居体验。
书房从色调到材质,都能给人一种优雅从容的感受,在繁忙的生活中,一处能够让人静心的空间,让幸福感更强烈。
04 “至简之美 柔和之韵”
二层功能划分为主卧套房以及儿童套房。
清透 Darling Point Apartment - 设计师希望的舒适是闭上眼睛也可以感受到的品质和触感。借助向内的视觉体验感为“介质”,来实现特有的、珍贵的居心地空间。
主卧层次感相当丰富。黑色木饰面墙既作为床头背景墙,也是休闲区与衣帽间直接的隔断。床尾则是未到顶的投影墙,满足业主在卧室看片的需求。
卫生间与主卧相连,开阔而流畅,双台盆与大浴镜延长了栖居大舒怡体验。台面与背景大理石异色的相呼应,生动了空间,在这里,喧嚣摒弃。
次卧同样注重尺度与氛围的交织感,在色彩灯光及温润材质的映衬下,于细微处提升体验感。
空间设计师:樊华
陈列设计师:戚菲菲
以原创设计·敬美好生活
设计风格通过深层的与业主交流,将生活方式、空间情绪、建筑空间本身的粘性关系打造「活」的生活空间
—
我们不做设计,只为您打造专属的“生活空间”
MORE CASES
……
客服
消息
收藏
下载
最近














































