查看完整案例

收藏

下载
本次改造的目的,是将一处城市公寓重新激活,使其成为一处第二居所式的空间。回应业主提出的“在多功能空间中体验非日常生活”的需求,设计从最初阶段便将重点放在开口部的处理上。
The purpose of the renovation is to revive an urban apartment into a space as the second house. Responding to the client’s request of ‘living an extraordinary life in a versatile space’, I put focus on the design of the opening in the beginning.
▼入口,entrance © Norihito Yamauchi
该公寓单元位于建筑的第11层,即顶层空间。拥有约5米高挑空的室内空间中,随机布置着多种形态的大尺度窗洞。为控制通过这些窗洞复杂进入的自然光,设计引入了墙体与磨砂玻璃屏风,为空间增添了新的光影体验。
The apartment unit is located on the 11th floor, which is the uppermost floor of the building. The room with the distinctive 5-meter-high atrium has randomly-arranged various shapes of large windows. To control natural light that intricately streams through the windows, walls and frosted glass screens are installed, adding new light-and-shadow visual experience to the room.
▼室内空间概览,interior overview © Norihito Yamauchi
▼高差过渡空间,level transition © Norihito Yamauchi
这些距离原墙体约40厘米设置的屏风,使窗洞的存在变得模糊,通过接收光线而自身转化为“光之墙”。夜晚,来自间接照明的柔和漫射光为室内空间带来丰富的色彩层次。同时,设置在分隔屏风的悬挂墙体上的镜面,反射出连续的框景,营造出空间的延展感与深度。
The screens, which are positioned 40 cm off the wall, has made the existence of the windows vague, receiving the light to make themselves the ‘wall of light’. At night, the gentle diffused light from the indirect lighting adds a wealth of colors to the space. In addition, the mirrors, which are applied on the hanging walls that divide the screens, reflect the series of frames, creating visual expansion and depth in the space.
▼起居区望向光之墙,living area towards ‘wall of light’ © Norihito Yamauchi
▼光之墙,‘wall of light’ © Norihito Yamauchi
▼光线变化下的光之墙,‘wall of light’ under varied lighting © Norihito Yamauchi
▼光之墙一角,a corner of ‘wall of light’ © Norihito Yamauchi
该单间公寓的平面布局中引入了辅助动线,使人可由入口直接通往湿区。空间通过地面高差与材料转换被分隔。在入口门厅中,于玻璃砖墙前设置了一道具有进深的墙体,嵌入其中的磨砂玻璃进一步柔化了光线。透过磨砂玻璃隐约显现的玻璃砖网格,为空间带来了丰富的层次变化。在磨砂玻璃前,陈列着来自业主自有时尚品牌的一件服装作品,将其作为艺术品展示。光线强化了该作品的轮廓。
The plan of the studio apartment includes the secondary circulation which provides access from the entrance to the wet area. It divides the room by floor level difference and material transition. At the entrance hall, a wall with depth is designed in front of the glass block. The frosted glass which is embedded in the wall diffuses the light more softly. The grid of the glass block that emerges through the frosted glass gives rich nuance to the space. In front of the frosted glass, a garment from the client’s fashion brand collection is displayed as an artwork. The light accentuates the silhouette of the artwork.
▼门厅望向服装展示,entrance hall towards garment display © Norihito Yamauchi
▼磨砂玻璃屏风与服装展示,frosted glass screen and garment display © Norihito Yamauchi
▼服装展示近景,garment display close view © Norihito Yamauchi
部分天花采用清水混凝土外露处理,以确保层高并赋予空间个性。沿墙设置的沙发座椅可供多人休憩,营造出开放而舒展的氛围。克制的色彩体系、高品质材料与粗粝的混凝土质感共同营造出一种现代而略带奢华的空间氛围。对于生活节奏繁忙的业主而言,这一在不断变化的光影中安静自处的空间,成为一处“替代性的居所”,为日常生活提供重置与缓冲。
The exposed concrete finish in some part of ceiling secures the ceiling height and adds character to the space. Sofa benches are provided for many guests to relax along the wall, creating sense of openness. The subdued color pallet, high-quality materials, and rough concrete finish create a modern yet luxurious atmosphere. For the client who leads a busy life, the room where one quietly faces oneself in shifting light, is ‘an alternative dwelling’ that offers a reset from daily life.
▼沙发座与休憩空间开灯/关灯,bench seating area with lights on/off © Norihito Yamauchi
▼洗手间,washroom © Norihito Yamauchi
▼细部,detail © Norihito Yamauchi
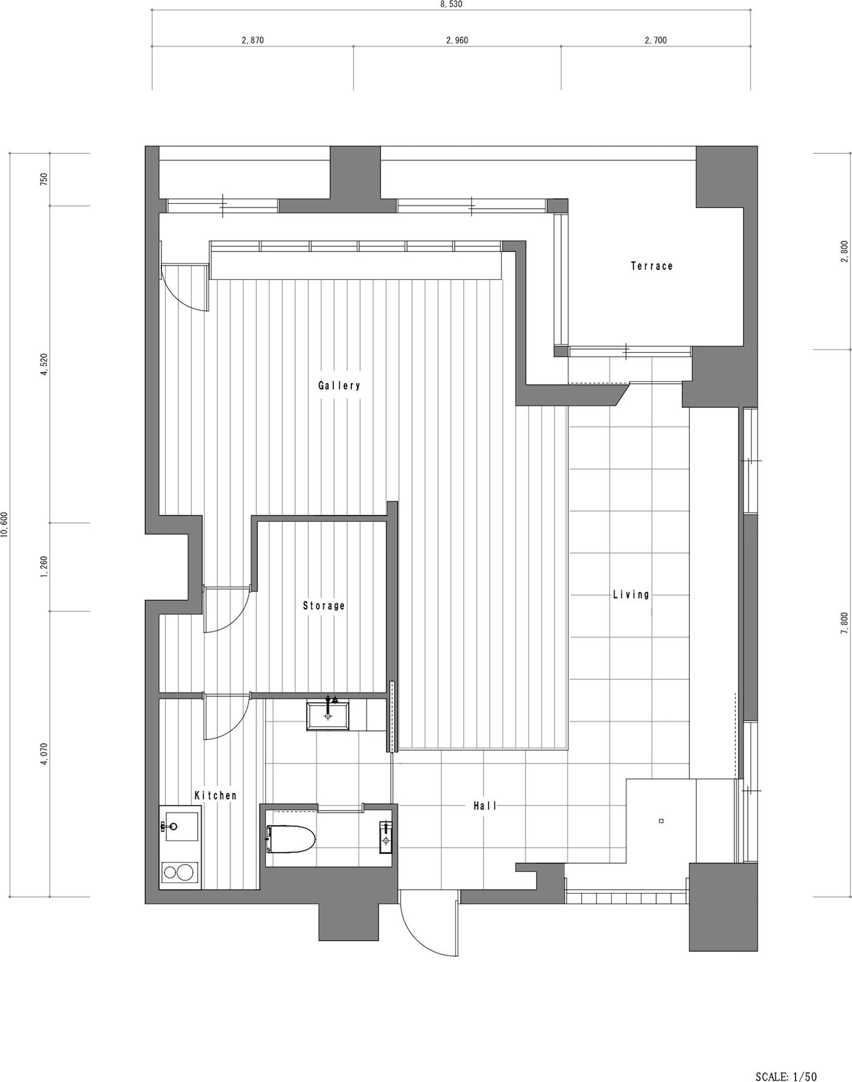
▼平面图,floor plan © FORM/Kouichi Kimura Architects
Architects: FORM/Kouichi Kimura Architects
Location: Osaka, Japan
Client: Private
Construction Year: 2025
Floor area: 77,73m2
Photographs: Norihito Yamauchi
客服
消息
收藏
下载
最近






















