查看完整案例

收藏

下载

翻译
Aruelle | Pop-Up Store
Vilnius, Lithuania | 2026 | 26 sq.m
Architects: Kseniya PopovaPhoto/visualization: Olga Kulichihina
The concept for this pop-up store was developed by Ksyuschenka Bureau for the Lithuanian brand Aruelle, translating the brand’s visual language — femininity, softness, and contemporary minimalism — into a spatial experience. Founded in Lithuania in 2016, Aruelle creates sleepwear and homewear that combine comfort with refined aesthetics and is now distributed in stores across more than 30 countries worldwide. The project explores how these values can be expressed through a calm and tactile retail environment that invites visitors to slow down and engage with the products.
↓ main colors
Within the compact 26 m² space, the design is organised through a restrained and carefully balanced composition, allowing the collections to remain the visual focus. The interior palette is built around soft neutral tones — light grey and warm off-white — forming a serene architectural backdrop. These tones are complemented by deeper accents of caramel brown and rich chocolate velvet, introducing warmth and a subtle sense of luxury. Micro-cement flooring and lime-wash textured walls enhance the tactile quality of the space, while black metal rails provide a minimal and contemporary display structure. Stainless steel and mirrored surfaces add reflections and visual depth, helping the compact interior feel more open and layered.
↓ textures
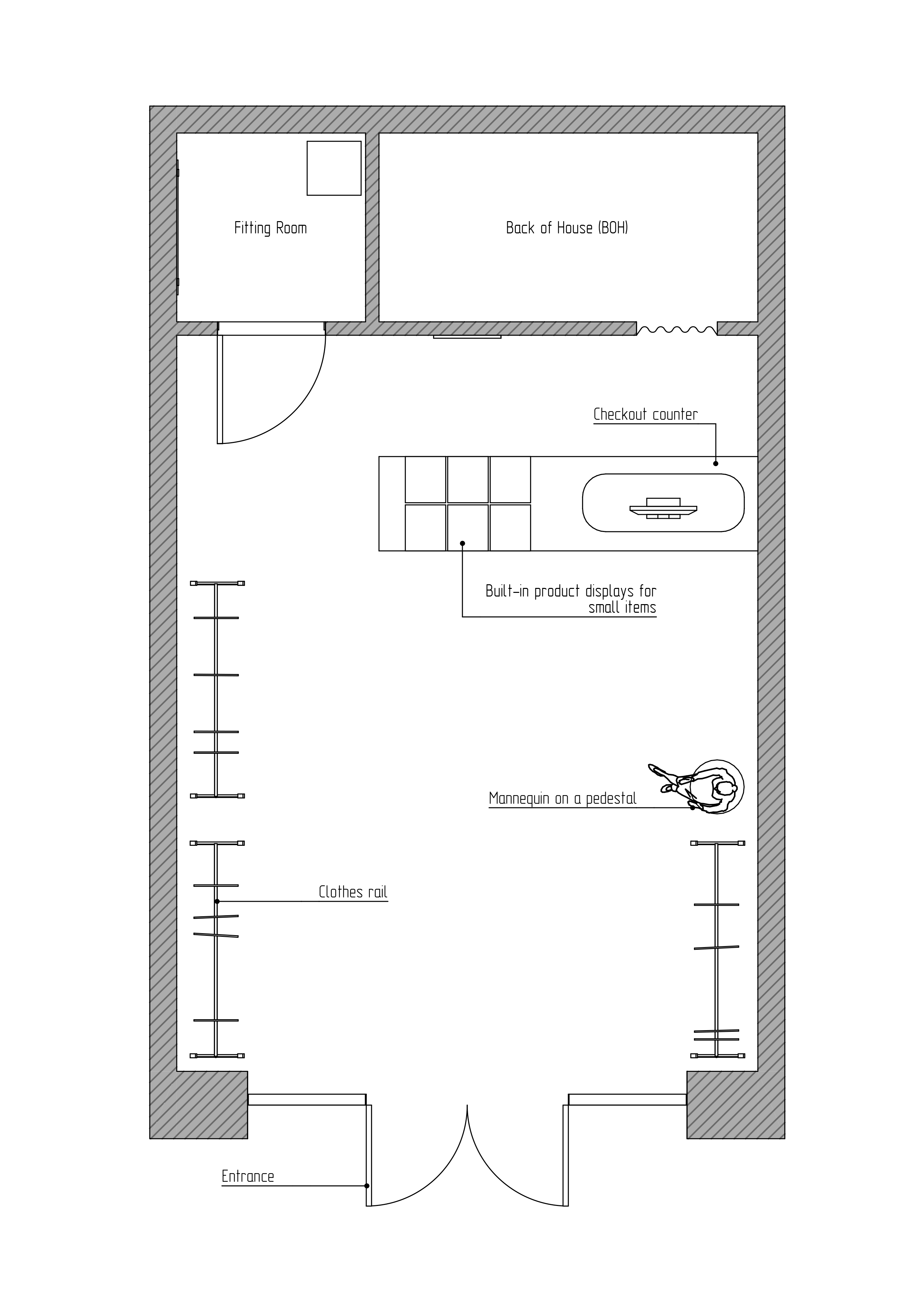
A defining element of the project is the multifunctional cashier counter, where pull-out vitrines for small items and accessories are seamlessly integrated into the structure. Customers can slide open individual compartments, transforming the display into an interactive experience and encouraging closer engagement with the products.
↓ plan
The project demonstrates how a compact retail environment can communicate brand identity through materiality, texture, and spatial clarity — creating an atmosphere of intimacy, comfort, and modern femininity.
The project also reflects Ksyuschenka Bureau’s approach to designing small retail environments where materiality and spatial clarity shape the customer experience.
客服
消息
收藏
下载
最近
















