查看完整案例

收藏

下载

翻译
WORKING DRAWINGS │ ARCHITECTURE
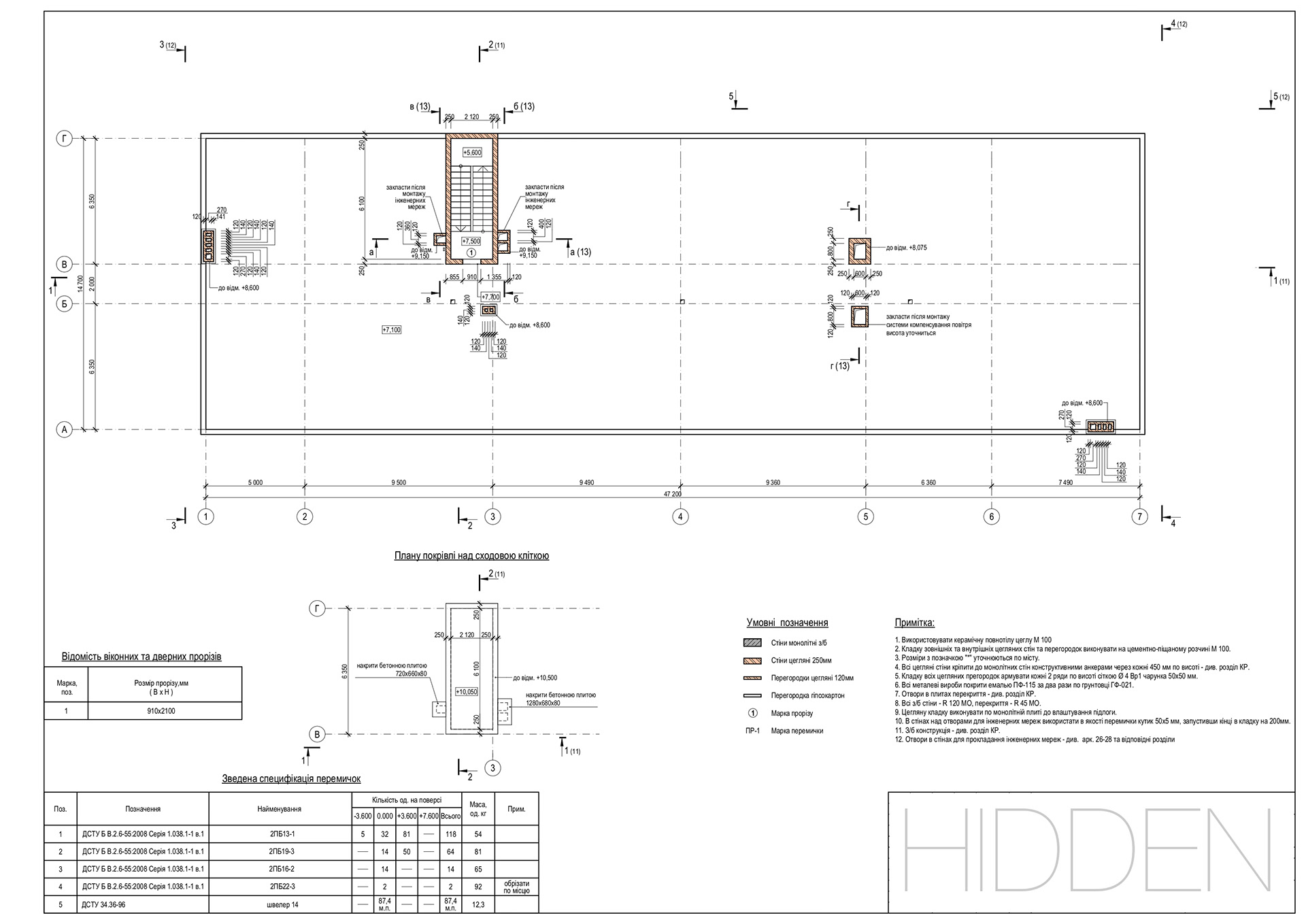
COMMANDANT’S OFFICE & WAREHOUSE
Ukraine │ total area 2500 m2 │ completed
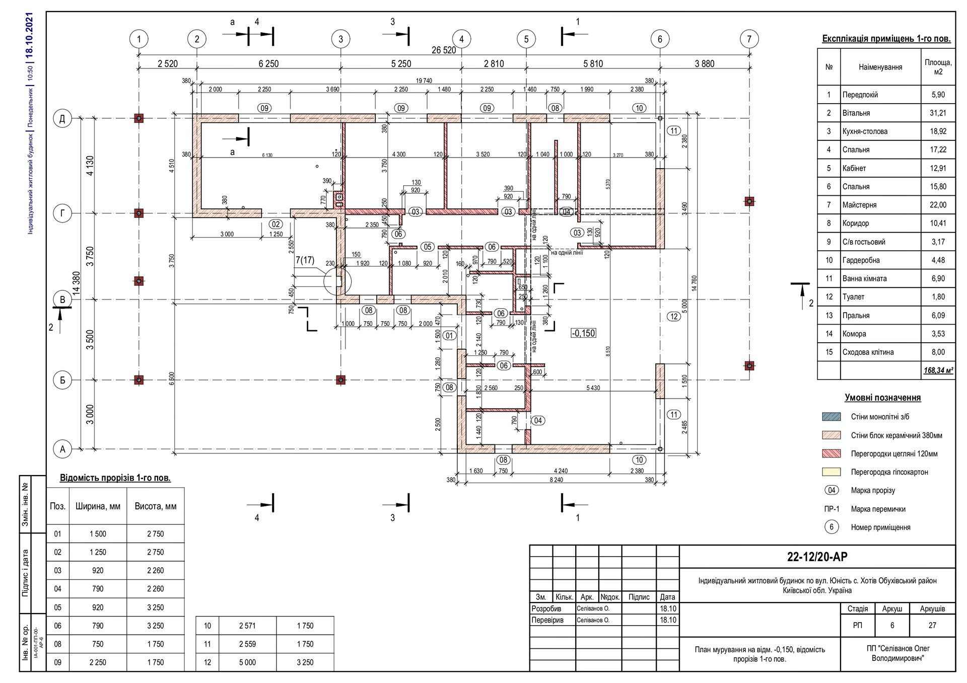
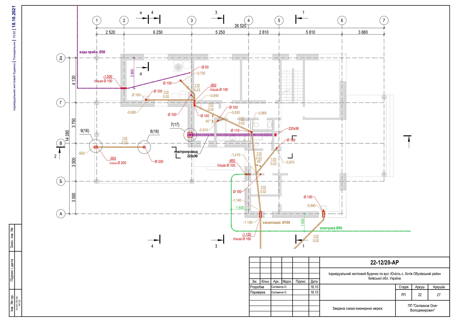
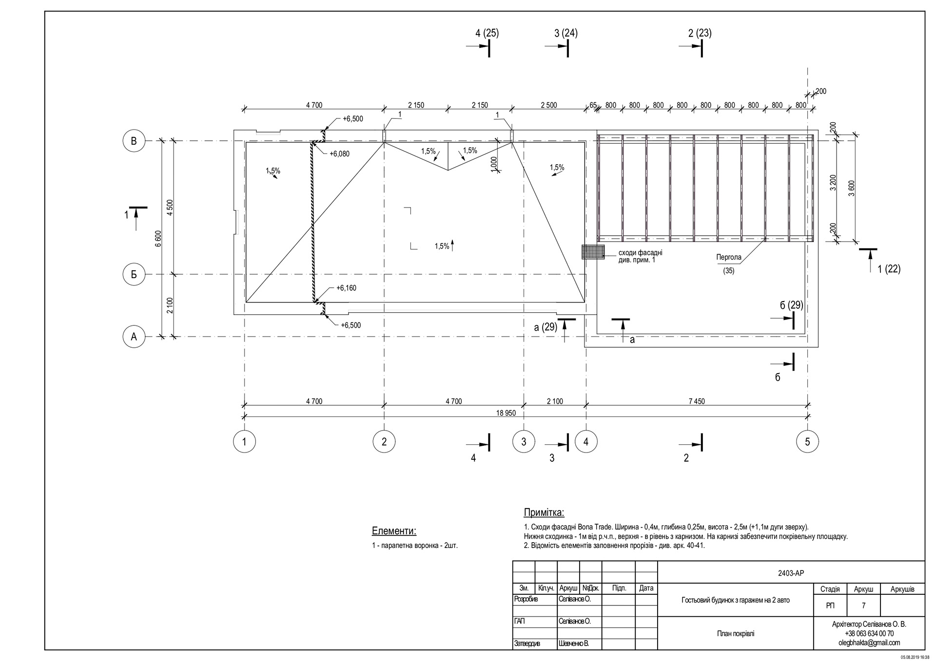
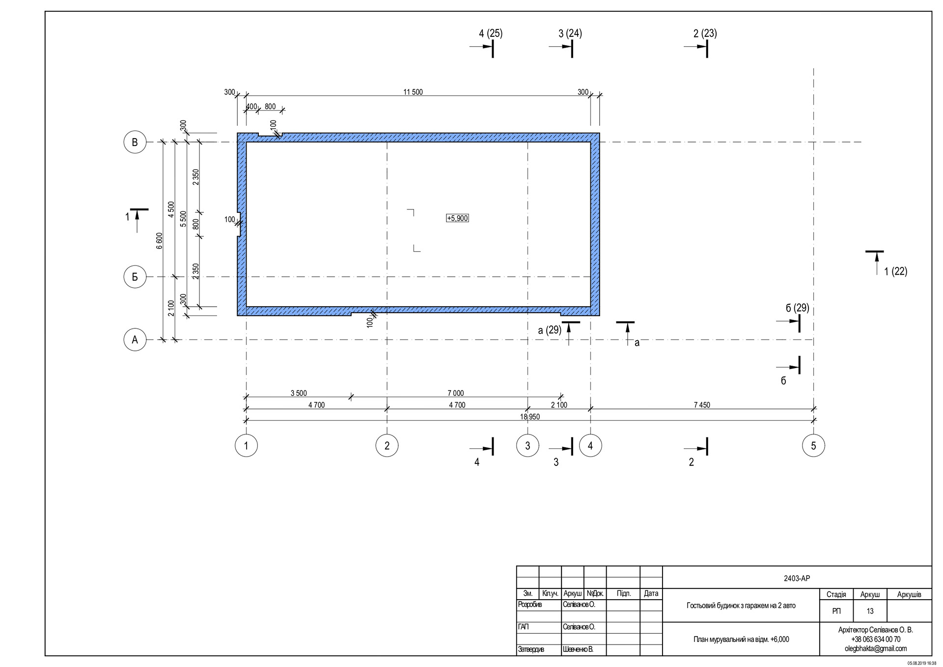
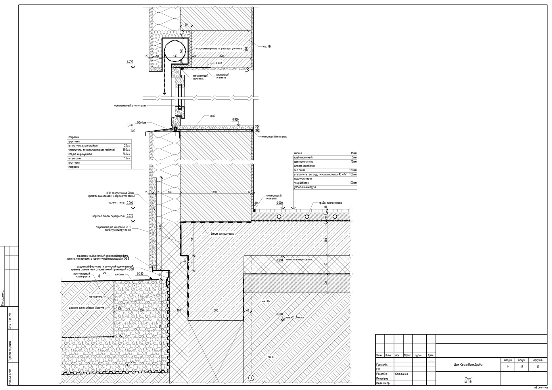
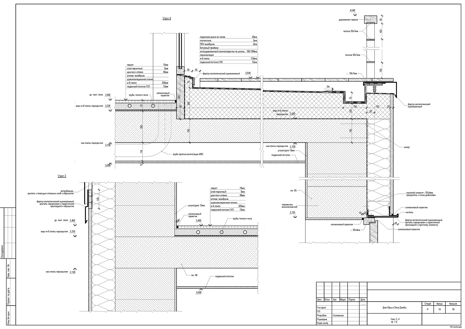
PRIVATE HOUSE
Hotov, Ukraine │ total area 250 m2 │ completed
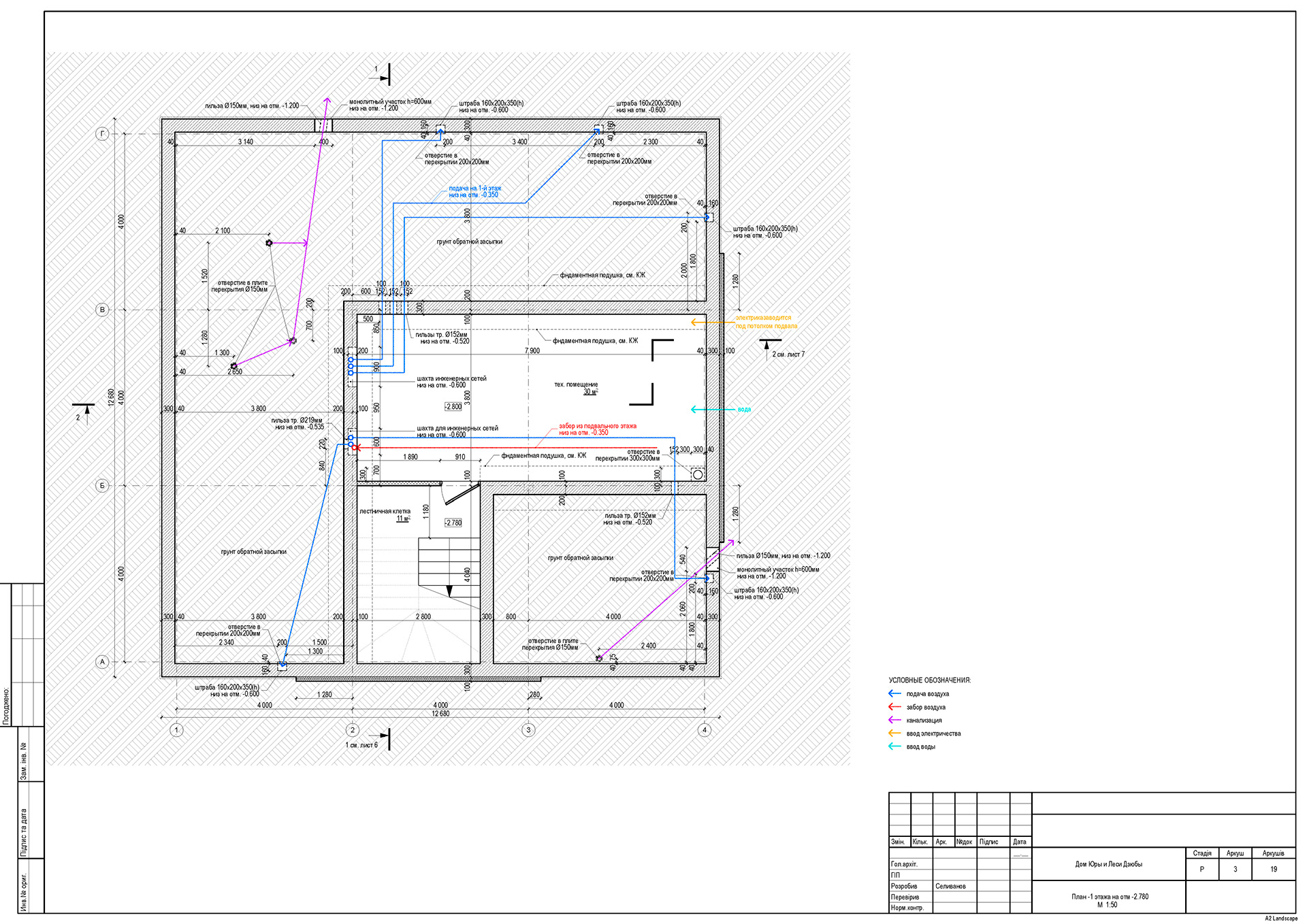
PRIVATE HOUSE
Izmail, Ukraine │ total area 282 m2 │ under construction
PRIVATE HOUSE
Kiew, Ukraine │ total area 215 m2 │ under construction
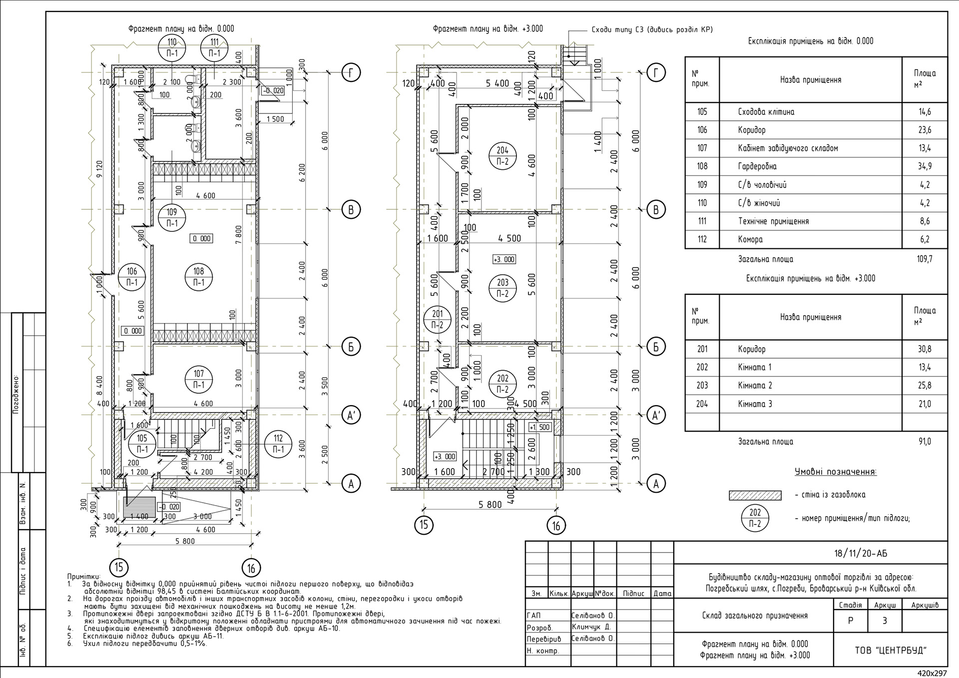
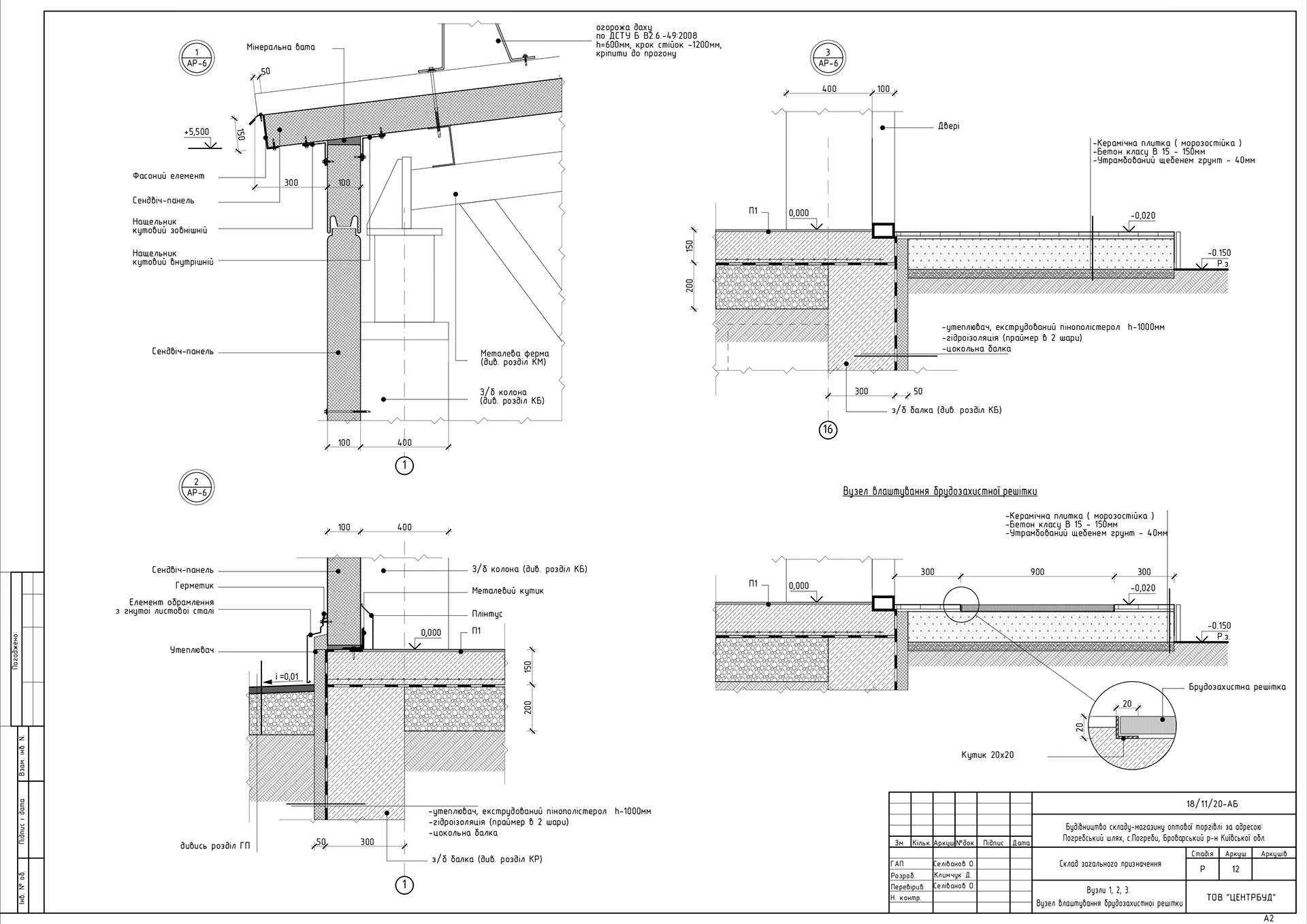
WAREHOUSE
Pogreby, Ukraine │ total area 4500 m2 │ completed
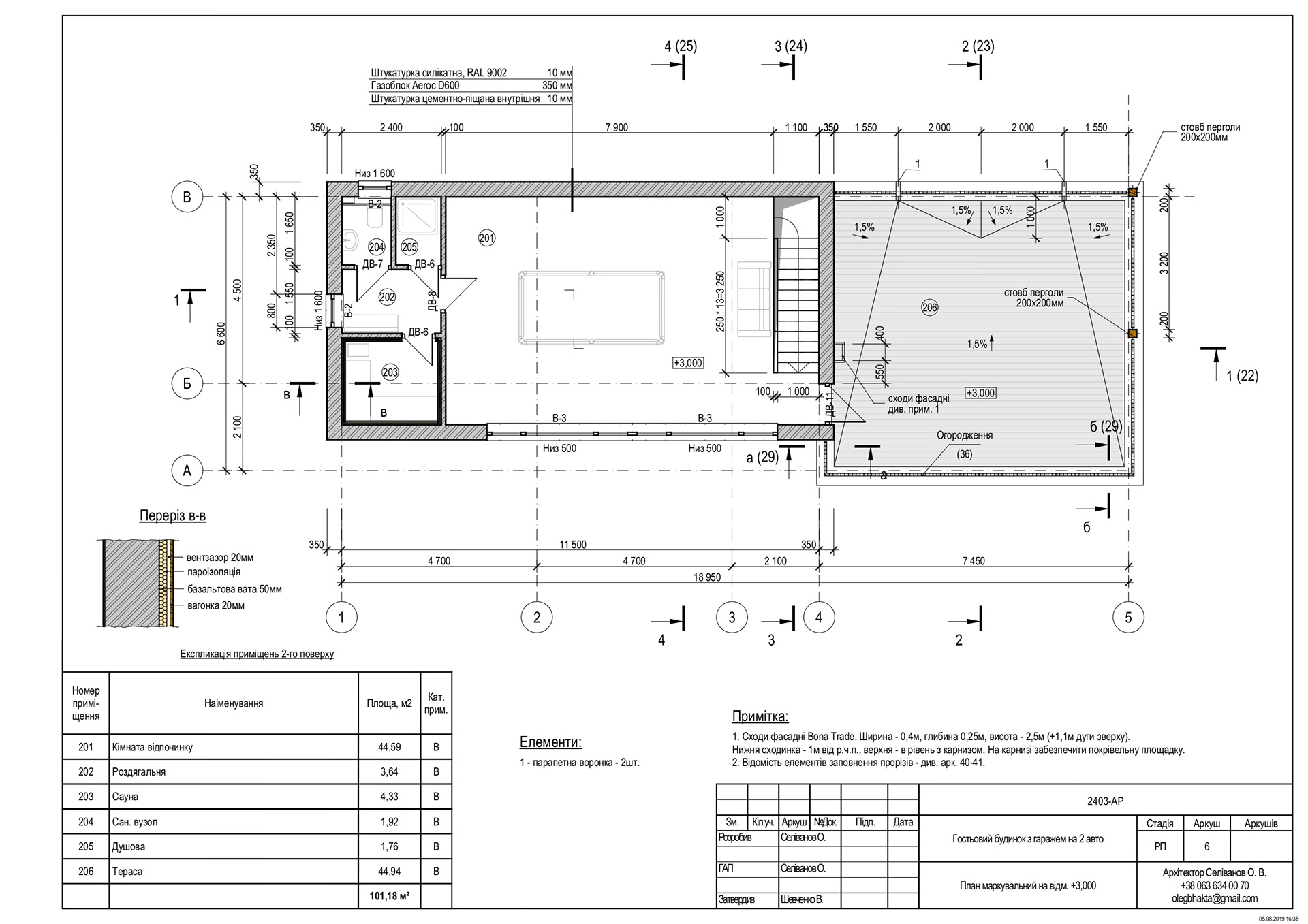
PRIVATE HOUSE
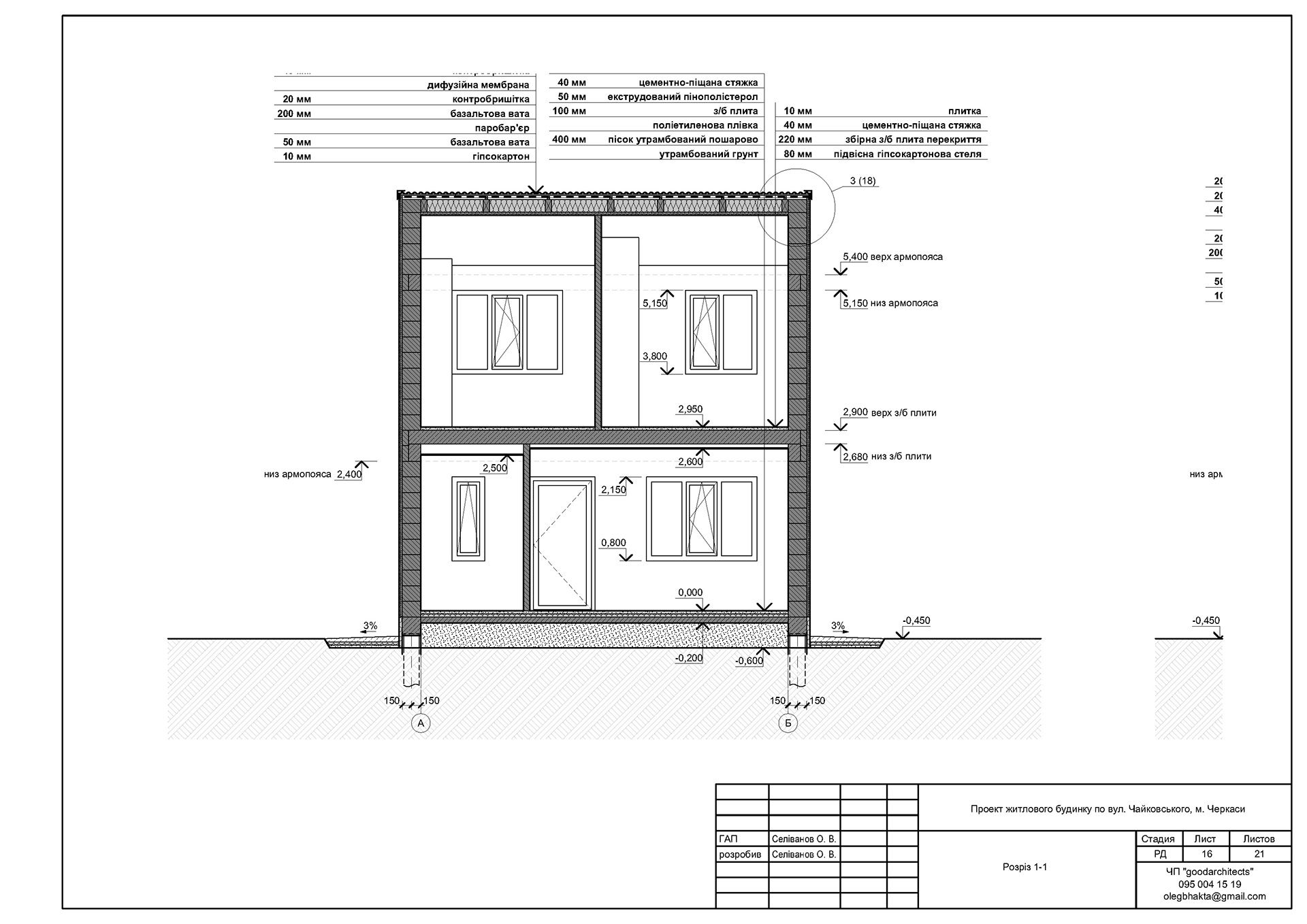
Cherkasy, Ukraine │ total area 300 m2 │ completed
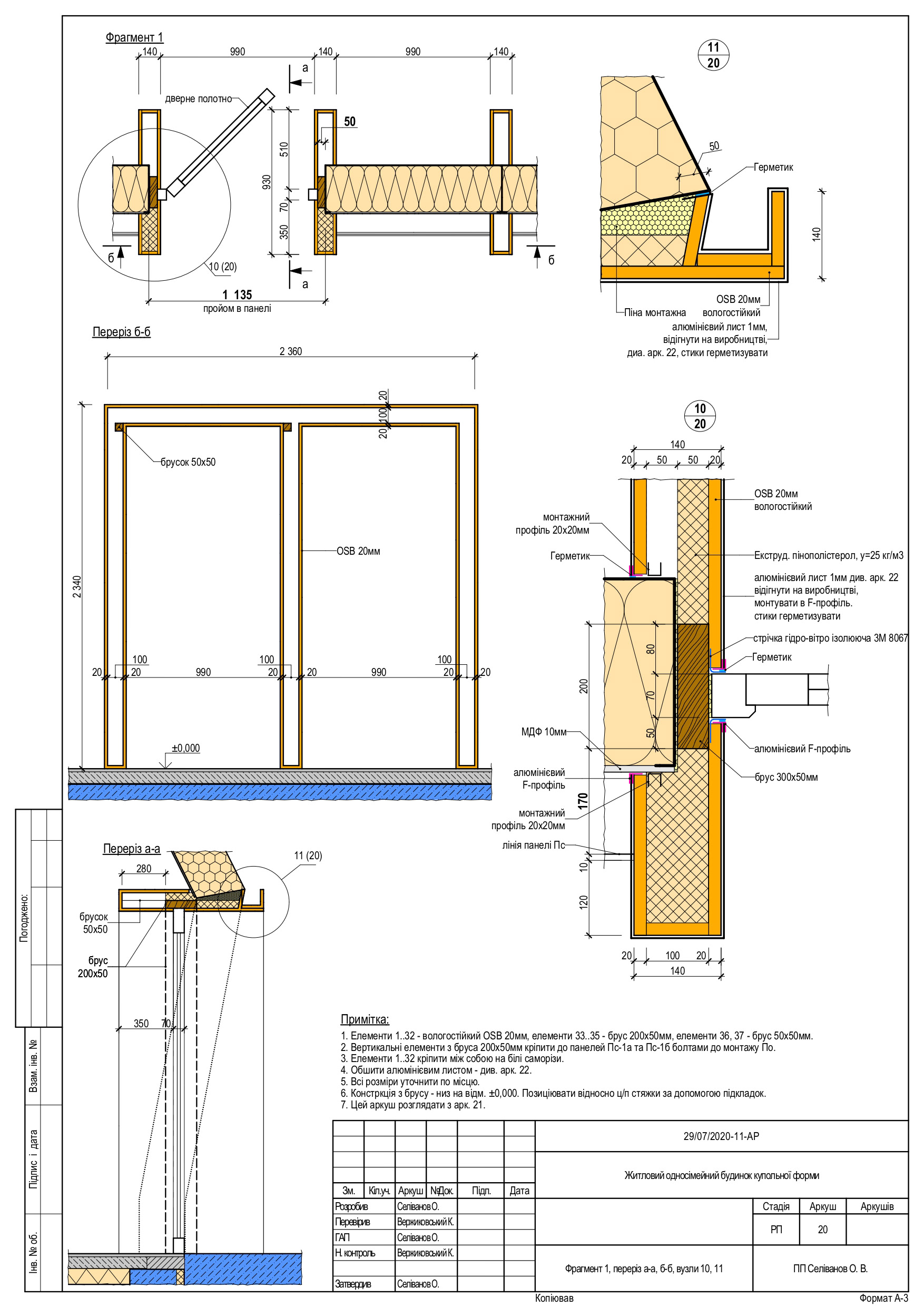
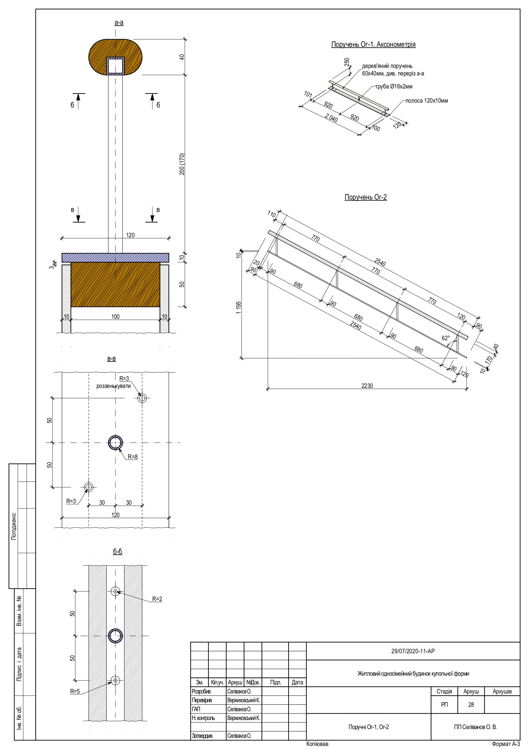
DOME HOUSE
Kiew, Ukraine │ total area 95 m2 │ Execution Design
Selection of drawings only. Protected by PATENT.
TOWN HOUSE
Kiew, Ukraine │ 2017 │ total area 80 m2 │ Execution Design
客服
消息
收藏
下载
最近
















































































































































