查看完整案例

收藏

下载
江山市地处浙、闽、赣三省交汇之地,传统遗存丰厚,文化多元交融,历史文脉悠长。项目落址于城北区,基地西连湿地公园,南接博物馆,北邻居住社区, 东靠市民广场。项目集图书馆、文化馆、青少年馆、剧场于一体,总建筑面积约45000平方米。
场地区位分析 © gad
设计灵感根植于江山古镇民居,从传统聚落空间中提炼其精神内核,并进行当代表达与转译。项目以“院落”与“连廊”组织整体空间秩序,将图书馆、文化馆、青少年馆和剧场四大功能有机聚合,形成既彼此独立、又紧密关联的复合文化建筑群。
周边分析 © gad
建筑生成演绎 © gad
建筑充分向周边城市界面打开,与湿地公园、市民广场、博物馆及周边住区建立多向联系,成为城市空间中可达、可穿越、可停留的公共枢纽。
建筑西南角 摄影:苏圣亮
建筑西北角 摄影:苏圣亮
设计顺应场地肌理,以开放、渗透的姿态,将建筑内部公共空间与城市公园系统双向联通,让自然与城市、人群与文化在此自由流动、彼此交融。
局部鸟瞰 摄影:苏圣亮
“空”与“有”
埏埴以为器,当其无,有器之用。
四座场馆以庭院为内核展开布局,既保持各自清晰的功能属性,又通过便捷的流线实现高效联系。庭院周边合理配置咖啡、餐饮等服务空间,为市民提供更丰富、舒适的使用体验。
轴测图 © gad
空间人流分析 © gad
中心庭院 摄影:苏圣亮
西入口庭院 摄影:苏圣亮
图书馆、文化馆、青少年馆的室内中庭与院落相互衔接、彼此渗透,景观、自然光与公共活动共同进入建筑内部,营造出通透、开放而富有层次的空间氛围。
建筑中庭 摄影:苏圣亮
剧场位于东南侧,毗邻市民广场,设置800座观演空间,成为城市文化活动的 重要承载场所。
室内观众厅 摄影:苏圣亮
项目构建起公共立体游廊体系,串联所有庭院与场馆,使人流在“院”与“馆”、“内”与“外”之间自由转换,形成丰富而连续的空间体验。各场馆也因院与廊的连接而成为一个有机整体,共同构筑复合而生动的文化场所。
图书馆内庭 摄影:苏圣亮
台阶与坡道共同构成开放的立体步行系统,将人们从地面自然引向各层游廊、 平台、屋顶及功能出入口,塑造出开放、半开放、半私密等多层次的空间特质,为市民提供游览观景、停留休憩、交流互动的公共场所。
游廊分析 © gad
中心庭院平台 摄影:苏圣亮
南入口广场的大台阶不仅连接二层大平台,也兼具露天剧场功能,使建筑与城市之间形成更具参与感和展示性的界面。
露天剧场 摄影:苏圣亮
由庭院串联而成的公共空间被赋予不同主题,景观设计为交往聚会、亲子游戏、表演观演等多元活动创造可能,让文化艺术中心真正成为承载日常生活与公共文化的开放场域。
中庭公共空间 摄影:苏圣亮
材料选择上,项目采用江山本地盛产的水泥预制板与瓦片为主要材料,兼具地域特征与当代建构表达,同时具备环保、耐久、低维护成本等优势。
局部材料 摄影:苏圣亮
文化艺术中心以院聚江山,收藏的是文脉传承与自然意趣;以廊连古今,联结的是城市肌理与生活烟火。
“筑—院—廊”的共生关系赋予建筑更深层次的空间意义,也持续激发城市文化活力,使其成为市民真正喜爱的“城市客厅”。
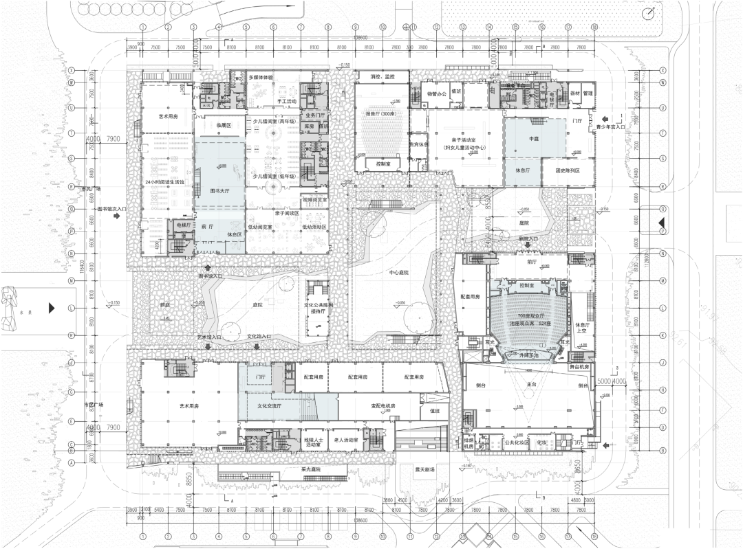
技术图纸
首层平面图 © gad
二层平面图 © gad
三层平面图 © gad
屋顶平面图 © gad
立面图 © gad
剖透图 © gad
客服
消息
收藏
下载
最近






























