查看完整案例

收藏

下载

翻译
Architects:C+S Architects
Area:3380m²
Year:2024
Photographs:Alessandra Bello
Site supervision:Studio Capitanio Architetti
Structures:Myallonier Ingegneria srl
MEP:MCZ ingegneria srl
Acoustics:Andrea Breviario
Contractor:Impresa Perico
Category:Schools,Day Care
Head Designers And Design Guardianship:Carlo Cappai, Maria Alessandra Segantini, C+S ARCHITECTS
Client:Municipality of Alzano Lombardo
Awards:Taipei Design Award 2025, Gold, Architecture MasterPrize 2025, Winner, Paris Design Award 2025, Winner, IDAwards 2025, Winner, WGA Design Awards 2025, Winner, GPDP Design Awards 2025, Winner, Built Design Awards 2025, Winner, Taiwan Design Award 2025, A+ Design Awards 2025, Special Mention, Createurs Design Award 2025, Nominee
Health And Safety:Studio Capitanio Architetti
Local Coordination:Studio Capitanio Architetti
Geology:CASTALDIA
City:Alzano Lombardo
Country:Italy
Text description provided by the architects. For over three decades, C+S Architects has imagined schools as the piazzas of small towns and villages: civic spaces, open beyond school hours, where education and community life meet. This vision, which helped rewrite the policies schools are designed in Italy, belongs to a broader idea the practice calls Future Heritage — an architecture where memory, ecology, and public life are held together and carried forward, with the school planted as a civic seed from which community can grow.
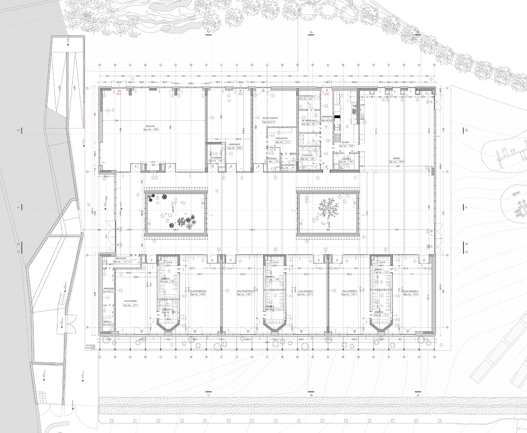
This vision finds a precise expression in Noah's Ark, the new nursery school completed by C+S Architects in the historic park of Villa Paglia in Alzano Lombardo, near Bergamo. Designed as a transparent and flexible learning environment, the 3,380-square-metre building rethinks the nursery as a civic and cultural space: open, inclusive, and deeply connected to both landscape and community. "We conceived this school building with the idea of creating a space that could be used by the entire community at different times," says Maria Alessandra Segantini. "This school represents an innovative approach to designing educational spaces — an act of breaking down barriers that, through transparency and intervisibility, fosters socialisation and creativity among children, teachers, families, and the wider community."
Developed over five years on the protected heritage site of Villa Paglia, the project brings together architectural innovation, environmental performance, and a strong sense of place. Clad in white glass mosaic and articulated by bronze-framed windows and a sequence of roof sheds, the building draws on the industrial memory of Alzano Lombardo while establishing a delicate dialogue with the historic park. Its white colour recalls the famous "Bianco Alzano", a white concrete once produced locally. Here, however, the material is reinterpreted through glass mosaic: a textured surface that catches and reverberates light, making the façade shimmer and enter into dialogue with the surrounding landscape.
The project also transforms elements of the local territory into architecture. A red-pigmented concrete retaining wall marks the entrance, recalling the terraced retaining walls of the Val Seriana landscape and becoming both infrastructure and play space. Engraved into this wall are animal figures inspired by Enzo Mari's 1957 puzzle, turning the approach to the school into a playful and memorable spatial experience.
"For me, the memory of Enzo Mari's puzzle goes back to childhood," says Maria Alessandra Segantini. "On Sundays, my grandmother would scatter the wooden animals across the table in front of the fireplace, and my sister and I would reconstruct them together. I wanted this school to hold something of that warmth: the feeling of being together, of learning through play, of a world where children, animals and nature belong to one another."
That memory becomes part of the building's identity. The engraved animals reappear in the courtyards and garden in the form of soft anti-shock surfaces, as well as inside the classrooms as didactic tools specially designed by the practice, helping define Noah's Ark as a contemporary educational landscape where imagination, architecture, and nature are closely intertwined.
Although developed on a single level, the school expands vertically through a carefully shaped section that brings daylight deep into the interior through large windows, internal courtyards, and shed roofs, echoing the area's industrial past while translating it into a space for learning. Materials were selected for warmth, durability, and acoustic comfort, with wood serving as the main tactile interface for children, while generous common spaces support flexible teaching methods and a broad range of community uses. Thanks to the use of alternative energy systems, the building achieves high environmental performance and is the first public building in Alzano Lombardo to be classified as NZEB.
More than a nursery school, Noah's Ark embodies C+S's broader vision: architecture not as an isolated object, but as a durable setting for belonging, where memory is transformed into a shared civic resource. As Maria Alessandra Segantini concludes: "We are honoured to have worked with the Alzano community, carefully preserving its precious historical and landscape resources and returning them to the citizens through the design of a school — or, more broadly, a new public space rooted in the DNA of the place."
Project gallery
客服
消息
收藏
下载
最近





































