查看完整案例

收藏

下载
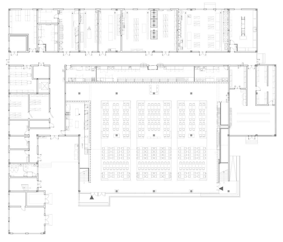
之前老一食堂的采光天窗,不仅易渗漏,造型也略显呆板。这次改造,我们结合原始设计意图、现有结构钢架和新规范的要求,将其升级为集防水防渗、消防排烟、自然采光于一体的多功能天窗,巧妙融合了采光、通风与防水这三个看似矛盾的需求。既从根源上解决了屋面漏的顽疾,同时又通过弧形铝板折射,引导自然光深入室内,彻底解决原有空间采光差、与使用功能不匹配的问题,整个空间更明亮通透,也大幅降低了日间照明能耗。
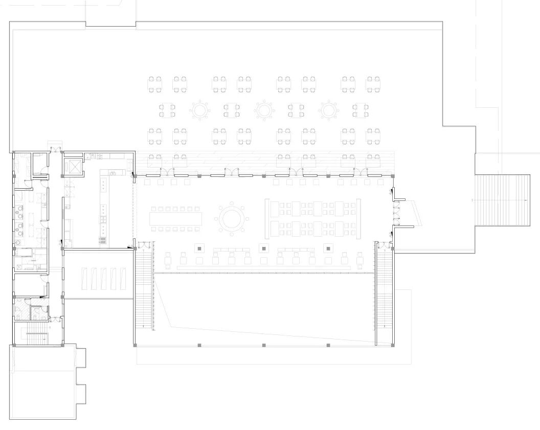
我们以通透的玻璃隔断做柔性空间划分,引入四季主题,用温润的木纹材质铺设墙面与吊楣,搭配统一和谐的色调和软装设计,既消解了大空间的空旷冰冷感,也优化了空调送风的均匀度,彻底告别就餐区冷热不均的糟糕体验。同时,通过对桌椅布局与间距的优化,既保障了高峰时段的通行效率,也拉近了师生间的距离,营造出放松亲和、温暖舒适的就餐氛围。
食堂最动人的装扮,是人间烟火气。我们将四季主题具体化为24节气符号,通过精心的餐线、招贴、灯光和明厨设计的动态融合呈现,让新鲜出锅的热乎饭菜一目了然,瞬间唤醒味蕾期待,拉满就餐的愉悦感。充满动感又不失于噪杂的体验升级,不仅能满足基础就餐需求,更是日常交流、课间休憩的好去处,成为能留存校园温暖记忆的暖心空间。
从“暖胃”到“暖心”,本次玉泉一食堂的改造,与紫金港校区学生街、玉泉校区老二食堂、怡膳堂,华家池校区一食堂,紫金港校区东教供餐点,海宁校区西餐厅一脉相承,秉持“从问题出发、从需求出发、从运营出发”的原则,“由问题派生形式、由形式完成功能、由运营推定逻辑”,在实打实解决安全与功能层面问题的前提下,结合师生日常需求和校园文化营造,打造高品质生活空间,让食堂从单纯的就餐场所,升级为校园文化地标,为校园后勤服务的高质量发展提供了坚实支撑。
项目名称 |
浙江大学玉泉校区一食堂修缮项目
设计单位 |
浙江大学建筑设计研究院(UAD)
项目类型 |
改造建筑
项目地址 |
浙江 杭州
建筑面积 |
3600㎡
设计时间 |
2025-2026
建筑设计 |
陆激、吴启星、冯余萍、 林上亮、魏超、胡笳天
加固设计 |
林德建、沈威
给排水设计丨
邵煜然
电气设计 |
冯百乐 郑文君
智能化设计 |
陈佳、孙敏超
暖通设计 |
王亚林
摄影丨
陈军
客服
消息
收藏
下载
最近








