查看完整案例

收藏

下载
久在樊笼里,复得返自然
| 项目图纸
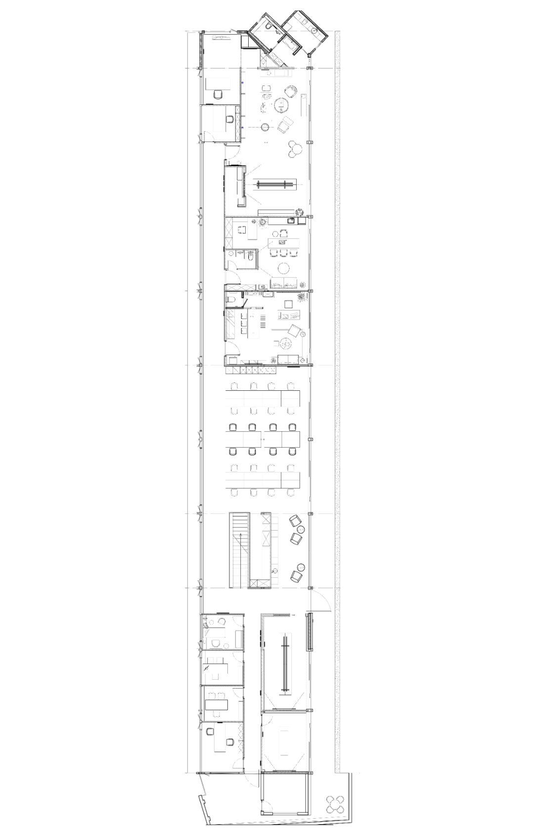
1F、2F平面图
我的建筑跟随着大自然的原则,
就像她已经在这里表现的那样。
——弗兰克·劳埃德·赖特
对自然的向往,一直深植于东方人的血脉中。它从未消逝,反而在日复一日的规整与效率中,愈发清晰而迫切。
离开格式化的楼宇,将脚步落于山野之间。建筑不再是自然的对峙者,它褪去客体的外衣,成为山林的延伸,以及生活美学的具体形状。
01
用材料回应场地
“用基础的材料回应自然的场所,用质朴的空间来打动人。”
△©谢帝谣
福州软件园坐落在大腹山、五凤山与科蹄山之间,山中林木密布,建筑便藏于这深浅交织的绿意中。
建筑依山而建,与山体共同围合出一片山谷——建筑成为进入山谷的路径之一。从外部进入场地,建筑如山脚处的城楼;车棚被组织为类似“长亭”的线性序列,引导行进方向,增强进入过程的节奏感与仪式感。
剥离了多余的装饰,用克制的手法来展开当下的叙事。金属与混凝土奠定了空间基调,前者精确,后者沉厚,共同构成了现代空间的骨骼与肌理;这是一种对现代主义的致敬,让空间始终保持着与时代对话的张力。
空间组织上,强调水平方向的贯通与流动性。垂直方向上下两层通过室内楼梯连接,不仅作为空间转换的节点,也如雕塑般存在;视线在行进中先被压缩,而后到释放,最终在豁然开朗处到达情感的高峰。
△©林开新
02
交互的场域
从物理联结到灵感生发
落地玻璃消融室内与公园的界线,开放性的视野将绿意引入室内,使人很快融入“城内”所打造的乌托邦。
公共区域置于视野最佳位置,与自然景观直接对话;水吧台功能单元被整合于公区一侧,支持多种交流与使用场景。
公园园林采用缓坡草坪与低矮植被,与建筑二层出入口平缓衔接,形成进入、停留的过渡区域,人与自然在此共处。
屋檐延续至室外,形成遮蔽与光影变化的边界,回应不同天气条件下的使用需求,在视觉上延伸建筑的体量感,同时引发情感上共鸣。
设计通过对地形、材料、空间界面与功能布局的控制,尝试建立一种与环境共生、与使用者行为互动的空间体系。
03
空间与人被自然滋润
工作即
生活
生活比现实主义跑得还快,
可是浪漫主义永远领先于生活。
——王尔德
独立办公室分布于空间两侧,内部根据使用者的行为习惯做出不同的组织——品茶、阅读、办公、会客等个性化生活功能区块……办公与生活,演绎出一种自在的韵律。
不追求严格的功能分区,而是通过空间节点的布置与界面的处理,使办公与日常活动在同一场所中交替发生,形成多义、松散的使用状态。
于是,二者的界限日渐模糊,这不仅回应了当代人对于办公的健康需求,更成为对生活态度最为深刻的诠释。
项目信息
项目名称:大成设计办公室
项目地点:福建,福州
项目面积:1000㎡
设计时间:2025年 1月
完工时间:2025年 7月
设计单位:DCD大成设计
主持设计:林开新
协助设计:韩艳香
项目摄影:形在摄影 贺川
林开新
DCD大成设计 创始人
摒弃浮躁的形式主义,将“观乎人文,化于 自然”的和居美学理念淋漓尽致地运用到项目实践中,令空间回归本质,直指本心同时结合新材料、新技术赋予空间鲜明的个性和自然、人文的艺术气。
客服
消息
收藏
下载
最近





























