查看完整案例

收藏

下载
秦岭纵横华夏腹地,和合南北,泽被天下,既是南北地理分界,更是滋养万物的中央水塔与生态屏障。坐落于陕西商洛的秦岭博物馆,作为国内首座全景展现秦岭自然生态与人文历史的综合性展馆,以建筑为媒对话天地山河。
Spanning China’s heartland, the Qinling Mountains bridge north and south, serving as both a geographical divide and a vital ecological sanctuary—the nation’s lifeline of water and biodiversity. In Shangluo, Shaanxi, the Qinling Museum emerges as China’s first comprehensive space dedicated to the range’s natural wonders and cultural legacy, its architecture speaking directly to the surrounding landscape.
▼西侧鸟瞰,West Birdview ©赵奕龙
▼顶视图,Top View ©赵奕龙
▼东南侧鸟瞰,Southeast Birdview ©赵奕龙
▼西北侧鸟瞰,Northwest Birdview ©赵奕龙
▼东北侧鸟瞰,Northeast Birdview ©赵奕龙
▼西侧鸟瞰,West Birdview ©赵奕龙
▼东侧鸟瞰,East Birdview ©赵奕龙
▼东侧鸟瞰,East Birdview – Vertical ©赵奕龙
▼西侧鸟瞰,West Birdview – Vertical ©赵奕龙
织补山形—-设计灵感源自商洛博物馆镇馆之宝——夏代玉牙璋。将文创中心、非遗文化展区与核心主馆三大功能,整合为完整的建筑体量,取玉牙璋典雅形态精准嵌入山体凹陷处,织补残缺山形轮廓,同步修复周边自然植被。入口大厅设置于半山腰高度,有效缩小了山顶建筑体量,显著降低游客登高垂直落差,令攀登过程更为轻松从容。
Healing the Mountain’s Silhouette—-Drawing inspiration from Shangluo Museum’s prized artifact—a ceremonial jade blade (ya zhang) of the Xia Dynasty—the design unites three functions (cultural innovation center, heritage gallery, and main exhibition halls) into a single fluid structure. Like the ancient blade’s elegant form, the building nestles into the mountainside’s natural curve, mending its interrupted contours while revitalizing native vegetation. Set midway up the slope, the entrance lobby reduces the summit’s visual weight and eases the climb for visitors.
▼西侧鸟瞰,West Birdview – Vertical ©赵奕龙
▼西侧鸟瞰,West Birdview 2 ©赵奕龙
▼南侧鸟瞰,South Birdview ©赵奕龙
▼南广场人视,South Square Eye-level View ©赵奕龙
▼西南侧人视,Southwest Eye-level View ©赵奕龙
▼西侧人视,West Eye-level View ©赵奕龙
▼东侧人视,East Eye-level View ©赵奕龙
▼南侧人视,South Eye-level View ©杨江峰
▼商鞅雕像局部,Shang Yang Statue Partial ©杨江峰
▼上山通道,Uphill Path ©杨江峰
▼东侧山顶局部,East Hilltop Partial ©杨江峰
▼博物馆入口通道,Museum Entrance Path ©杨江峰
▼东侧山顶局部,East Hilltop Partial ©杨江峰
延续山水—-建筑曲线精妙呼应秦岭山脊与丹江水系的自然脉络。博物馆仿佛从洛水河畔自然生长而出,蜿蜒舒展依偎山麓,以谦逊低伏的姿态融入苍翠地景。枕山襟水的连续空间序列,使人居建筑与自然山水浑然一体,再现传统天人合一的哲学意境。
▼各楼层轴测图,Axonometric of Each Floor ©中南建筑设计院
A Natural Extension of the Landscape—-The museum’s sweeping curves mirror the Qinling ridges and the Dan River’s flow, appearing to rise organically from the Luo River’s edge. It hugs the foothills with quiet grace, blending seamlessly into the emerald terrain. Spaces unfold like a scroll—anchored by peaks, embraced by waters—blurring boundaries between human craft and nature, embodying the ancient ideal of harmony with the cosmos.
▼西侧夜景鸟瞰,West Night View Birdview ©赵奕龙
▼西南侧夜景鸟瞰,Southwest Night View Birdview ©赵奕龙
▼南广场夜景人视,South Square Night Eye-level View ©赵奕龙
▼西南侧夜景人视,Southwest Night Eye-level View ©赵奕龙
▼西侧夜景人视,West Night Eye-level View ©赵奕龙
与山共势—-中轴空间撷取馆藏秦代商字瓦当的“商”字精髓,形成层层递进的仪式序列。步移景异的设计自然引导游客拾级而上,两侧高耸的实墙围合出静谧深沉的前导空间,完成从城市喧嚣到宁静观展的情绪转换。入口处四十米通高玻璃大厅取形甲骨文“商”字笔画,中央酒器艺术装置内置电梯,如时空隧道贯通天地,巧妙化解最后一段高差,将游客引至山顶核心陈列区。
Moving with the Mountain’s Pulse—-At its heart, the central axis takes cues from a Qin Dynasty eaves tile (wa dang) etched with the character “商” (Shang). Visitors ascend through a choreographed sequence of spaces: soaring walls frame a hushed prelude, transitioning from urban clamor to contemplative calm. The entrance features a 40-meter glass atrium shaped like the oracle-bone script “商,” where an elevator encased in a bronze wine vessel ascends like a “time corridor”—elegantly conquering the final height to deliver guests to the summit’s exhibits.
▼中轴线东向人视,Central Axis East Eye-level View – Vertical ©赵奕龙
▼中轴线东向人视,Central Axis East Eye-level View ©赵奕龙
▼大屋面人视,Large Roof Eye-level View 2 ©赵奕龙
▼文创局部人视,Cultural and Creative Partial Eye-level View ©赵奕龙
▼中轴线西向人视,Central Axis West Eye-level View ©赵奕龙
▼博物馆西大厅室内,Museum West Hall Interior ©赵奕龙
▼酒樽大厅,Wine Vessel Hall ©杨江峰
▼博物馆西大厅室内,Museum West Hall Interior ©赵奕龙
▼博物馆东大厅室内,Museum East Hall Interior ©赵奕龙
▼博物馆酒樽天桥,Museum Wine Vessel Bridge ©赵奕龙
与城共享—-屋顶作为城市广场的自然延伸,全天候向公众开放。日间是市民登山健行,凭栏远眺的观景台,入夜后层叠阶梯化为露天剧场坐席。南侧公园汇聚鲜活市井气息,晨昏遛弯的长者悠然踱步,夏日戏水的孩童欢笑追逐,即兴弹唱的街头艺人,琳琅满目的特色摊贩,树影婆娑中交织出温暖生动的城市画卷,赋予建筑生生不息的场所精神。
A Living Part of the City—-The rooftop extends the city as a public square open day and night. By day, it’s a lookout for hikers; by dusk, tiered steps become an open-air theater. To the south, the park thrums with life: elders stroll at twilight, children splash in streams, buskers fill the air with music, and vibrant stalls spill beneath rustling trees. Here, the architecture breathes with the city’s enduring spirit—a living canvas of shared moments.
▼观景台半鸟瞰,Observation Deck Half Birdview ©赵奕龙
▼中轴线东向鸟瞰,Central Axis East Birdview ©赵奕龙
▼西侧半鸟瞰,West Half Birdview ©赵奕龙
▼局部鸟瞰,Partial Birdview ©赵奕龙
▼大屋面,Large Roof ©杨江峰
▼材料细节,Material Detail ©赵奕龙
▼总平面图,Master Plan ©中南建筑设计院
▼地下一层平面图,Underground Floor Plan ©中南建筑设计院
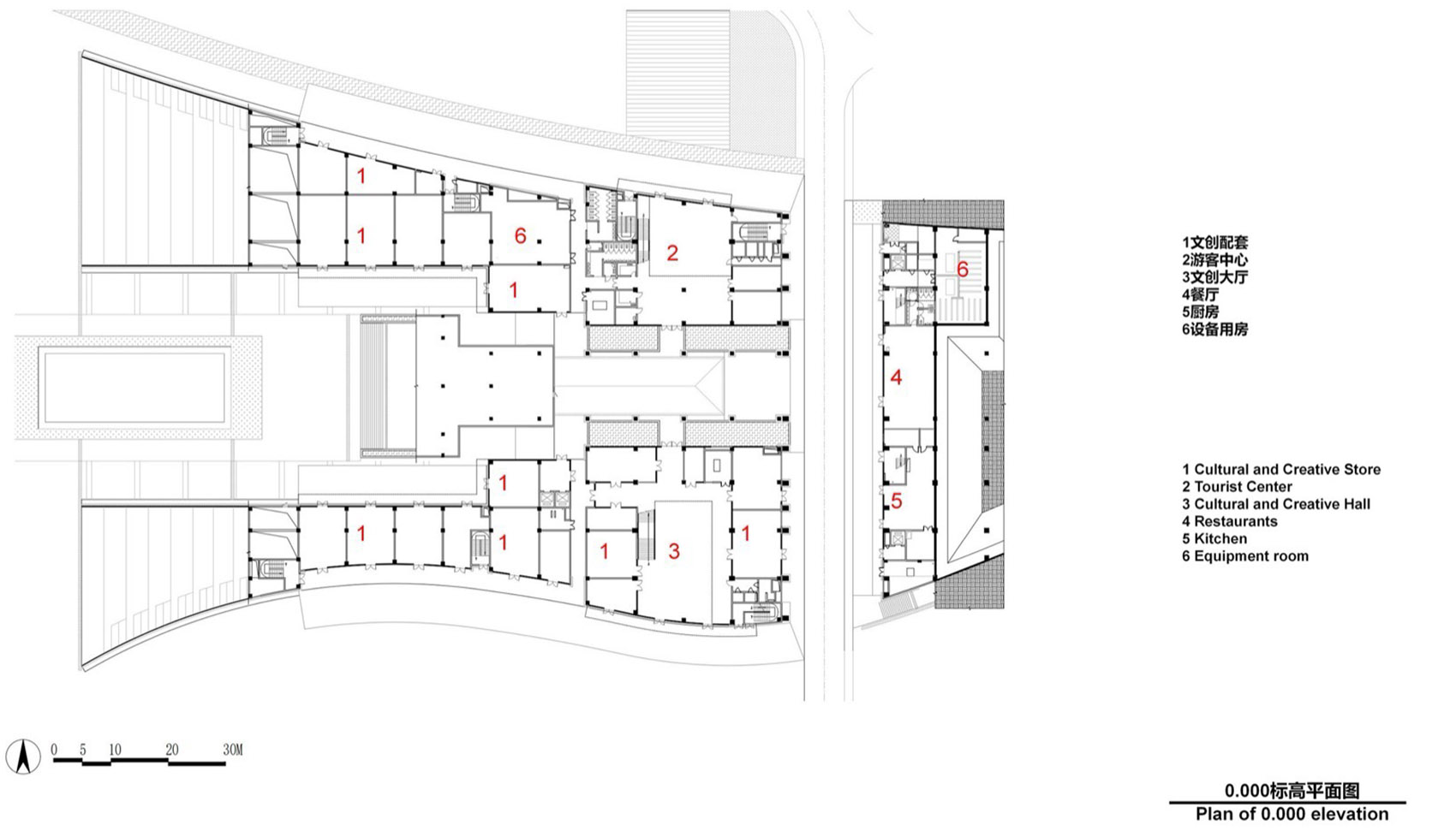
▼0.000标高平面图,Plan of 0.000 Elevation ©中南建筑设计院
▼6.000标高平面图,Plan of 6.000 Elevation ©中南建筑设计院
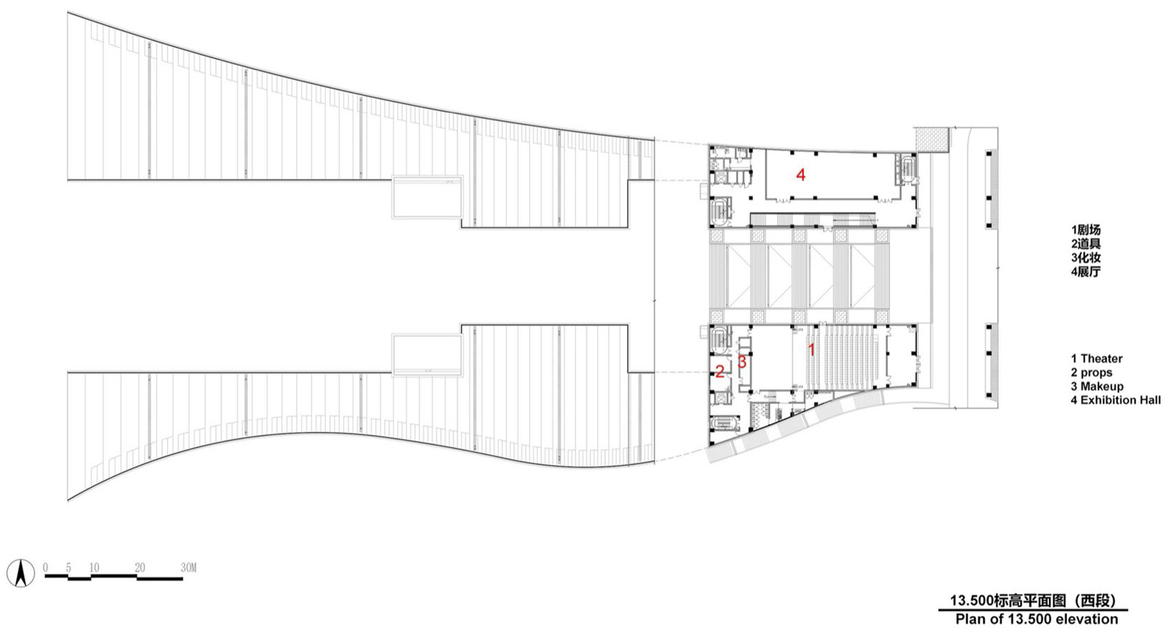
▼13.500标高平面图(西段),Plan of 13.500 Elevation (West Section) ©中南建筑设计院
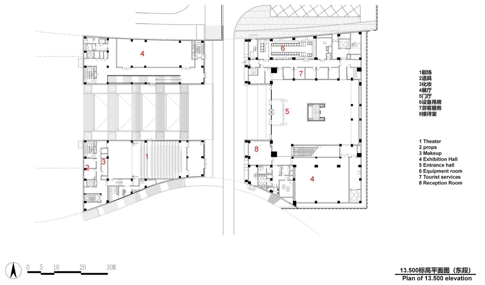
▼13.500标高平面图(东段),Plan of 13.500 Elevation (East Section) ©中南建筑设计院
▼21.000标高平面图,Plan of 21.000 Elevation ©中南建筑设计院
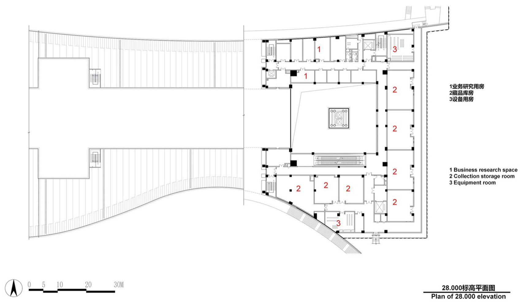
▼28.000标高平面图,Plan of 28.000 Elevation ©中南建筑设计院
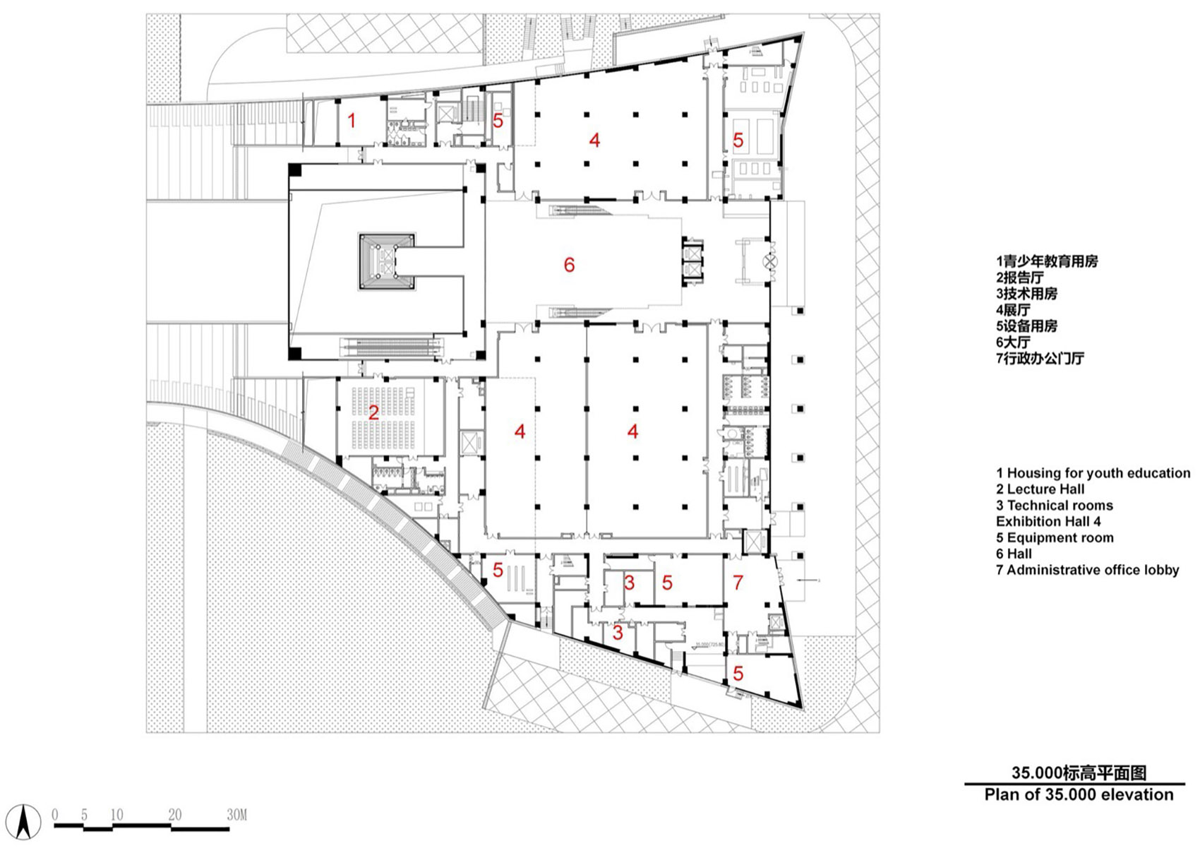
▼35.000标高平面图,Plan of 35.000 Elevation ©中南建筑设计院
▼42.500标高平面图,Plan of 42.500 Elevation ©中南建筑设计院
▼48.500标高平面图,Plan of 48.500 Elevation ©中南建筑设计院
▼54.500标高平面图,Plan of 54.500 Elevation ©中南建筑设计院
▼立面图&剖面图,Elevation &Section©中南建筑设计院
▼立面图,Elevation ©中南建筑设计院
项目名称:秦岭博物馆
项目类型:文化建筑
设计方:中南建筑设计院股份有限公司
项目设计:2022
完成年份:2025
设计团队:主创设计师:程一多、杨江峰
建筑:胡专专、李晓敏、柯江南、陈颖、万青、何奇琦、但娜、孙飞、李雯、李创、王婵、卢谡
结构:呼峰、侯国求、冷闹、严淑敏、李诚明、王亚东、甘恬
给排水:洪瑛、黄景会、廖宇凡
暖通:张银安、宋涛、李环环
电气:贾伟、彭玲、吴虹剑
经济:方钢、罗淑兵、王传超
支护:陈义平、孔莹
景观:刘菁、吴越
内装:李伟、余斯达
幕墙:王书华、柳春
人防:张静、刘旭
泛光:安诗诗
BIM咨询:王伟
项目地址:陕西省商洛市
建筑面积:43788㎡
摄影版权:赵奕龙
合作方:施工方陕西建工第一建设集团有限公司
客户:商洛市文化和旅游局
材料:石材、玻璃、亚克力
Project name: Qinling Museum
Project type: Cultural Architecture
Design: Central - South Architectural Design Institute Co., Ltd
Design year:2022
Completion Year:2025
Leader designer & Team: Principal Designers: Cheng Yiduo, Yang Jiangfeng
Architecture: Hu Zhuanzhuan,Li Xiaomin, Ke Jiangnan, Chen Ying, Wan Qing, He Qiqi, Dan Na, Sun Fei, Li Wen, Li Chuang, Wang Chan, Lu Su
Structure: Hu Feng, Hou Guoqiu, Leng Nao, Yan Shumin, Li Chengming, Wang Yadong, Gan Tian
Plumbing: Hong Ying, Huang Jinghui, Liao Yufan
HVAC: Zhang Yin’an, Song Tao, Li Huanhuan
Electrical: Jia Wei, Peng Ling, Wu Hongjian
Cost Estimation: Fang Gang, Luo Shubing, Wang Chuanchao
Excavation & Slope Support: Chen Yiping, Kong Ying
Landscape: Liu Jing,Wu Yue
Interior Decoration: Li Wei, Yu Sida
Curtain Wall: Wang Shuhua, Liu Chun
Civil Defense:Zhang Jing, Liu Xu
Architectural Lighting: An Shishi
BIM Consulting: Wang Wei
Project location:Shangluo City, Shaanxi Province
Gross built area: 43788㎡
Photo credit: Zhao Yilong
Partner:Constructor Shaanxi Construction Engineering First Construction Group Co., Ltd.
Clients:Bureau of Culture and Tourism of Shangluo City
Materials:Stone, Glass, Acrylic
客服
消息
收藏
下载
最近


























































