查看完整案例

收藏

下载
科技飞速发展的当下,获取知识的门槛不断降低,不同学科之间的边界也不断被打破,想象力与创造力正成为人类与人工智能的分水岭。相应地,面向未来的科学教育也要随之改变。
▼项目概览,overall of the project© 存在建筑
“我希望以流动与混沌作为理念,实现空间的流动、功能的流动,和知识的流动。不同内容能相互贯通,融合,又是‘混沌’的。”——马岩松
MAD设计的海南科技馆以此为出发点,将内容策划、展陈与空间有机结合,不止于划分展厅陈列知识,而是能让人沉浸、互动,理解,并由此发生想象。
▼街景,street view© 存在建筑
项目位于海南海口,毗邻五源河国家湿地公园与五源河体育场,3公里范围内分布着30余所中小学与幼儿园——从选址之初,服务市民与周边居民,融入日常教育体系就是主要诉求。▼项目毗邻五源河国家湿地公园,the project is adjacent to the Wuyuanhe National Wetland Park© 存在建筑
▼由周围环境看项目,viewing the project from the surrounding environment© 存在建筑
▼入口近景,closer view of the project© 存在建筑
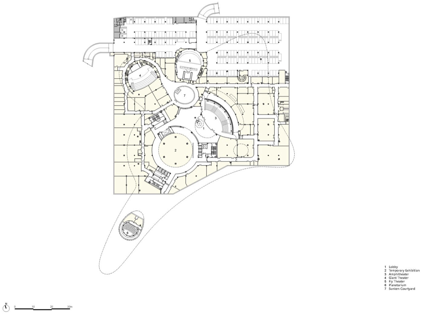
海南科技馆位于海南省海口市长秀片区,用地面积40081平方米,总建筑面积46528.73平方米,地上五层、地下一层,包含主体科技馆、天象馆、风雨连廊及室外广场等功能。
▼夜景鸟瞰,aerial view at night© 存在建筑
▼夜景,view at night© 存在建筑
海南科技馆的展览内容从日常经验出发,逐步加深至更复杂的科学议题——低层强调触摸与参与,面向儿童和青少年;中层聚焦本土环境,从地质、雨林到南繁系统次第展开;高层进入海洋与深空等更恢弘的主题。▼低层强调触摸与参与,面向儿童和青少年,the lower level emphasizes touch and participation, targeting children and teenagers© 存在建筑
不同于多数大体量、靠展厅来清晰分区的常规科技馆,MAD设计的海南科技馆将内容融入空间叙事,提供了双向、连续的观展路径。▼大厅,lobby© 存在建筑
▼大厅,lobby© 存在建筑
观众可以乘电梯直达顶层,从海洋深空主题进入,再沿螺旋坡道步行而下,进入各层环形展厅,回到更具体的环境与经验,也可以从底层出发,从小体量展厅的互动体验开始,渐次延展到更为综合的科学内容。▼模型,model©Tal+白羽
▼由外部看螺旋坡道步,viewing the spiral ramp steps from the outside © 存在建筑
▼螺旋坡道步,the spiral ramp steps © 存在建筑
双向路径让不同年龄层、不同需求的观众自主选择观展节奏,并自然分流。对观众而言,路径不止是导向,也是体验的一部分。人的移动与展览内容的变化构成节奏,知识在探索中被逐步感知。人在行走,理解在生成,想象和期待被持续拉开。▼海洋主题步道,ocean-themed ramps© 存在建筑
▼细部,details©Moden王先生
为支撑这一体验,建筑由三个核心筒支撑,形成大跨度结构体系,无柱落地,使环形展厅与坡道得以贯通,保证空间的连续性与可达性。外立面由843片FRP单元构成银色幕墙隐入天空,折射自然光和外部环境变化。▼分析图,analysis diagram©MAD
▼建筑由三个核心筒支撑,the building is supported by three core columns© 存在建筑
▼仰视天窗,looking up to the skylight© 存在建筑
内部流线通过风雨连廊向建筑外展开,连接巨幕影院与天象馆,下沉广场与灰空间提供遮荫与停留。场馆不仅是可以反复进入、探索科学的场所,也是当地居民的公共设施。▼下沉庭院,the sunken courtyard© 存在建筑
景观设计同样以尊重本土生态、增强科普教育为出发点,经过充分调研,以海南“六棵树”文化为主题选择植物品类,并结合“植物十大现象”,将内容从场馆内延续到户外,从科技到自然。
▼庭院与景观设计,courtyard and landscape design© 存在建筑
▼灰空间,grey space© 存在建筑
由马岩松、党群、早野洋介带领的MAD建筑事务所设计的海南科技馆是海南省“十大公共文化设施项目”之一,与海口云洞图书馆共同构成由海口湾向西海岸延伸的公共文化布局。▼展厅,exhibition hall© 存在建筑
在MAD的设计中,将内容与动线,建筑公共性和社区性,通过空间叙事、功能布置、建筑技艺和和形态等方法被被统一考虑。满足科普教育目的的同时,为新旧居住区的大量居民提供了休憩之所。▼展览细部,details of the exhibition© Moden王先生
试运行以来,场馆累计接待观众35万余人,单日最高接待量突破5800人,开展展教活动2400余场,覆盖观众超15万人次。海南科技馆现已正式向公众开放。
▼底层平面图,ground floor plan©MAD
▼地下层平面图,basement floor plan©MAD
▼二层平面图,2f plan©MAD
▼五层平面图,5f plan©MAD
▼剖面图,section©MAD
海南科技馆
中国海口
2019-2026
类型:博物馆
总建筑面积:46,528 平方米
地上建筑面积:27,782平方米
地下建筑面积:18,746平方米
主持合伙人:马岩松, 党群, 早野洋介
主持副合伙人:傅昌瑞,李健,Tiffany Dahlen
设计团队:王一丁,陈怡妏,孙菲菲,潘思熠,吕德臣,杨雪兵,朱禹豪,Reem Mosleh,Alan Rodríguez Carrillo,Anri Gyuloyan,Rozita Kahirtseva,郑程文,邬巧灵,冯莹莹,Edgar Navarrete
业主:海口市科学技术协会
代管单位:海口市建工集团有限公司
建筑主持设计:MAD建筑事务所
甲级设计院:悉地国际设计顾问有限公司
监理单位:重庆赛迪工程咨询有限公司
幕墙顾问:阿法建筑设计咨询(上海)有限公司
景观顾问:泛亚景观设计(上海)有限公司
室内设计:MAD建筑事务所、悉地国际设计顾问有限公司
灯光顾问:北京宁之境照明设计有限责任公司
标识顾问:悉地国际设计顾问有限公司
施工单位:中国建筑第八工程局有限公司
展陈设计:上海开艺建筑设计有限公司
摄影:存在建筑、Moden王先生
模型摄影:Tal+白羽
客服
消息
收藏
下载
最近



































