查看完整案例

收藏

下载

翻译
Entrance_main facade
Ground floor
First floor
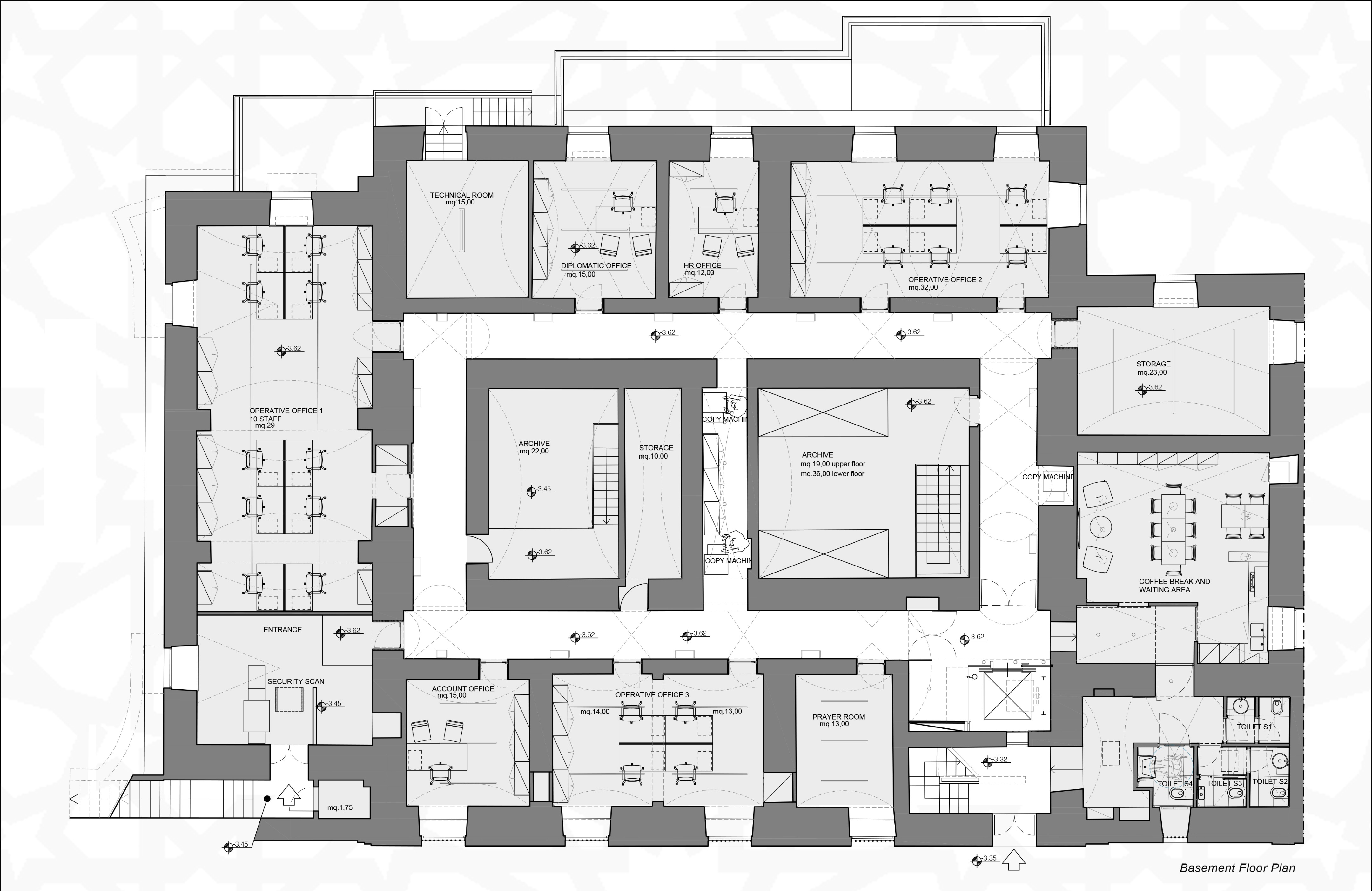
Basement floor
Hall foyer
Hall foyer
Waiting room
Waiting room
Timber floor design
VIP Majilis
Vip Majilis
Lounge
Lounge
Conference room
VIP Boardroom
Toilets
Ambassador's office
Ambassador's office
Ambassador's office
Ambassador's office
Ambassador's office
Ambassador's office
Ambassador's office
Ambassador's private room
Ambassador's private room
Ambassador's private room
Terrace
Outdoor lighting design
Outdoor lighting design
The project consists in the reuse of an historical urban villa, dated 1889, as an Embassy Headquarter.
The building is a block of cubic proportions, mostly square plan. Its internal organization refers to the type of the “palace” and to an architectural language that is inspired by the Renaissance period. The interiors are laid out on two orthogonal axes and on a grid arrangement in which the central space becomes more important, moreover being double height. The central space spatially connects the entrance hall to the upper level and receives light from above through a glass skylight.
The distributive criteria of the project have clearly taken into account the building strongly central spaced layout, organizing the representative ground floor rooms around this space and placing instead the "operational functions" (conference / multipurpose room) behind the three flights staircase. The interior is finished with much richness, featured in the decorated basin and barrel vaults –( painted by G. Sciuti)- in the coffered wood ceiling, in the stuccos, in the frames, in niches, in a language marked by classicism. The architectural choices taken are supported by a modern and contemporary language, which does not compete with the existing, but rather communicates with it. The furniture proposed have a linear design, although much refined materials, which discretely dialogue with the historical presence without dominating, giving elegance, comfort and richness to the rooms. The pieces proposed include a variety of high quality Italian design production. All curtains are featured with an elegant waved sheer, with metallic mesh effect, and sides drapery in satin, elegantly juxtaposed to the timber mouldings of windows.
Lighting design is attentive to every single environment, and underlines the geometric moderately colorful layout. For each environment it has been proposed both a technical light system that emphasizes the spectacular frescoes vaults, through LED bars elements inserted discreetly into perimetral frames; as well as decorative lights in tune with state rooms and elegant furnishings. So, they will live perfectly side by side an artistic and evocative entrance chandelier, followed by a technical system specific for lighting the central atrium, through spotlights placed above the attic floor along the frames, to enhance the bicrome mosaic in Hellenistic style and the stone staircase.
At ground floor, the main representative room (Vip Majilis and Lounge) contains a non-original floor, misaligned with the elegance of the whole context. The design project includes a timber floor, decorated with geometric designs that will much communicate with the beautiful mosaic in the foyer.
External lighting
As in the plan layout, axial and tripartite, even the exterior presents a precise system of canonical formal rules and a stylistic order overlap. Lighting design of facades marks this symmetric regularity and repetition of elements, giving texture to all surfaces with a grazing light from above or below.
Year 2016
Status Unrealised proposals
Type Embassies / Office Buildings / Interior Design / Custom Furniture / Lighting Design / Recovery/Restoration of Historic Buildings
客服
消息
收藏
下载
最近































