查看完整案例

收藏

下载

翻译
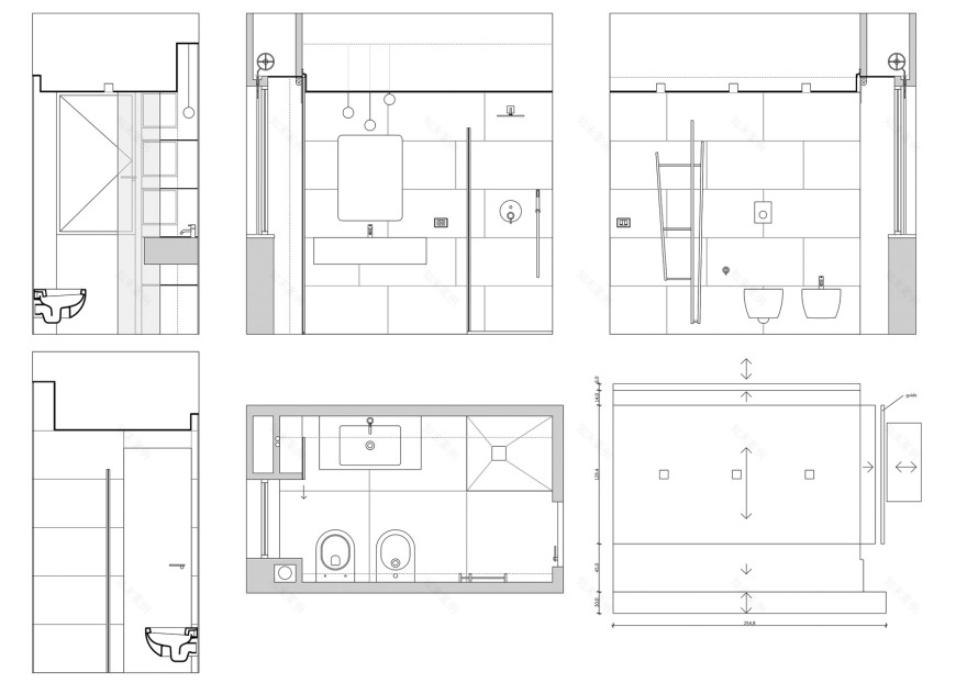
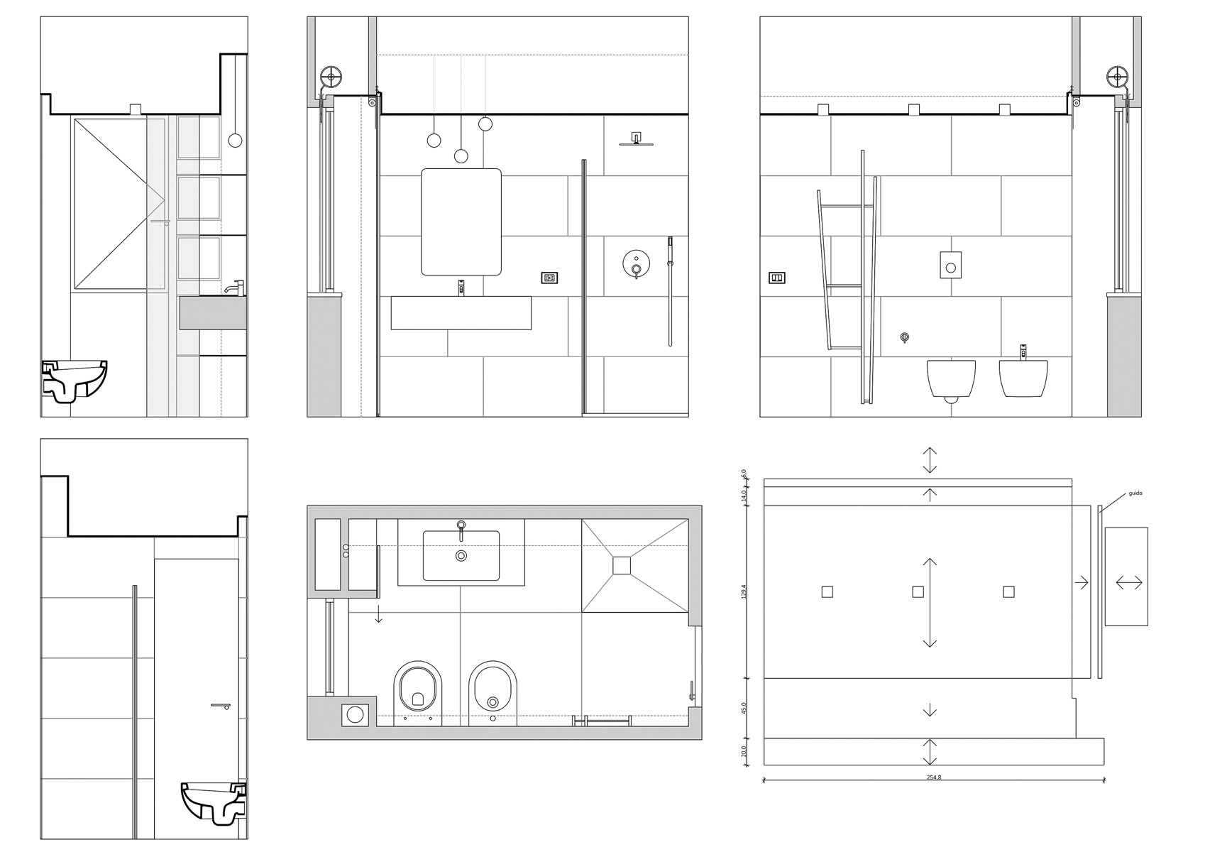
Un piccolo bagno da ristrutturare è stato l’occasione per sperimentare soluzioni formali e dettagli tecnici inusuali. Per semplificare l’estetica e organizzare lo spazio è stato progettato su misura un armadio contenitore celato da un pannello scorrevole che lascia intravedere i ripiani in acciaio dello spessore di 1 mm. La luce ha giocato un ruolo fondamentale per mettere in risalto materiali e geometrie.
Year 2019
Status Completed works
Type Apartments / Single-family residence / Hotel/Resorts / Interior Design / Custom Furniture / Lighting Design / Furniture design
客服
消息
收藏
下载
最近































