查看完整案例

收藏

下载

翻译
Ingresso . soggiorno
Soggiorno - cucina
Cucina
Bagno principale
Camera da letto
Bagno personale
Dettaglio camera - bagno
Doccia passante
Camera /studio
A. Di Balsamo
Arch. Giulio Valle
Planimetria ante operam
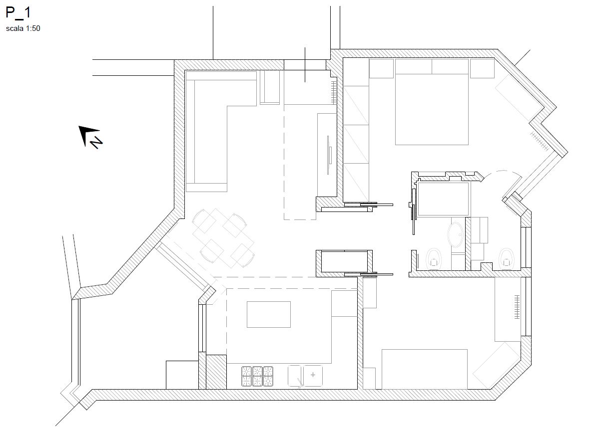
Planimetria post operam
Ante operam soggiorno - cucina
Posa del parquet sopra il pavimento esistente
Dettaglio ceramiche cucina vs parquet
Dettaglio elementi doccia
Dettaglio elementi bagno
Progettazione e ristrutturazione completa di una abitazione di 55mq nel centro del Comune di Albano Laziale, nella zona dei Castelli Romani, a pochi chilometri da Roma.
Una ristrutturazione completa che ha permesso di stravolgere gli ambienti cupi di una abitazione pensata i primi anni Settanta. Spazi aperti, luminosi, resi caldi da un parquet con un carattere deciso, tinte chiare ed elementi più scuri a guidare gli abitanti nei vari ambienti della casa.
Dettagli studiati per ricavare spazio e nascondere elementi superflui.
Una doccia extra large passante per due comodi bagni indipendenti.
Una abitazione pensata ed ideata per un giovane artista, calda e serena nella pulizia delle linee.
Arch. Giulio Valle
Year 2018
Work started in 2018
Work finished in 2018
Client A. Di Balsamo
Status Completed works
Type Apartments / Interior Design / Custom Furniture
客服
消息
收藏
下载
最近




















