查看完整案例

收藏

下载

翻译
Il progetto per il nuovo complesso scolastico di Piano di Sorrento si sviluppa intorno a quattro idee principali:
- realizzare una nuova piazza: sottolineare il ruolo della scuola nella comunità aprendola su uno spazio pubblico
- favorire la costruzione-gestione pubblico-privata: articolare l’edificio in modo da facilitare il coinvolgimento di privati nella gestione e auspicabilmente anche nella costruzione del complesso scolastico
- dare alla scuola un centro vivace e allegro: disporre tutti i principali ambienti destinati alla didattica intorno a uno spazio bello, polifunzionale, di relazione
- dare agli studenti occasioni varie di apprendimento non formale: prevedere spazi che possano essere liberamente usati per studiare, per incontrarsi, per il lavoro con docenti e altri studenti.
LA PIAZZA
La nuova scuola sarà un edificio articolato, composto da corpi di fabbrica distinti e ben riconoscibili. I volumi sono arretrati rispetto al filo stradale per dare luogo a una piazza che si attesta su via Carlo Amalfi. Questo nuovo spazio pubblico ha un ruolo essenziale nel progetto. E’ l’estensione urbana del complesso scolastico, il luogo che lo lega fisicamente alla città; che segna l’apertura e la permeabilità di una scuola rinnovata che si pone come luogo di aggregazione e centro di una comunità.
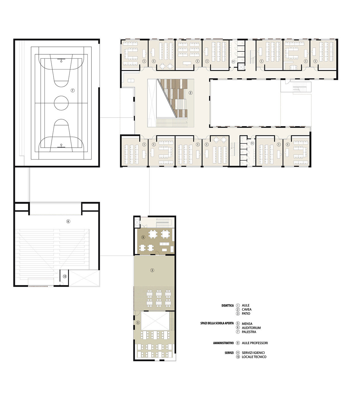
L’AUDITORIUM, LA PALESTRA, LA MENSA
Al centro della piazza, protetto da un ampio aggetto della copertura, l’ingresso della scuola si apre sullo spazio distributivo principale, un tratto di “strada coperta” fiancheggiato su un lato dagli uffici di presidenza, segreteria e amministrativi. Sul lato opposto sono allineati, auditorium e palestra, separati da un nucleo di servizi accessibile sia dalla strada coperta sia dall’esterno. La palestra, visibile attraverso vetrate dal resto della scuola, sarà interrata di circa un metro e dotata di una piccola tribuna per il pubblico.
Nel disegno generale del complesso, auditorium, mensa e palestra sono ubicati in modo da poter essere utilizzati indipendentemente, senza interferire con le attività scolastiche.
GLI SPAZI DELLA DIDATTICA
Tutti gli ambienti più strettamente destinati alla didattica, laboratori e aule, insieme alla biblioteca, sono raccolti in un blocco inserito nella parte più tranquilla e riparata del lotto. Il corpo di fabbrica ha una disposizione planimetrica a U che delimita un grande patio aperto verso sud-ovest.
Al piano terra, lungo le braccia della U sono disposti i laboratori, in mezzo si trova la biblioteca, in posizione privilegiata tra lo spazio che accoglie i ragazzi e il patio. Lungo un fianco della biblioteca sale la scala che porta a un’ampia cavea al centro dello spazio che contiene tutte le aule.
La cavea sarà il cuore vivo della scuola. Potrà essere usata come scala tra i due piani di aule, come aula magna aperta, come spazio di ricreazione e relazione.
Anche il disegno delle aule segna una differenza rispetto a modelli superati, eppure ancora reiterati. Non saranno stanzoni rettangolari allineati lungo corridoi senza qualità ma ambienti più articolati, con forma planimetrica tendente a una L, così da favorire lo svolgimento contemporaneo di attività diverse.
I percorsi distributivi saranno piacevoli e densi di attività, con slarghi attrezzati per momenti di didattica non formale di piccoli gruppi.
Progetto: Giovanni Fumagalli, Lorenzo Caporro, Francesca Canu, Pierluigi Barile, Francesca Borgia, Simona Malizia, Anita Sala
Year 2014
Client Comune di Piano di Sorrento
Status Competition works
Type Public Squares / Urban Furniture / Schools/Institutes / Concert Halls / Libraries / Fitness Centres
客服
消息
收藏
下载
最近









