查看完整案例

收藏

下载

翻译
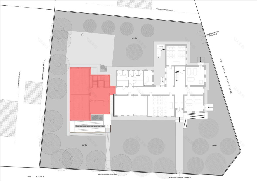
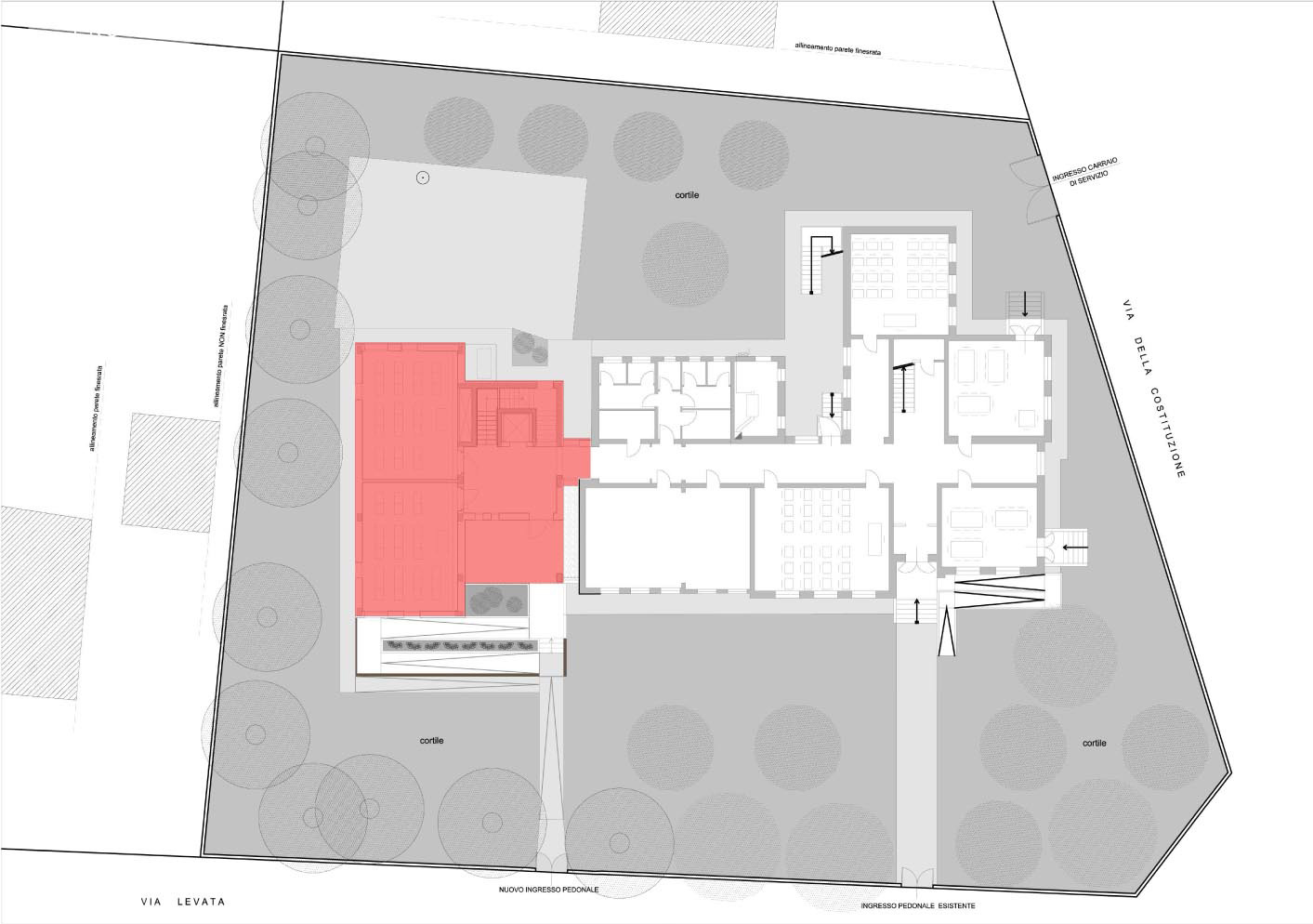
Il presente progetto, in fase di realizzazione, è stato redatto nell’ambito di Gara pubblica. Il Comune di Curtatone ha infatti deciso di individuare un partner privato per attuare un Contratto di disponibilità dell’opera utile alla costruzione di ampliamento e restyling dell’attuale scuola primaria della frazione di Levata. Il processo progettuale è stato quindi redatto in sinergia fra Amministrazione, Impresa di costruzioni ed Istituto comprensivo coinvolgendo anche gli alunni in un percorso di progettazione partecipata di alcuni elementi del nuovo edificio.
L’estensione della scuola, per complessivi 400 mq distribuiti su due piani, consiste in 3 nuovi spazi didattici, un nuovo blocco di servizi igienici, una sala polivalente, spazi di relazione e di servizio. L’edificio sorge in continuità ma non in aderenza con il plesso esistente. I prospetti sono stati rivisti nel loro complesso in modo che vecchio e nuovo abbiano colorazioni ed allineamenti coordinati ispirati ad una composizione contemporanea. Per l’edificio si prevede l’impiego di metodiche in parte tradizionali in parte prefabbricate a secco. Particolare attenzione si è riservata alle finiture, superfici e colori, ed alla qualità del clima indoor mediante l’impiego di sistemi domotici di controllo e regolazione dell’illuminazione e di una impiantistica meccanica integrata.
L’edificio è certificato (metodo di calcolo Regione Lombardia) in Classe Energetica A
Gruppo di lavoro:
Capogruppo e DL; bc studio _ Architetti Bizzo e Cornacchini con
Ing. Bizzo e Architetti Forcellini, Giovannoni e Stuani
Strutture: Studio Peroni
Impianti: Studo Borrini e Studio Eltec
Impresa promostrice: Eco Costruzioni srl
Year 2014
Work started in 2014
Work finished in 2014
Main structure Mixed structure
Client Comune di Curtatone e Soggetto Attuatore Eco Costruzioni srl
Contractor Eco Costruzioni srl
Cost 900.000
Status Completed works
Type Schools/Institutes
客服
消息
收藏
下载
最近












