查看完整案例

收藏

下载

翻译
The Porto Brasilis Building was one of the projects carried out during the years that I spent in Pontual Architecture.
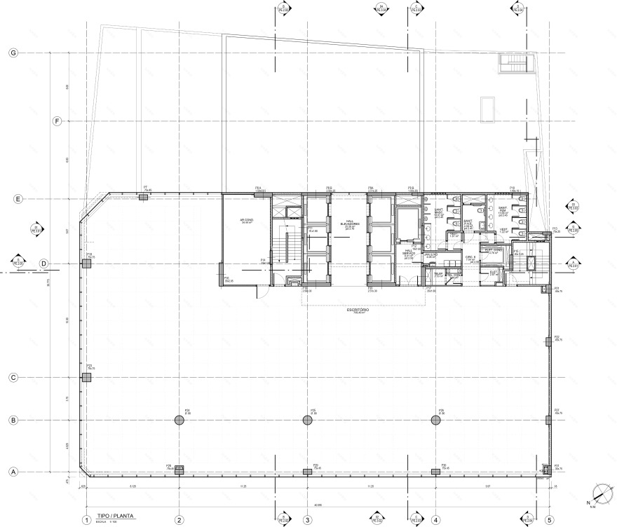
Porto Brasilis is characterized by its asymmetrical shape, consisting of office floors and conceptualized by its curtain facade, with special glass and green building certification - Leed Gold and was awarded in 2012 by the ADEMI group, with the title of master real estate prize.
Year 2012
Work started in 2011
Work finished in 2012
Main structure Reinforced concrete
Client Fibra Experts
Contractor Gafisa
Status Completed works
Type Office Buildings
客服
消息
收藏
下载
最近













