查看完整案例

收藏

下载

翻译
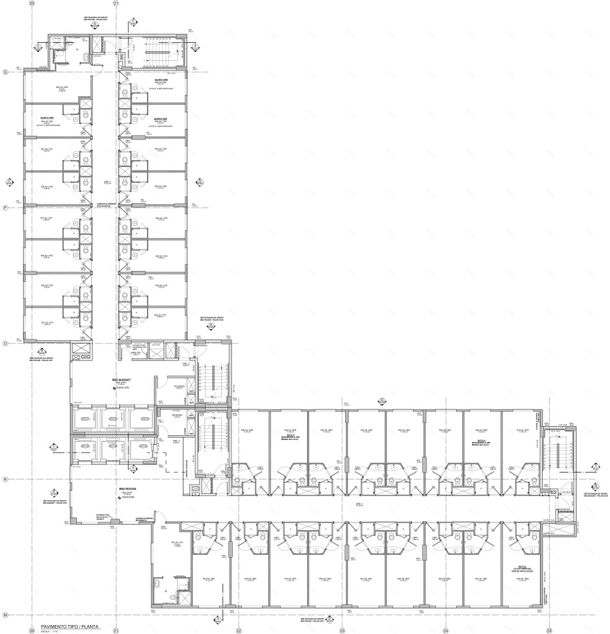
In partnership with the Pontual Arquitetura desk, Hotel Nova América has 426 lodging units of hotels of the Ibis Network and Ibis Budget. Marana was responsible for coordinating the architecture team, monitoring and controlling the scope and costs of the project, reconciling projects with other disciplines, such as design of structures and installations and execution design.
Year 2015
Work started in 2014
Work finished in 2015
Main structure Mixed structure
Contractor Galwan
Status Completed works
Type Multi-family residence / Hotel/Resorts
客服
消息
收藏
下载
最近








