查看完整案例

收藏

下载

翻译
Il nuovo polo scolastico è pensato come un villaggio educativo aperto alla città, in grado di creare nuove connessioni urbane, trasformando l’area in elemento di ricucitura di diversi lembi di territorio (la maglia ortogonale a nord, viale Venere e viale Regina Margherita). L’area è caratterizzata dalle forme e profili in stile liberty delle tipiche case e ville che si spingono fino al litorale di Mondello: l’ambizione è confrontarsi con questo consolidato panorama urbano, intrepretando contestualmente l’interazione tra le diverse percezioni dello spazio esterno. Il ridisegno dell’area è pensato quindi come aggregazione di piazze aperte e cortili più privati, di percorsi, di volumi architettonici e immersione nel verde: in tal modo la scuola diviene un condensato di funzioni e necessità urbane, una realtà multiforme in grado di reinventarsi con attività diverse.
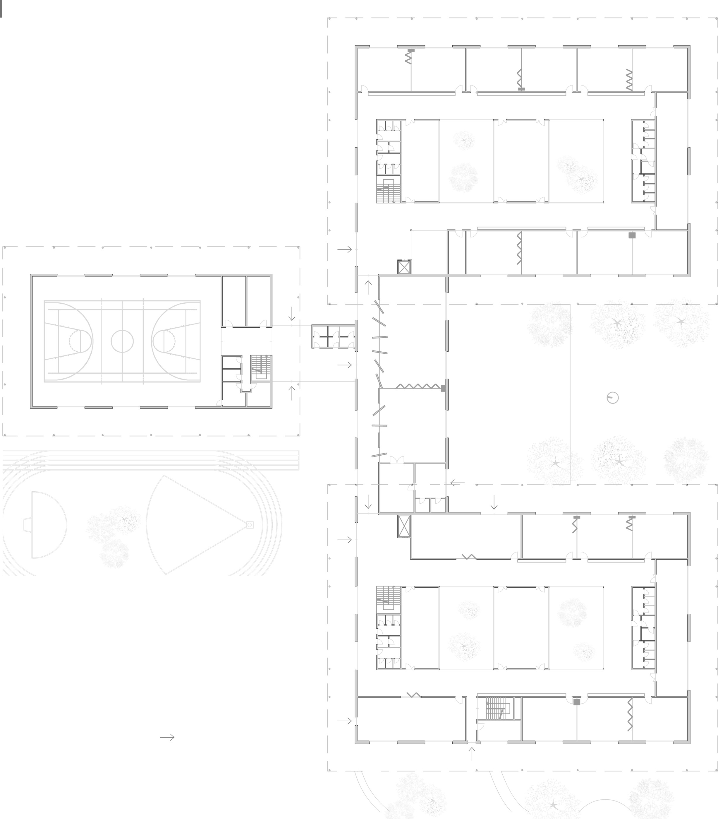
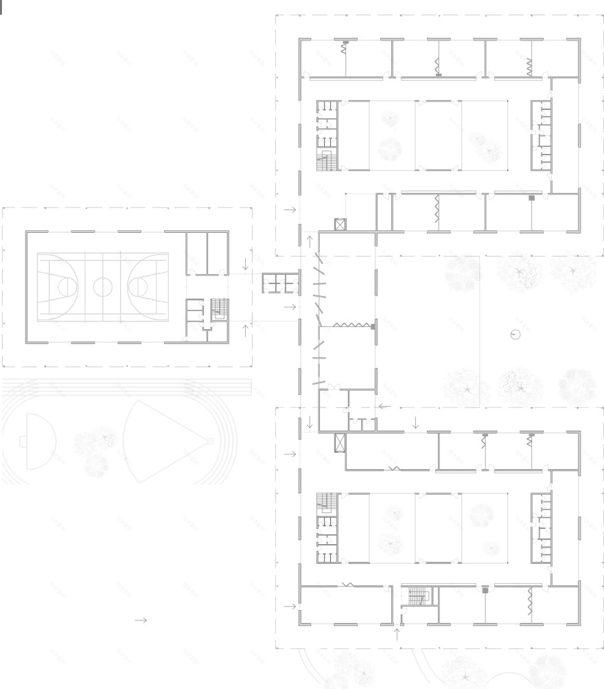
Il progetto propone una serie di volumetrie organizzate con chiarezza, connesse tra loro (eccezion fatta per la scuola dell’infanzia) e di facile comprensibilità.
L’articolazione dei tre corpi principali (scuola primaria, secondaria -con atelier e biblioteca aperte alla comunità-, palestra) connesse da un unico baricentro comune definito dalla mensa-auditorium, determina architetture essenziali e identitarie, integrate nell’assetto urbano circostante e tuttavia capaci di creare uno scenario cromatico luminoso immerso tra le essenze arboree.
La facile permeabilità dei flussi, un atrio coperto come piazza di accesso, la posizione autonoma della palestra e del campo sportivo pronti ad aprirsi all’esterno e alla scuola esistente, la mensa/sala polivalente, radicano l’edificio al contesto.
La lastra di copertura della scuola primaria crea un grande spazio coperto all’aperto, in grado di proteggere dai raggi solari e dai fenomeni atmosferici e permettendo lo svolgimento di una grande varietà di attività all’aperto nelle varie fasi del giorno e dell’anno.
Year 2017
Client Comune di Palermo
Status Competition works
Type multi-purpose civic centres / Kindergartens / Schools/Institutes
客服
消息
收藏
下载
最近










