查看完整案例

收藏

下载

翻译
La costruzione del centro culturale di Bamiyan, in un luogo così denso di storia e cultura, rappresenterà l'elemento di rinascita dopo decenni di guerre e lotte sanguinose. Durante questi anni infatti, oltre alla distruzione dell'inestimabile patrimonio monumentale, sono state messe a dura prova la resistenza e la sopravvivenza di una tra le più antiche comunità afghane come quella degli Hazara.
Concepire il progetto per il centro culturale richiede quindi un grande sforzo concettuale poiché l'opera di architettura sarà portatrice di valori storici, sociali, culturali, e dovrà essere capace di dare un forte impulso allo sviluppo della regione.
L'architettura costituirà l'avvio di un processo e ne sarà parte integrante, rivelando tutto il suo valore sociale, con l'intento di stimolare fin dal principio l'incontro, lo scambio, la cooperazione.
La nostra idea per il centro culturale di Bamiyan parte dalla volontà di coinvolgere direttamente la popolazione locale, i turisti, gli artisti e tutti coloro che avranno il piacere di prendere parte alla costruzione dell'edificio.
Pensiamo, infatti, che non possa esistere intervento sostenibile senza la partecipazione e l'attivazione di tutte le energie locali capaci di portare nell'architettura i saperi, le tradizioni, le tecnologie e i materiali del luogo.
Per questo motivo il progetto si pone come principali obiettivi l'avvio del processo di crescita culturale e la creazione di un edificio sostenibile dal punto di vista economico, sociale, ambientale, energetico e territoriale. L'edificio funzionerà non solo come attrattore e motore di crescita culturale, ma come vera e propria macchina di alimentazione energetica per il distretto, riuscendo a superare i requisiti di autosufficienza e coniugando strategie ambientali ad aspetti più strettamente architettonici legati alle forme dell'abitare tradizionale afghano e ai materiali km 0.
Inserimento nel contesto
L'area disponibile per la realizzazione del centro culturale è situata al margine di un altopiano con affaccio sulla valle di Bamiyan, dominata dall'imponente Buddha Cliff; è caratterizzata da due porzioni di terra pianeggianti connesse da una lieve scarpata che copre la differenza di quota di circa dieci metri.
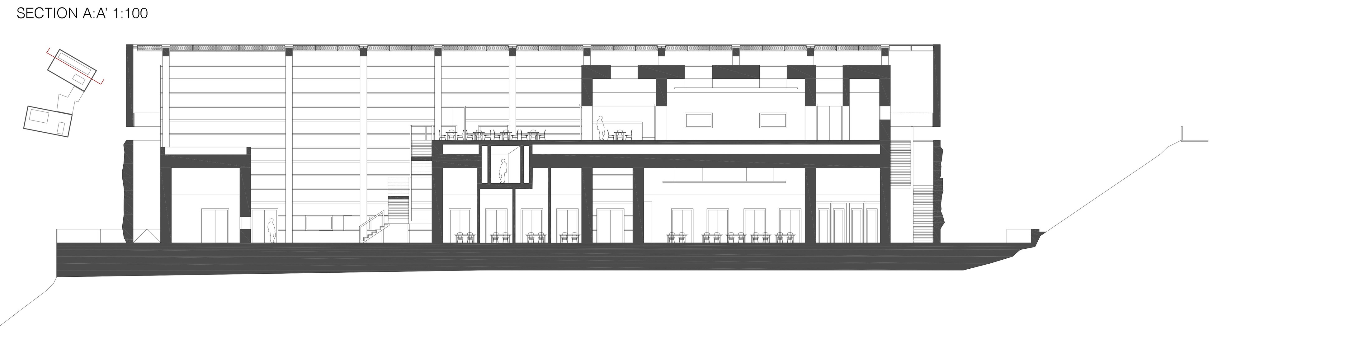
La costruzione è articolata in due corpi allineati alla strada di accesso (corpo Sud) e lungo le curve di livello (corpo Nord), collegati tramite un volume centrale che ospita ingresso, reception e servizi.
Entrambi i blocchi poggiano sul basamento rivestito per tutto il perimetro con mattoni di terra cruda pressata.
Dal punto di vista compositivo l'edificio si ispira alla costruzione tradizionale a corte, costruita all'interno di un recinto che fa da mediazione tra spazio pubblico e privato. Il recinto viene interpretato come elemento che "tiene insieme" e "protegge", oltre a funzionare da dispositivo ambientale ed energetico (schermatura solare estiva, effetto serra invernale).
"Tiene insieme" e "protegge" le differenze culturali; come una macchina, le mette in moto, le fa incontrare e lavorare insieme..
La sua forma è estremamente regolare e racchiude al suo interno i volumi di terra cruda del centro culturale. Sospeso ad un metro dal basamento, è realizzato e sostenuto da un telaio in cemento armato di colore bianco e funziona da supporto alla copertura di moduli fotovoltaici orientabili e semitrasparenti.
I due volumi sono densi di significato: alle forme semplici e continue, interrotte soltanto per le aperture che dall'interno consentono la vista del Buddha Cliff, si aggiunge il colore bianco che tanto per la cultura araba, quanto per quella occidentale è sinonimo di purezza, innocenza, sincerità, gioia; sta a simboleggiare la "rivoluzione pacifica culturale", una nuova stagione che si apre a Bamiyan duramente colpita dalle bombe dell'integralismo religioso.
Funzioni
La suddivisione del centro culturale in due blocchi consente una migliore distribuzione delle funzioni con la possibilità di fruire degli spazi in modo indipendente tra loro.
Il corpo centrale al piano terra funziona da elemento di connessione, ospitando la reception, l'atrio, il guardaroba e i locali di servizio. E' direttamente collegato con il blocco Sud in cui sono posizionati i locali amministrativi e la performance hall, con il blocco Nord in cui sono stati inseriti al piano terra la tea house, il retail store e gli spazi espositivi, con il piano inferiore interamente dedicato alle funzioni legate alla ricerca e alla didattica.
Deposito e locale tecnico sono stati inseriti al piano inferiore per un controllo migliore delle condizioni di isolamento e illuminazione, in posizione baricentrica rispetto alla sala espositiva e agli spazi di ricerca, e facilmente raggiungibili dai mezzi di servizio tramite due accessi carrabili.
Parte integrante del percorso è la rampa di collegamento tra i blocchi nord e sud, una vera e propria promenade allineata in modo da aprire una vista dedicata verso il Buddha cliff, prima di raggiungere il piano inferiore in cui il visitatore si troverà immerso in una prospettiva in cui l'articolazione dei volumi con i vuoti si ispira al lungo viale del mercato.
Lo spazio espositivo, costituito da due ampie gallerie voltate, sarà raggiungibile tramite passerelle collegate alla tea house e all'atrio; potrà essere diviso e configurato a seconda della dimensione degli spazi richiesti per le mostre temporanee e terminerà nell'ampia sala con vista diretta delle grandi nicchie dei Buddha.
Tramite le passerelle e la scala, si potrà accedere direttamente allo spazio esterno aperto, generato dall'articolazione dei volumi con la morfologia del terreno, in modo da creare un teatro utilizzabile per eventi, spettacoli o esposizioni.
Materiali e tecnologia
La scelta nell'uso di due soli materiali principali (calcestruzzo e terra cruda), fa sì che il centro culturale si inserisca armoniosamente nel paesaggio, pur essendo riconoscibile e diventando un nuovo landmark per la valle.
Pensiamo ad una costruzione km 0, con il calcestruzzo facilmente reperibile nella zona e la terra cruda per le murature che sarà recuperata dagli scavi nel sito o dalle immediate vicinanze, e lavorata da maestranze locali.
Nel blocco Nord, al piano seminterrato, il recinto sarà realizzato in muratura di terra cruda e la facciata sarà lavorata e scolpita dagli artisti, con temi che potranno essere definiti dalla comunità di Bamiyan (storia del luogo, leggende, etc..)
Il sistema costruttivo sarà a muratura portante in terra cruda con solai voltati in mattoni per i locali di piccole dimensioni e solai in legno per coprire i locali con luce maggiore.
L'utilizzo della terra cruda e la sua caratteristica inerzia termica consentirà di avere spazi interni confortevoli con temperatura costante, mitigando l'effetto della notevole escursione termica che si verifica sia durante l'anno che durante il passaggio dal giorno alla notte.
Energia e sostenibilità
L'orientamento della costruzione è tale da garantire il maggior irraggiamento solare, protezione dalle precipitazioni e accumulo termico invernale, mentre la copertura fotovoltaica orientabile (aperta-chiusa) consente ombreggiamento e ventilazione naturale in estate.
La copertura dei due grandi volumi in cemento armato sarà costituita da pannelli fotovoltaici vetro-vetro per una potenza pari a 300 kW, capace di alimentare l'edificio nelle condizioni di massima attività e di fornire energia pulita alla rete pubblica; saranno poi installati oltre cinquanta pannelli solari per la produzione di acqua calda per il riscaldamento invernale costituito da pannelli radianti a pavimento.
Per la fornitura di acqua si prevede la realizzazione di un pozzo e un sistema di recupero delle acque meteoriche, con depurazione e accumulo.
La fase di depurazione, che riguarderà anche una parte dei reflui, sarà trattata da un sistema di vasche di fitodepurazione posizionate nell'area verde a Nord.
Spazio aperto
L'area aperta a Sud potrà accogliere un parcheggio per auto , un'area verde alberata per il tempo libero e un'area dedicata al futuro ampliamento del centro culturale.
Lo spazio aperto a Nord, oltre ad ospitare le vasche verdi per la fitodepurazione, sarà organizzato con alberature posizionate in modo da inquadrare differenti prospettive e configurato secondo tre terrazzamenti in quota per la vista verso la valle e il Buddha Cliff, offrendo varietà spaziale e nuove esperienze lungo il percorso.
Year 2014
Client Unesco Afghanistan
Status Competition works
Type Research Centres/Labs / Multi-purpose Cultural Centres / Museums / Concert Halls / Libraries / Conference Centres / Pavilions / Art Galleries / Book shops
客服
消息
收藏
下载
最近





















