查看完整案例

收藏

下载

翻译
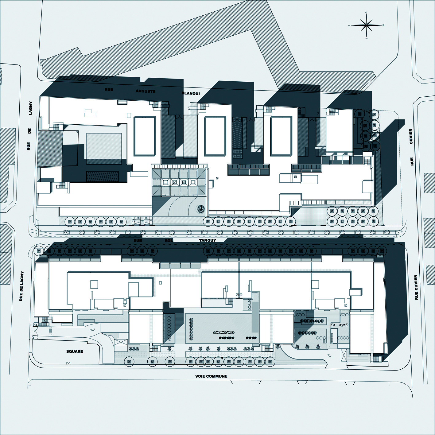
Requalification of an industrial area to rebuild a new business district ; project was including the renovation of a building and a new construction.
The renovation project, called "Arborial" has been SIMI awarded as best renovated building 2007.
Year 2007
Work started in 2005
Work finished in 2007
Main structure Mixed structure
Client Spie Batignolles Immobilier
Contractor Spie Batignolles
Cost 77 000 000 €
Status Completed works
Type Government and institutional buildings / Adaptive reuse of industrial sites / Business Centers / Urban Renewal
客服
消息
收藏
下载
最近









