查看完整案例

收藏

下载

翻译
TYPE: RESIDENTIAL BUILDINGS
LOCATION: ROME, ITALY
PROGRAM: SEVEN 93 m² row houses + FIVE 70 m² row houses +
FIVE 90 m² patio houses
DESIGN YEAR: 2015
BUILDING: -
PARTNER IN CHARGE: FRANCESCO NAPOLITANO
DESIGN TEAM: DOMENICO FARACO, MAURIZIO GIODICE, CECILIA CAFFARI, CARLA TERRANOVA
Questo lavoro riguarda due lotti situati a Roma, nella periferia ovest della città. Il progetto prevede la demolizione di alcuni fabbricati fatiscenti e la successiva ricostruzione di due piccoli edifici residenziali, separati da una strada.
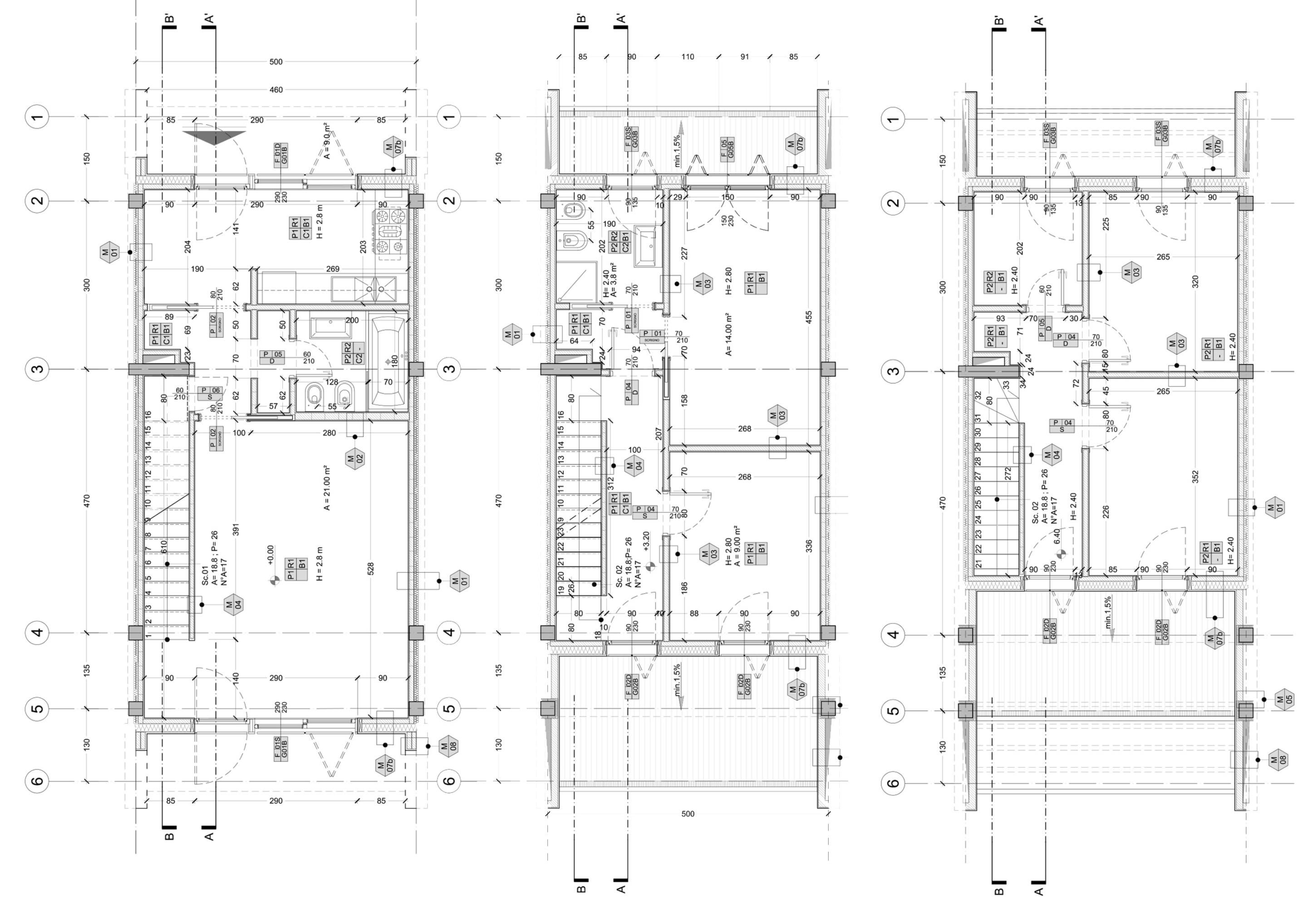
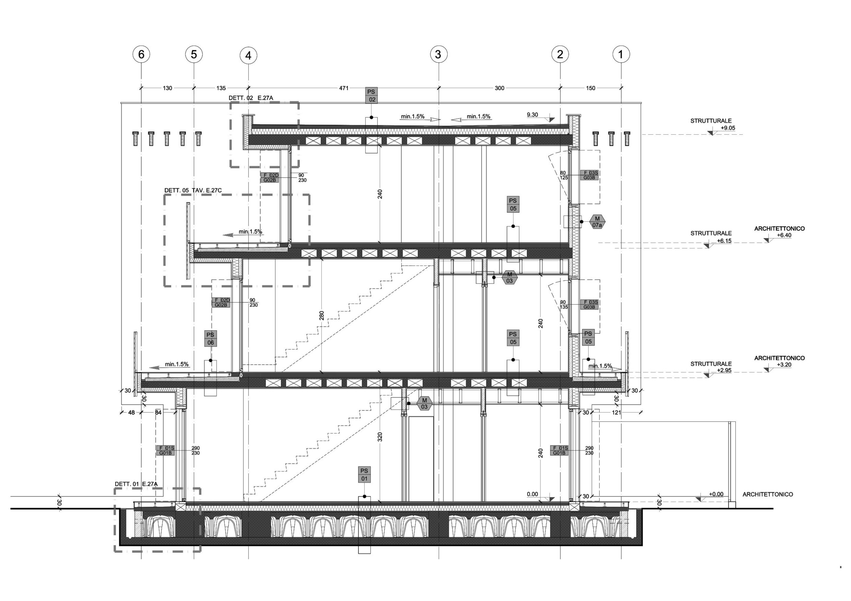
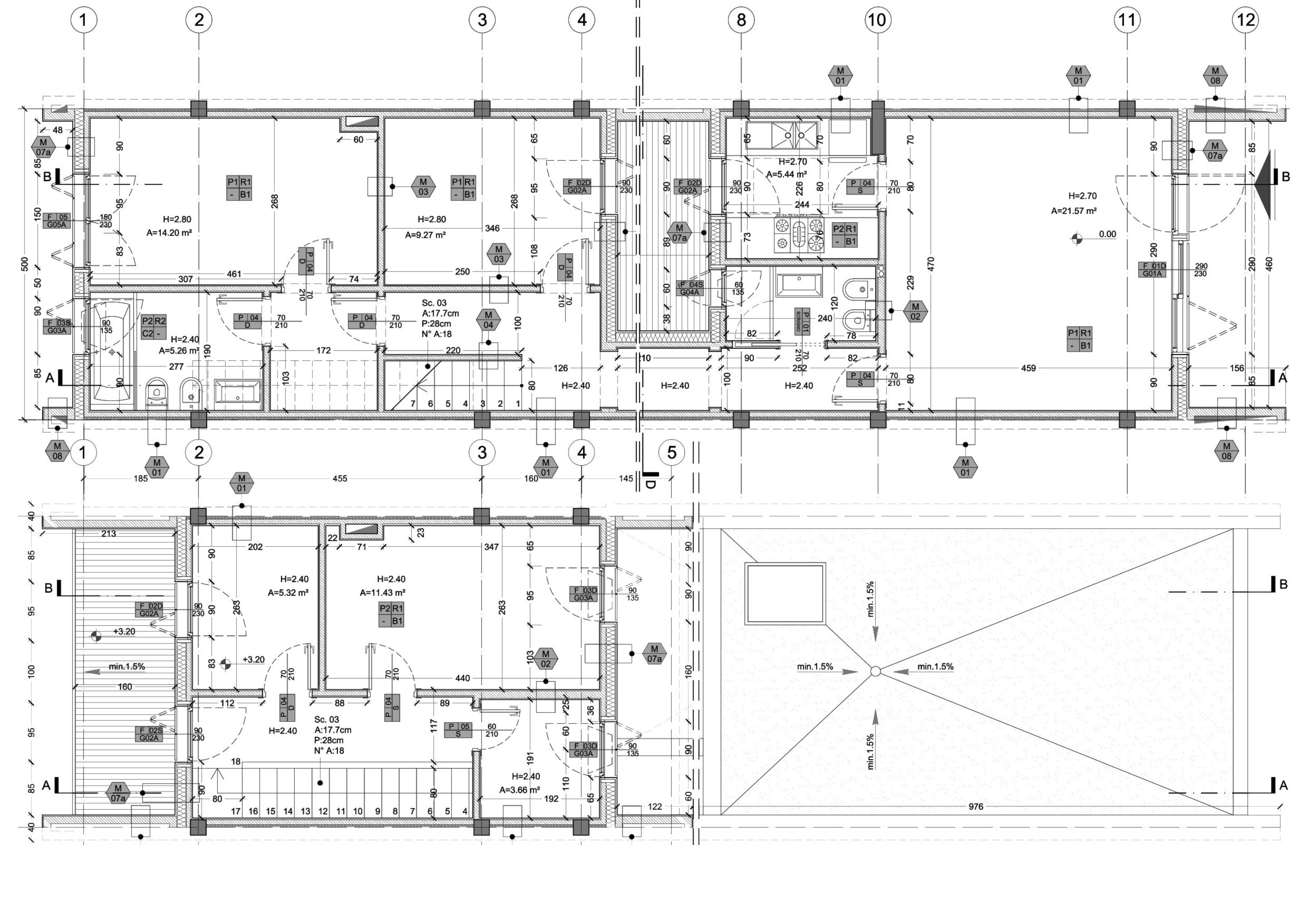
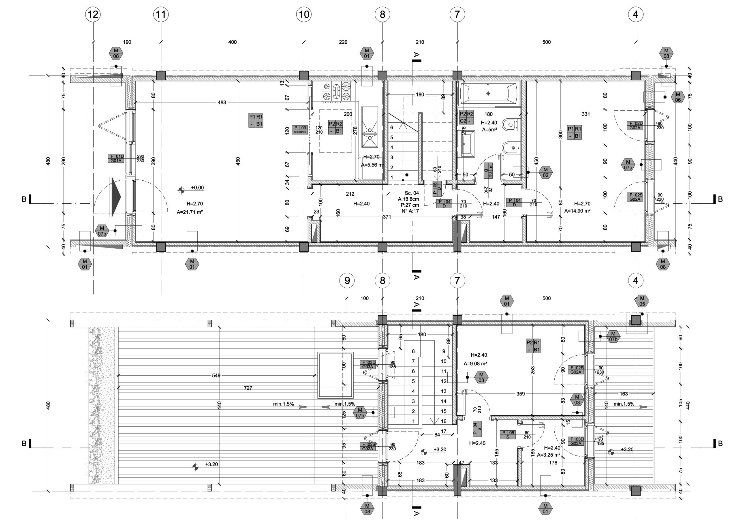
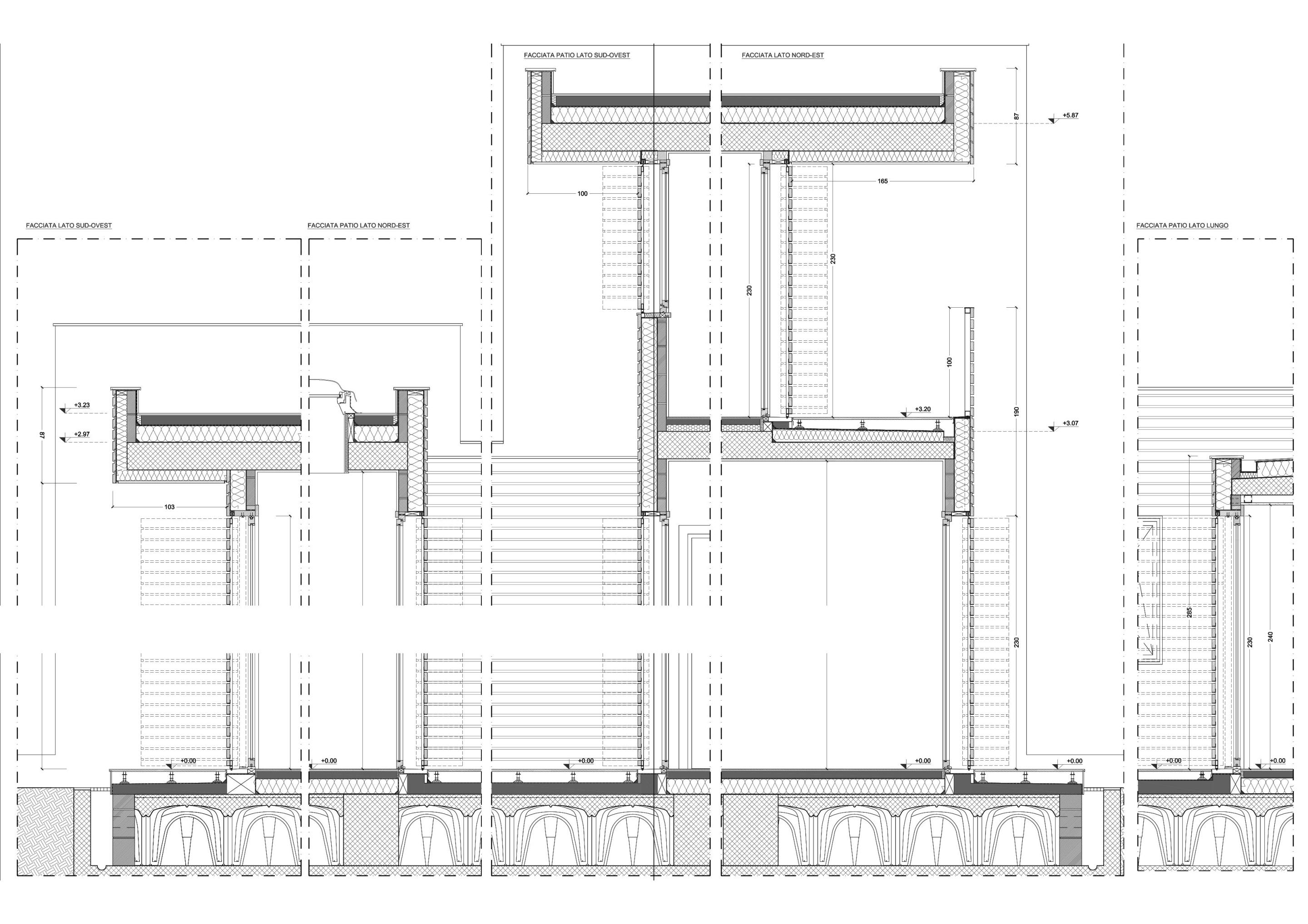
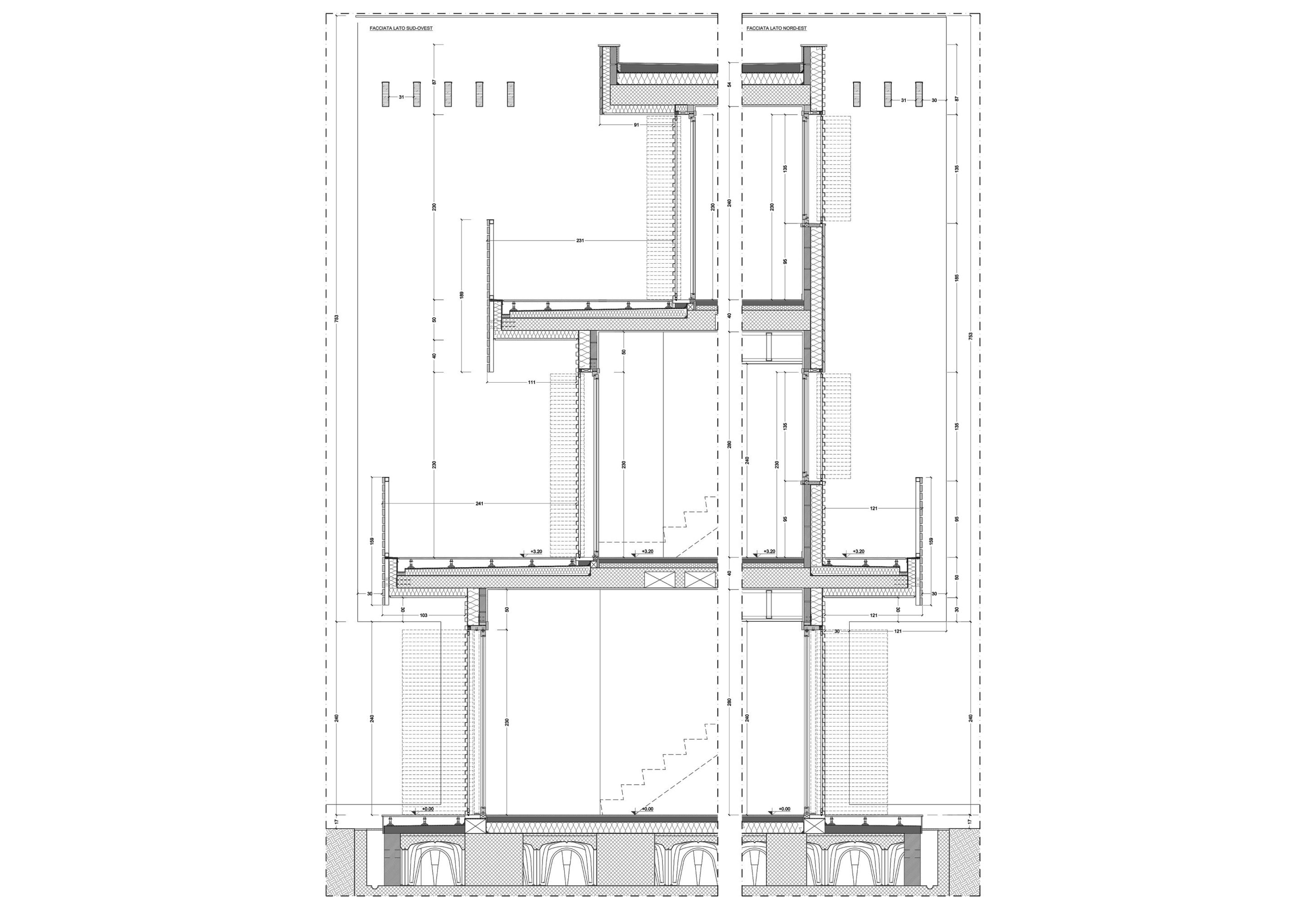
La particolarità dell’intervento è evidente nella natura stessa del lotto di progetto: benché il sito sia all’interno del raccordo anulare e sebbene sia relativamente vicino al centro della città, è situato all’interno di un’area a forte vocazione naturalistica e offre scorci di un paesaggio tipicamente suburbano. Sul primo lotto sono state progettate sette case a schiera, con una tipologia da 95 m², con scala a vista sul soggiorno e terrazze scalettate posizionate sul fronte sud; sul secondo lotto sono state inserite cinque piccole case a schiera da 70 m² e cinque case a patio da 90 m². L’utilizzo di tipologie edilizie indipendenti ha permesso di costituire un orientamento ottimale: tutte le zone giorno sono posizionate sul fronte sud-ovest mentre le zone giorno sul fronte nord-est in modo da ottimizzare i guadagni termici e l’illuminazione naturale all’interno delle abitazioni.
This work is settled in two different plots, located in Rome, in a western suburb of the city. Some old and run-down buildings are going to be replaced with two new little residentials blocks.
The contest around is very peculiar: though it is inside the Ring Road and therefore close to the city centre, it is located in a rural area, with naturalistic landscape all around.
Five 95 m² row houses are placed on the first plot, while five 70 m² row houses and five 90 m² patio houses are placed on the second. Using indipendent typologies allowed the project to achieve an optimal direction: living and dining rooms are placed in the front, facing south-west, while bedrooms are placed on the back, facing north-east to optimize natural lighting and heating.
Year 2015
Status Current works
Type Apartments / Single-family residence / Multi-family residence
客服
消息
收藏
下载
最近

































