查看完整案例

收藏

下载

翻译
unificatadefinitiva schizzo studio1
unificatadefinitiva schizzo studio 2
obiettivo è realizzare un monolite completo di guardaroba,appendiabito,,un volume che assieme al volume di cristallo della doccia organizzi la stanza
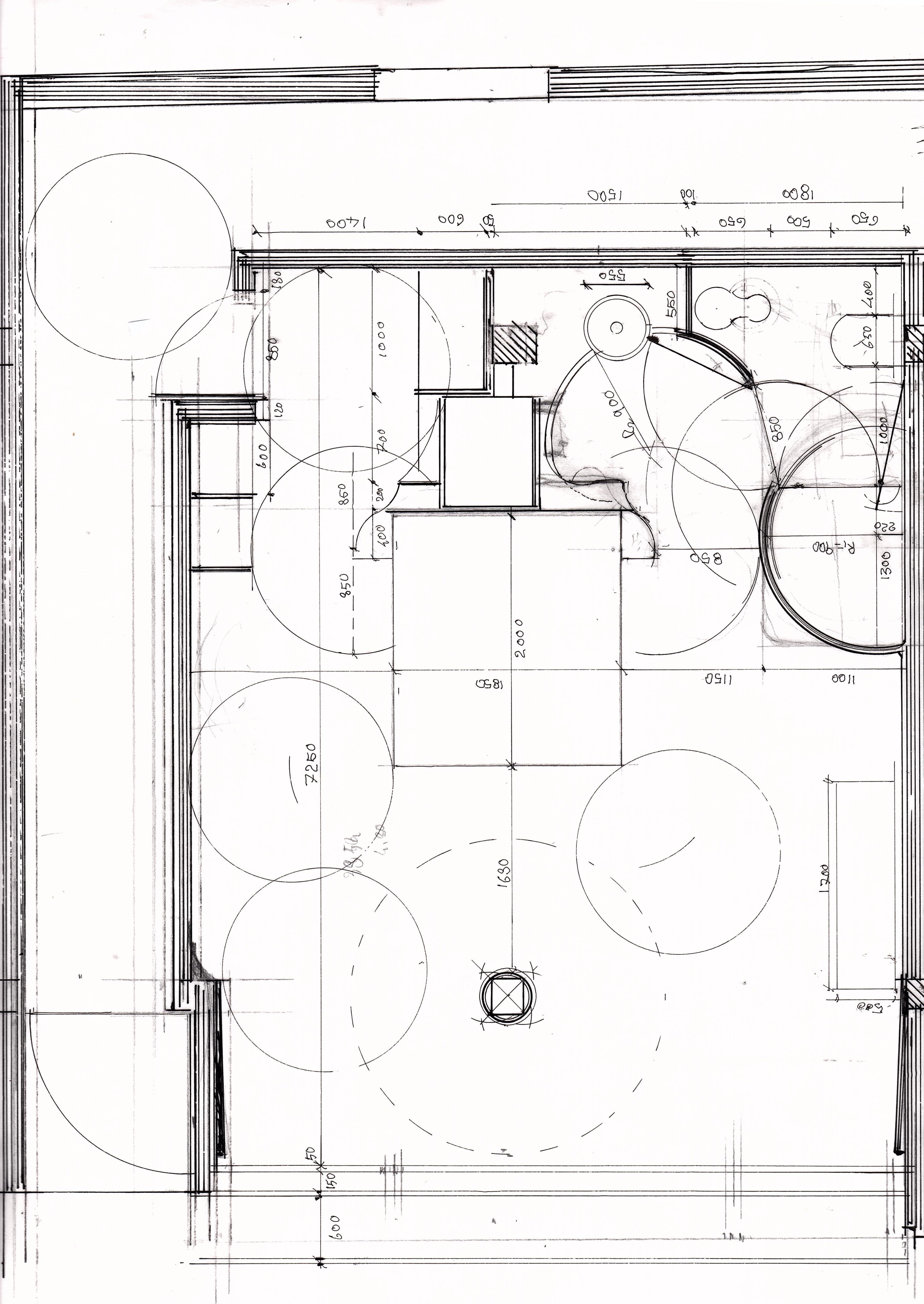
unificatadefinitiva pianta unificata ed accessibile a disabili chema tipologico che riesce a rendere normali idiversamente abile ed i normali,nella fruizione dello spazio albergo
unificatadefinitiva prospetto
studio pilastro centrale
studio pilastro centrale,con rivestimento mosaico
studio illuminazione pilastro centrale
definitiva unificata partic
soluzione al 18-10-16
prospettiva interna
soluzione al 18-10-16
prospettiva interna
con cielo stellato
soluzione al 18-10-16
pianta
soluzione al 18-10-16
sezione
soluzione al 18-10-16
part .serramenti esterni
soluzione al luglio -16
past. bowindow
soluzione al luglio -16
pianta comprensiva di scala
soluzione al giugno -16
pianta comprensiva di scala
soluzione al giugno -16
pianta comprensiva di scala
soluzione al giugno -16
prospettiva dall'alto
soluzione al giugno -16
pianta comprensiva di scala
soluzione febbraio 16
comprensiva scale emergenza
soluzione al gennaio -16
vista dall'alto
plastico
soluzione al gennaio -16
vista dal balcone
plastico
progetto dalla tematica particolare:ridurre da due camere ad una ,ma con caratteristiche particolari,obiettivi erano fruibilità completa della superficie ,mq 55,realizzazione difinestratura panoramica di grande estensione,circa 18mq,uno spazio doccia formalmente collegato ad una visibilità verso il panorama,cabina toilette ,autonoma oltre al fatto che fosse di fruibilità indistinta,di pari opportunità tra disabili e normali
ricerca si è imperniata in varie fasi e soluzioni,sino alparticolare esecutivo,ma poi improvvise necessità di economie hanno costretto il progettista ad abbandonare ogni disegno ed a lasciar mano al comittente,
quanto riportato è emblematico di un"fare" tipicamente italiano ,dove tutti sono progettisti,tranne chi lo fa per studi e professione
Year 2016
Status Current works
Type Hotel/Resorts / Wellness Facilities/Spas / Leisure Centres
客服
消息
收藏
下载
最近



























