查看完整案例

收藏

下载

翻译
edg
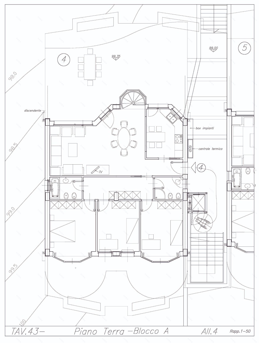
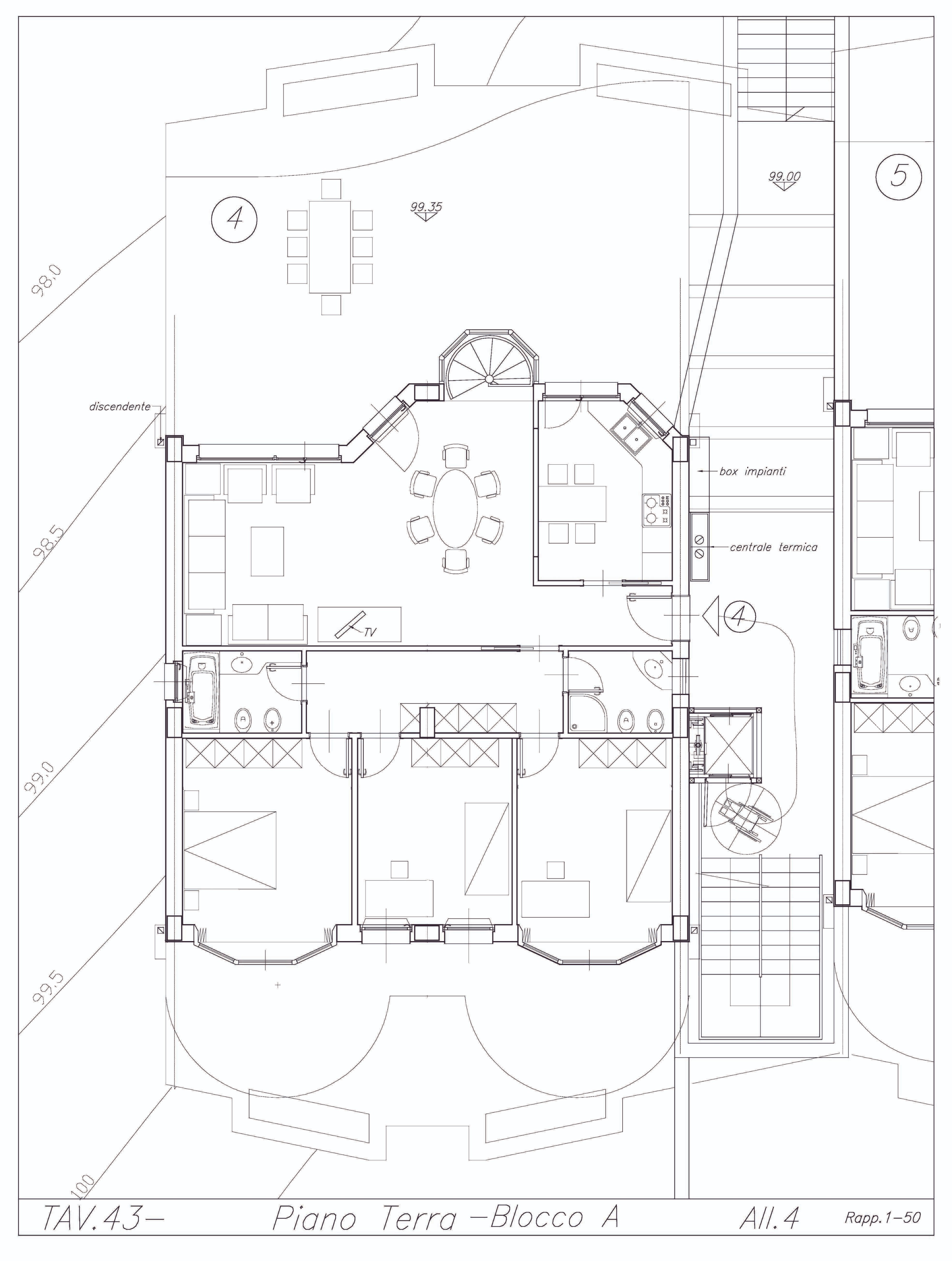
2010 - Complesso Residenziale di 10 alloggi di circa 120 mq. nel comune di Falconara Alta.Le residenze sono dislocate su un terreno di circa il 10% di pendenza in un lotto su via La Costa e via 8 Marzo. L'unità abitativa è a due piani, con terrazza attrezzata raggiungibile anche dal piano garage. Il piano terra gode di un giardino sia sul davanti che sul retro, ha un accessu diretto con scala interna dal garage privato sottostante di circa 90 mq. Il primo piano servito da un acensore che arriva sini al piano terrazza ad esclusivo servisio per il piano primo. le terrazze del primo piano e dl piano terrazza hanno dei balconi diversamente sagomati con aggetti max 6ml.
Year 2010
Work started in 2008
Work finished in 2010
Client Privato
Status Completed works
Type Single-family residence
客服
消息
收藏
下载
最近






























































