查看完整案例

收藏

下载

翻译
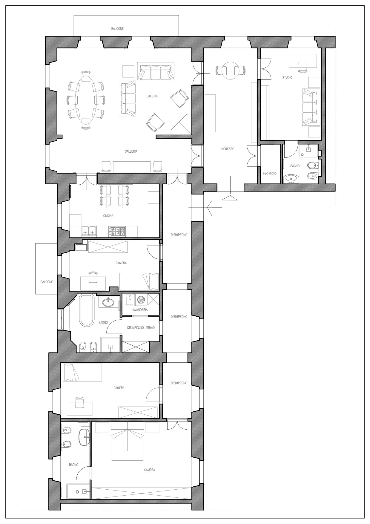
Un bell'appartamento, in un palazzo edificato agli inizi del '900, nel quartiere romano dei fiumi. Grandi spazi, stucchi ai soffitti, belle le porte ed i dettagli decorativi. La strada della conservazione era obbligatoria, e, dove non si è potuto conservare, si è ricostruito come se ci fosse sempre stato. I pavimenti, in cemento colorato, sono stati ispiratori nella scelta dei materiali per il rifacimento completo dei bagni. Attraverso le grandi finestre, la luce, forte e decisa, ci ha consentito di scegliere colori forti, anche scuri, definiti in armonia con i pavimenti. Il risultato: spazi armoniosi che ispirano serenità e rigore......nell'attesa degli arredi e dei quadri di famiglia.
Year 2016
Work started in 2016
Work finished in 2016
Main structure Masonry
Client privato
Status Completed works
Type Apartments
客服
消息
收藏
下载
最近
































