查看完整案例

收藏

下载

翻译
consulenti: M.Carcano, A.Oliverio (strutture), A. Marin (verde), A. Giuliani (impianti), K.Cazzolaro (pedagogia)
collaboratori: D.Proverbio, M.Acetti
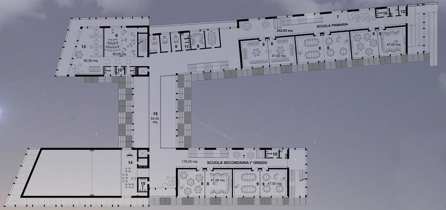
La semplice forma ad “H” del nuovo complesso scolastico rimanda all’architettura rurale e ai vecchi mulini della valle del fiume Olona. Su tutte le facciate, sulle pavimentazioni e persino sulla copertura è impresso il disegno della secolare trama dei campi. Specchio e microcosmo dell’ambiente naturale circostante, l’edificio è come un fondale campestre per tutte le attività degli alunni, una”scena” sempre aperta capace di raccontare il bisogno di vederci rappresentati in una storia. Le due ali di differente lunghezza sono collegate al centro da una grande serra nella quale è ubicato l’ingresso principale. La prima delle due corti ha funzione di “piazzetta”, la seconda interna e più protetta,destinata alle attività all’aperto, accoglie un teatrino per gli spettacoli. La mensa col proprio dehors, la mediateca e l’auditorium formano il nuovo Centro Civico, fortemente riconoscibile all’esterno grazie alle facciate di verde rampicante e alla fontana con la grande ruota di mulino.
Year 2016
Status Competition works
Type Schools/Institutes
客服
消息
收藏
下载
最近













