查看完整案例

收藏

下载

翻译
фото #1 / photo #1
фото #2 / photo #2
стройка / construction site
фасады / facades
разрезы / sections - 1, 4
фасад / facade 1 - 4
фасад / facade В - А
разрез / section - 3
фасад / facade А - В
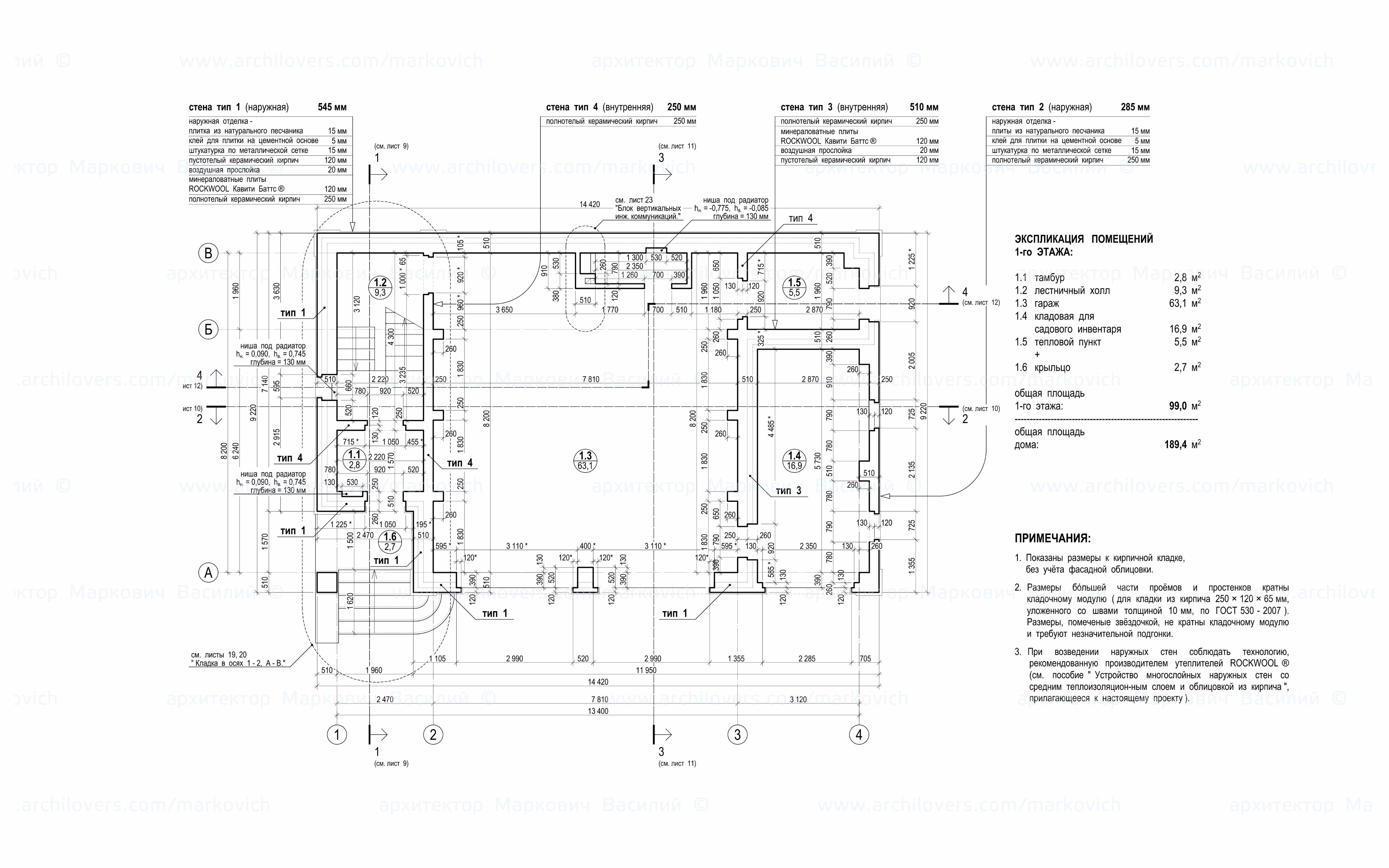
план 1-го этажа / ground floor plan
В данном случае стилевое решение фасадов гостевого дома было жёстко обусловлено стилем близко расположенного главного дома и установкой на то, чтобы сохранить визуальное единообразие существующей и проектируемой построек. Некоторую сложность представляло полное отсутствие проектной документации на главный дом. До начала рабочего проектирования были детально обмерены элементы фасадного декора главного дома, на основе чего далее отрисованы фасады проектируемого. Параметры материалов для наружной отделки - наименования, цвета, фактуры и т.д. - также подбирались под существующий "прототип". В результате принятая установка на визуальное единообразие была успешно выполнена. Стоящие рядом постройки, построенные в разное время разными авторами, составляют единый архитектурный ансамбль.
Year 2012
Main structure Mixed structure
Client частное лицо / private person
Status Completed works
Type Single-family residence / Country houses/cottages
客服
消息
收藏
下载
最近














