查看完整案例

收藏

下载

翻译
Prima, durante, dopo
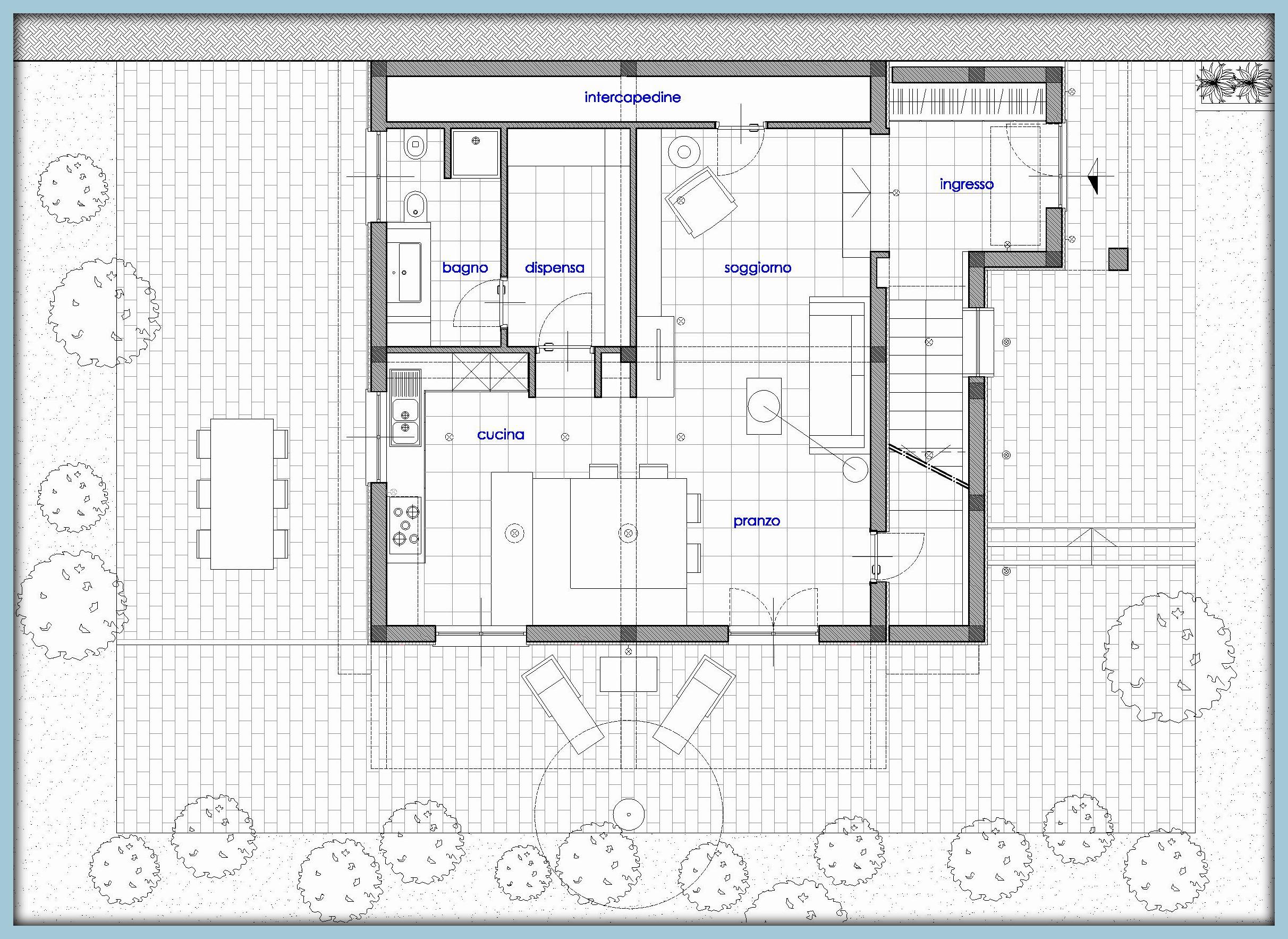
Pianta piano terra
Pianta primo piano
Prospetto
L'oggetto dell'intervento è una casa in campagna immersa nel verde con vista sul paese di Poggio Mirteto diventata troppo piccola per la famiglia che vi risiede e lavora. Negli ultimi anni i componenti sono infatti raddoppiati, da quì la necessità di aumentare lo spazio abitabile.
Prima dell'intervento l'edificio era composto da due piani: al piano terra la cantina, al piano superiore l'appartamento raggiungibile con scala esterna.
La normativa vigente per la zona e la cubatura residenziale residua hanno consentito di realizzare un piccolo ampliamento ed il cambio di destinazione d'uso del piano terra.
L'ampliamento ha inglobato la scala esterna, facendola diventare interna, e il nuovo ingresso.
Al piano terra ora si trovano la zona giorno con ampio open space, una dispensa ed un bagno.
Al piano superiore si trovano lo studio, tre camere da letto ed un bagno.
Year 2016
Work started in 2015
Work finished in 2016
Main structure Reinforced concrete
Client La casa nettarina
Status Completed works
Type Country houses/cottages / Building Recovery and Renewal
客服
消息
收藏
下载
最近


















