查看完整案例

收藏

下载

翻译
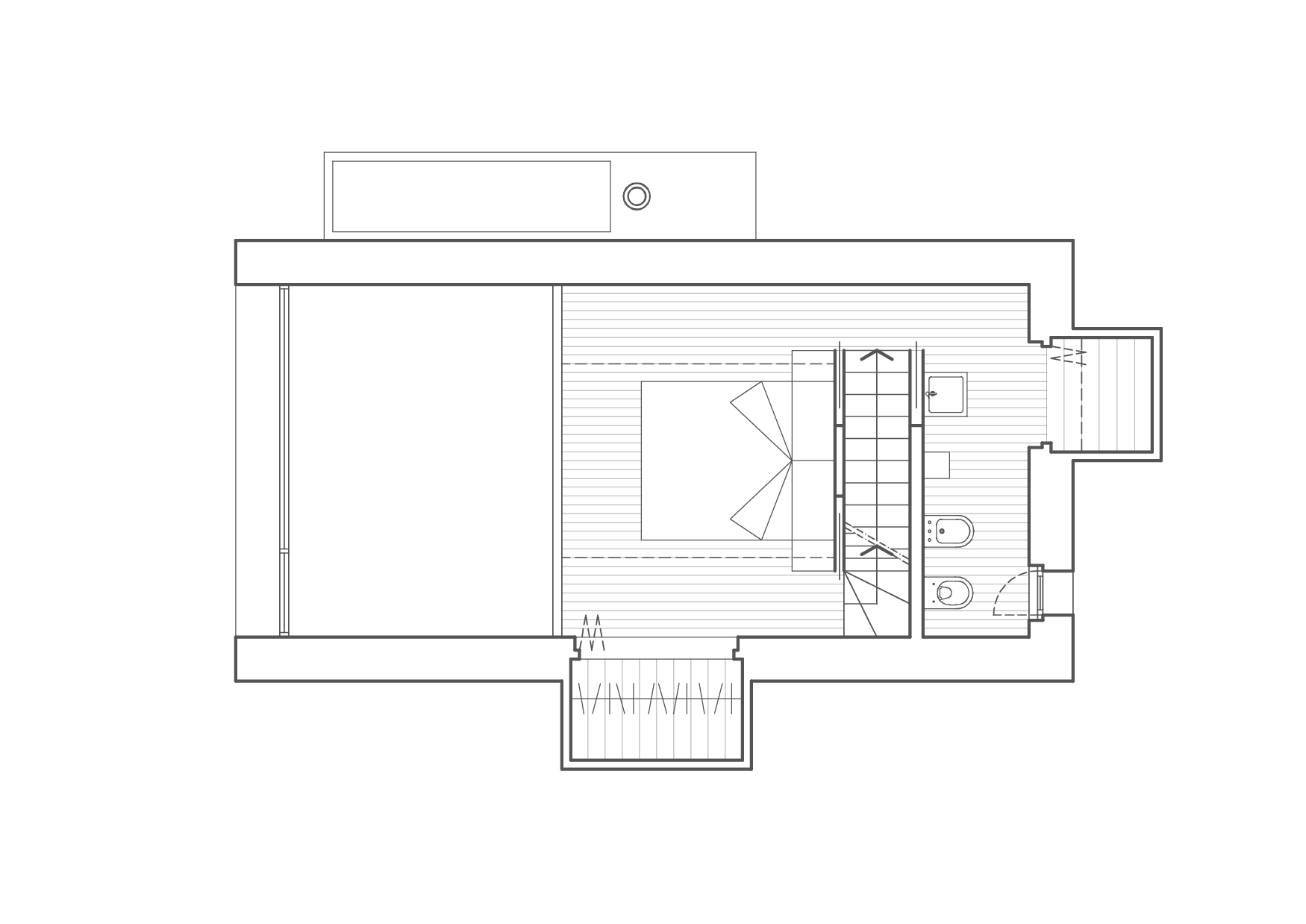
L'edificio si compone di un involucro principale totalmente in cemento armato faccia a vista di tre piani, generato dall'estrusione di una sezione a capanna, e da volumi secondari di servizio adiacenti in corten. L'interno, caratterizzato dall'ampia vetrata a tutta altezza che guarda verso il giardino, è composto da un piano terra adibito a zona giorno, da un piano primo su soppalco per la zona notte e da un piano secondo costituito da un volume appeso alla copertura destinato a studiolo. Tutti gli elementi che compongono lo spazio interno (arredi, soppalco e studiolo) sono volutamente monomaterici (in legno laccato) per distinguersi dall'involucro principale.
Year 2019
Status Research/Thesis
Type Single-family residence
客服
消息
收藏
下载
最近










