查看完整案例

收藏

下载

翻译
-Concours réalisé en collaboration avec l'architecte N.Zgarni
-Projet non classé.
- Partie architectural:
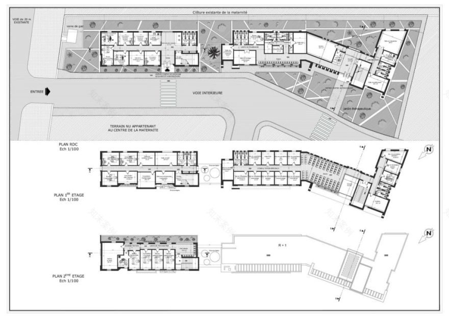
Parti formel
L’idée génératrice du projet est d’illustrée le soutien et la protection des visiteurs et de leurs offrir un sentiment d’équilibre, de stabilité et d’accompagnement.
Parti fonctionnel
L’idée recherchée fonctionnellement est d’assurer la connectivité avec l’espace extérieur et la stabilité. Pour le hall d’entrée, une grande baie vitrée ouvre sur un jardin au RDC.
A l’étage, un axe de circulation rectiligne ouvert des deux côtés permettant une distribution claire des espaces. Au deuxième étage, contenant l’unité psychiatrique, l’idée est d’offrir une vue panoramique sur un jardin à l’étage et sur le site par l’intermédiaire d’ouvertures d’allèges qui ne dépassent pas les 60 cm.
Parti urbain
Le site se caractérise par la présence d’une architecture hétéroclite. Alors l’idée est d’opter pour un langage architectural unique pour les deux bâtiments assuré par un jeu de volume, un travail dans la masse et l’utilisation du moucharabieh. Cette dernière est un moyen de minimiser les rayons solaires et de ventilation naturelle accélérée à travers la réduction de la surface produite par le maillage.
Year 2017
Status Completed works
Type Government and institutional buildings / Hospitals, private clinics
客服
消息
收藏
下载
最近








