查看完整案例

收藏

下载

翻译
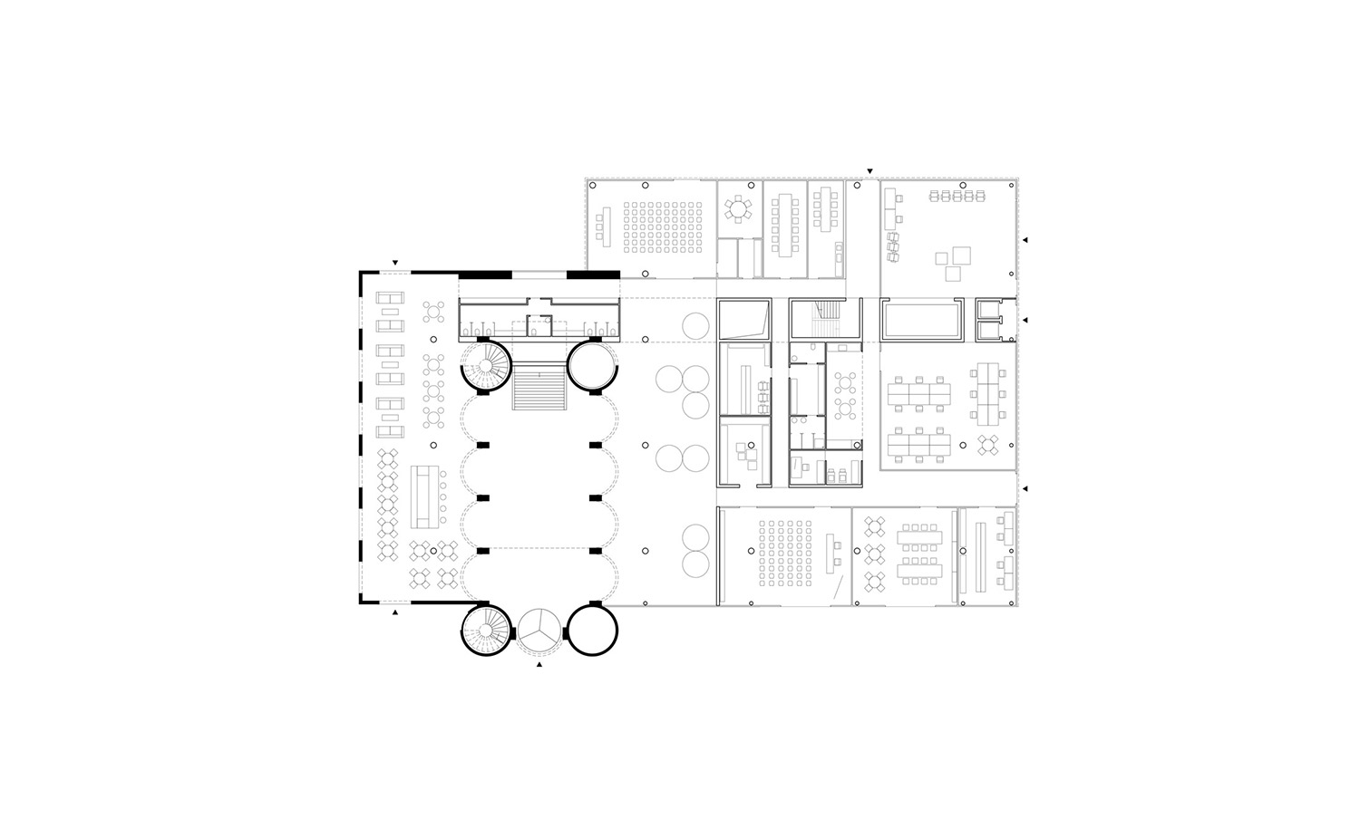
The project proposes to remove part of the silo building, which is an historical landmark of the city and an important document of the Norwegian industrial heritage, taking it back to its original iconic 1935 version, to find a harmonic relationship with the scale of the surroundings and to establish a large attractive urban square, the Kulturtorget. The built borders of the square will all be qualified with activities and functions to produce lively interactions between interior and exterior spaces, providing a basis for a strong synergy between activities and users; the entire masterplan project supports the idea of a very open and public system of buildings with smooth transitions between inside and outside, defining the area’s connection both with the city and the close surroundings.
Year 2016
Client Municipality of Kristiansand
Status Unrealised proposals
Type Multi-purpose Cultural Centres / Museums
客服
消息
收藏
下载
最近














