查看完整案例

收藏

下载

翻译
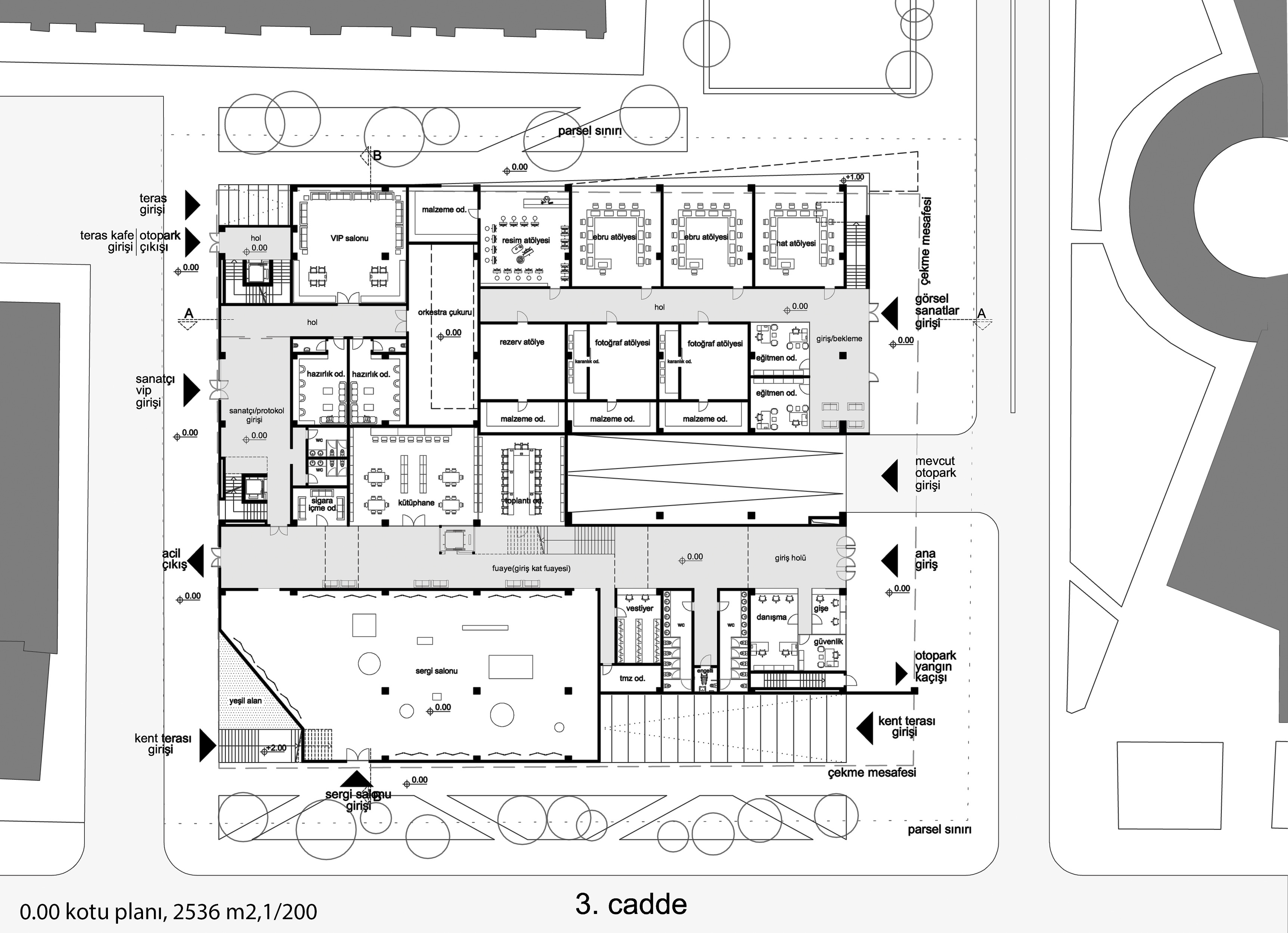
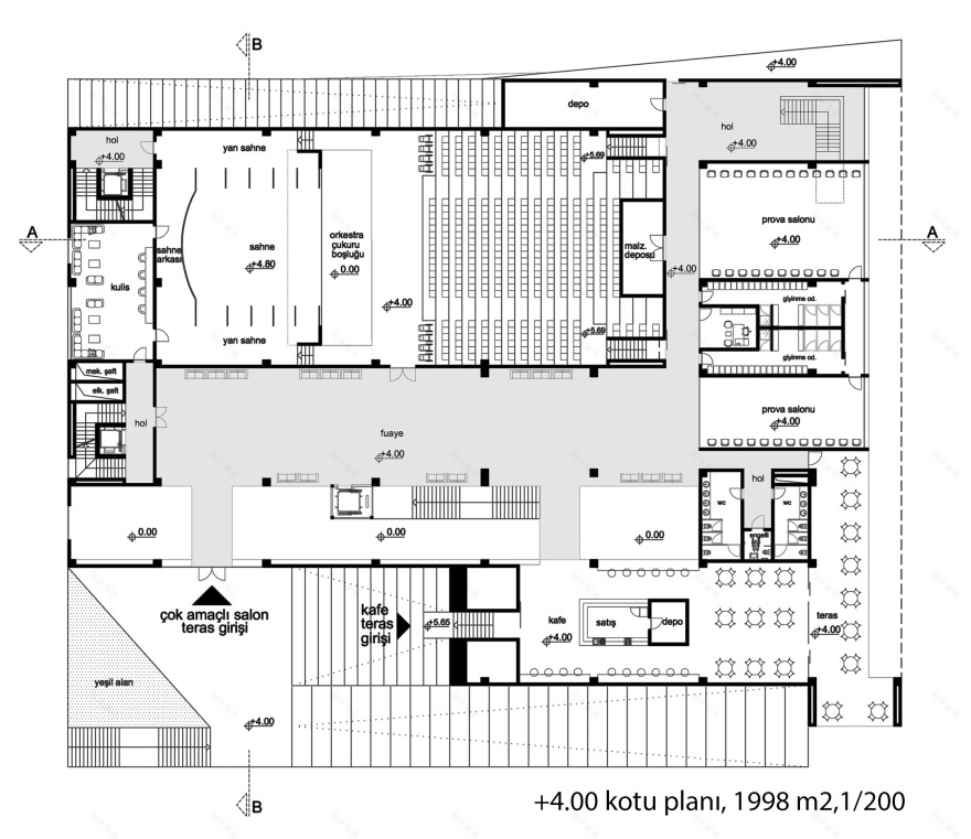
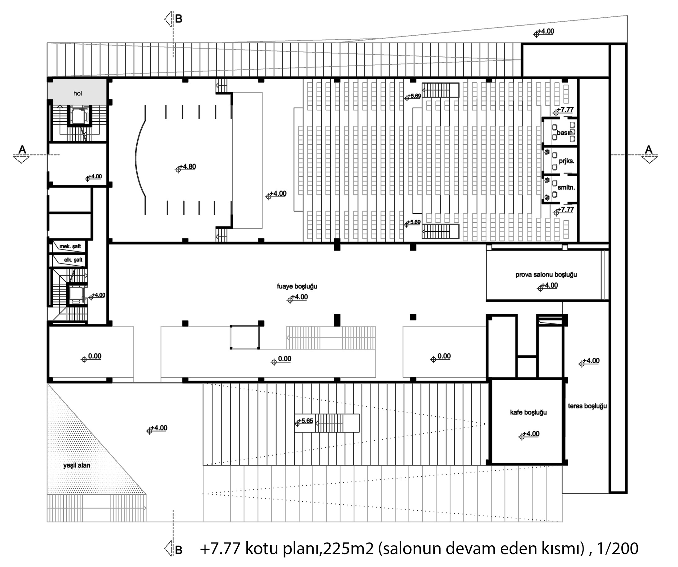
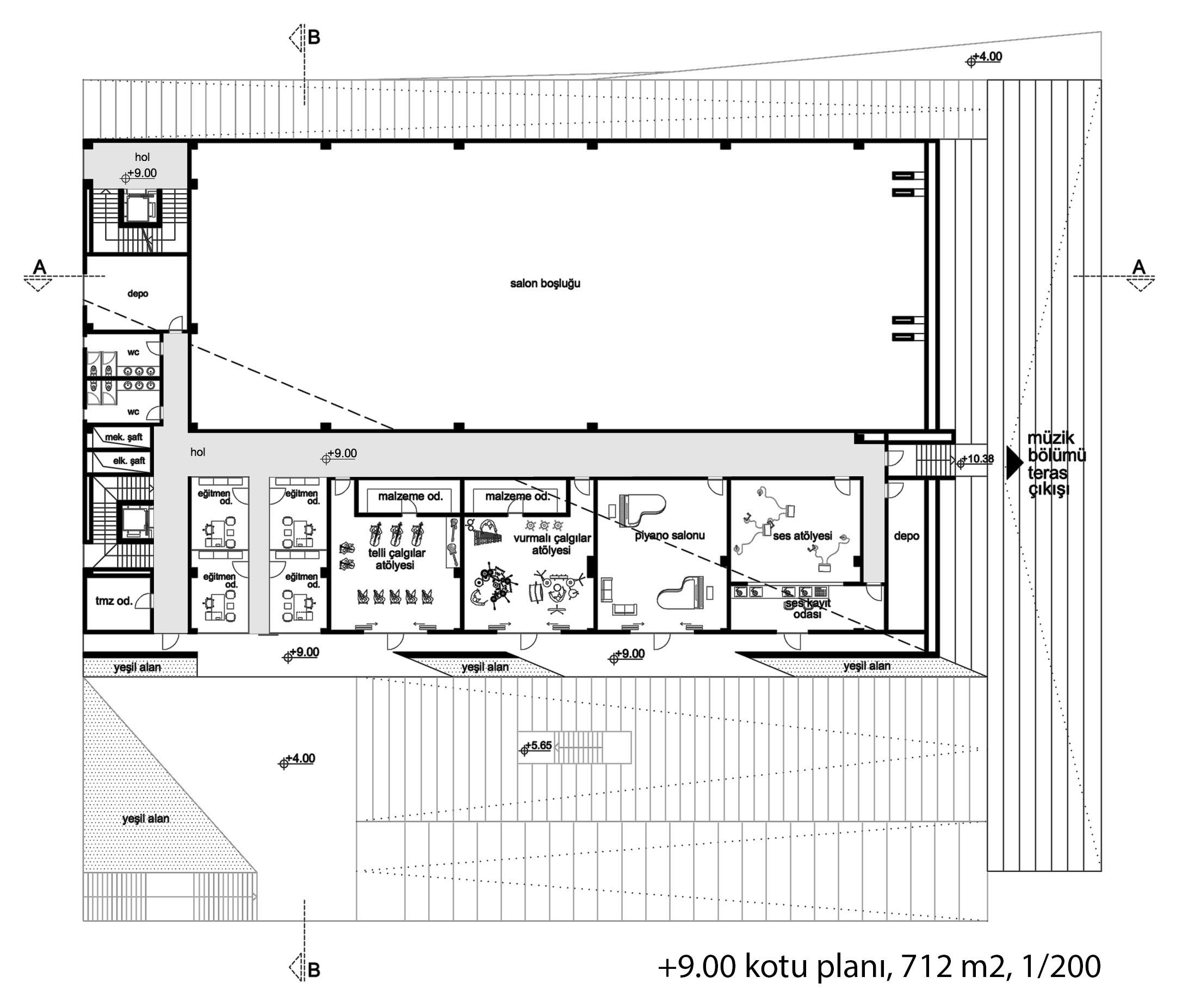
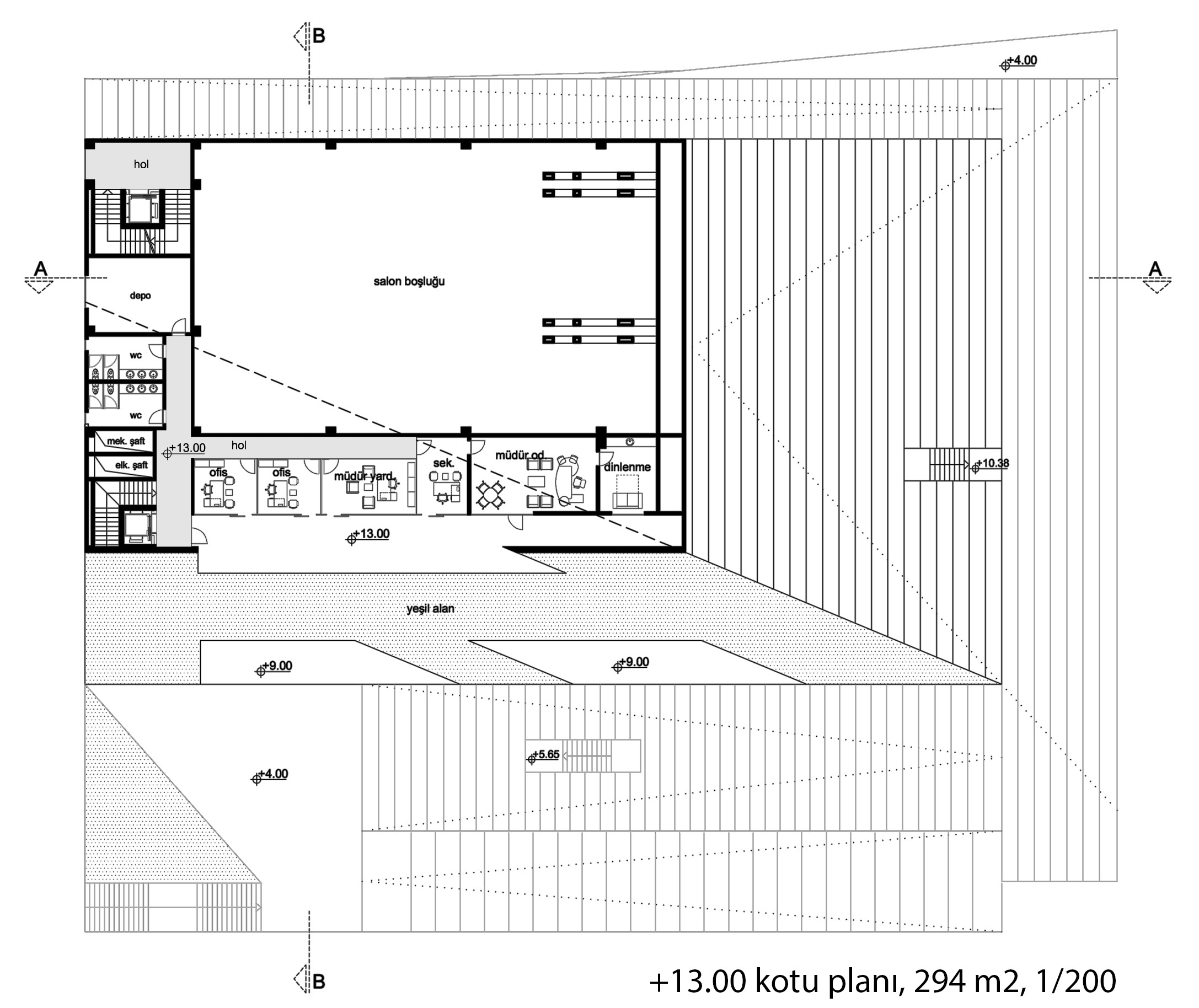
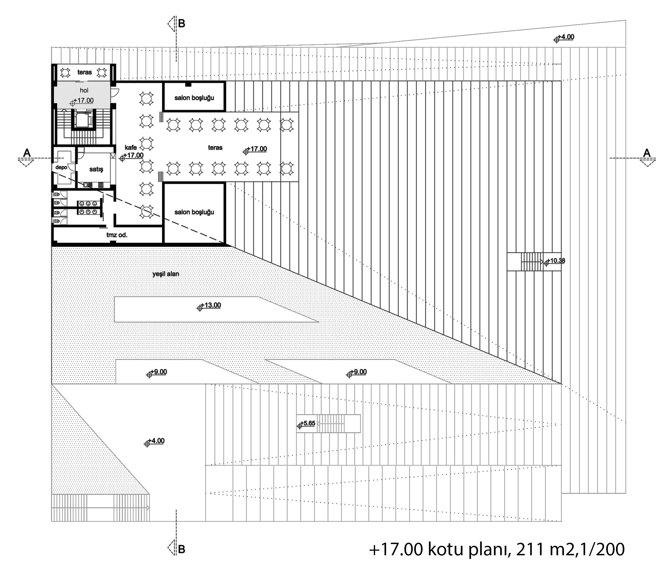
Typically, you enter the building, or you stay outside.This building offers a third possibility.This is the third use case climbing on the structure with steps lead up to the highest point of the structure, starting from the ground, resting on different levels, spend time, chatting, and the city is watching the situation.Located parking area on the existing car park, across the board to be open to pedestrian use gives a spaciousness to the city. that the intended use of the cultural center, through the terraces are created with steps has been made more effective.
Pedestrian circulation on the cultural center moved, rising to a new challenge is defined in the vertical.
Year 2016
Main structure Mixed structure
Status Competition works
Type Parks, Public Gardens / Public Squares / Urban Furniture / Multi-purpose Cultural Centres / Theatres / Libraries / Art Galleries
客服
消息
收藏
下载
最近














































