查看完整案例


收藏

下载
THE HOME THE OWNER
屋子,屋主
——
1F原始户型图
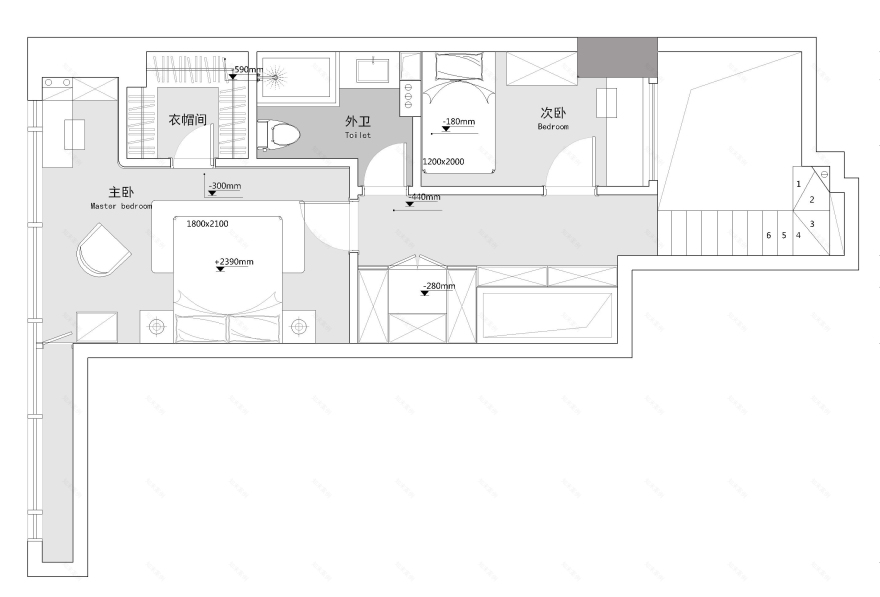
1F平面布置图
2F原始户型图
2F平面布置图
❶将厨房餐厅以及客厅整体打通,减少遮挡,让空间变大。❷打通空间后原来两根钢架的承重柱略显尴尬,用木质格栅完美规避,让其显得不是那么的突兀。
Hally
玄关
LOFT的户型玄关处层高在线,在不浪费空间的原则上于玄关柜体上方做了30格收纳柜,加装暖色灯带,可以作为屋主的手办墙,达到收纳兼装饰的效果。
The floor of the loft’s porch is online. On the principle of not wasting space, a 30-segment storage cabinet is made above the porch cabinet, and warm-colored light strips are installed, which can be used as the homeowner’s hand-made wall to achieve the effect of storage and decoration .
Living Room
客 厅
1楼由于层高的限制没有吊顶,干净简约的无主灯设计配合恰到好处的灯光布置,开灯时整个家变成了暖橘色,
温馨自然、简约清新,门外纷纷扰扰,门后清闲自在的家更能给人归属感。
打通餐厅与客厅后整个空间显得开阔通透,动线也更加简单有序。木饰面的隐形门后是一个小型的储藏间,木饰面让空间多了一些层次感,避免了单调。
After opening the dining room and living room, the entire space appears open and transparent, and the movement lines are more simple and orderly. Behind the invisible door with wood veneer is a small storage room. The wood veneer gives the space more layering and avoids monotony.
Dining Room
餐 厅
The load-bearing beams are hidden in the special grille. The trick of "stealing the beams and changing columns" cleverly combines Japanese elements with the awkward load-bearing structure, and at the same time adds a touch of fun.
The restaurant is displayed in the form of a bar, with two Japanese-style dining lamps filling the atmosphere.
Collection is a kind of fun. Whether it is a hand, a camera or a cup, it is a way to add fun to life.
Kitchen
厨房
Together with the bar counter, it forms a U-shaped console. The kitchen is not big or small but it is very warm.
Master Bedroom
主 卧
The master bedroom on the second floor continues the Japanese simple and natural style, without much decoration. The wooden furniture and solid-color bedding have a unique atmosphere under the reflection of warm light.
Work Area
工作区
The space below the stairs is also usable, which is divided into two into storage areas and functional areas.
Toilet
卫生间
The guest bathroom on the 1st floor is small and sophisticated. The vertical white tile collage with Japanese sliding doors instantly enhances the style.
阳台
The balcony with a view of the river is a pleasant place to enjoy tea and wine, or plant flowers to admire the scenery, or hang out with friends of three or five, and occasionally lead a slow life.
客服
消息
收藏
下载
最近





























