知末
知末
创作上传
VIP
收藏下载
登录 | 注册有礼

新中式风格打造大气五口之家

2020/07/13 00:00:00
查看完整案例
微信扫一扫
收藏
下载
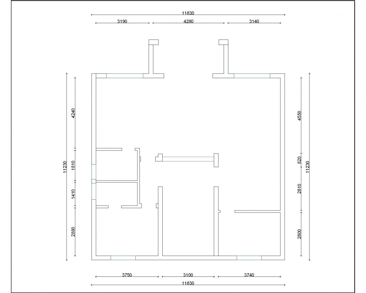
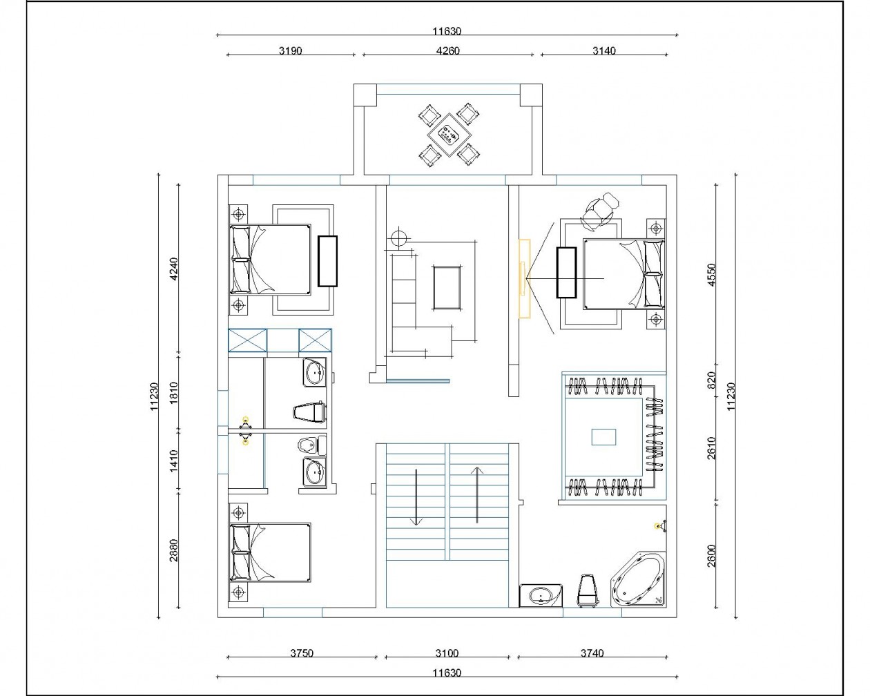
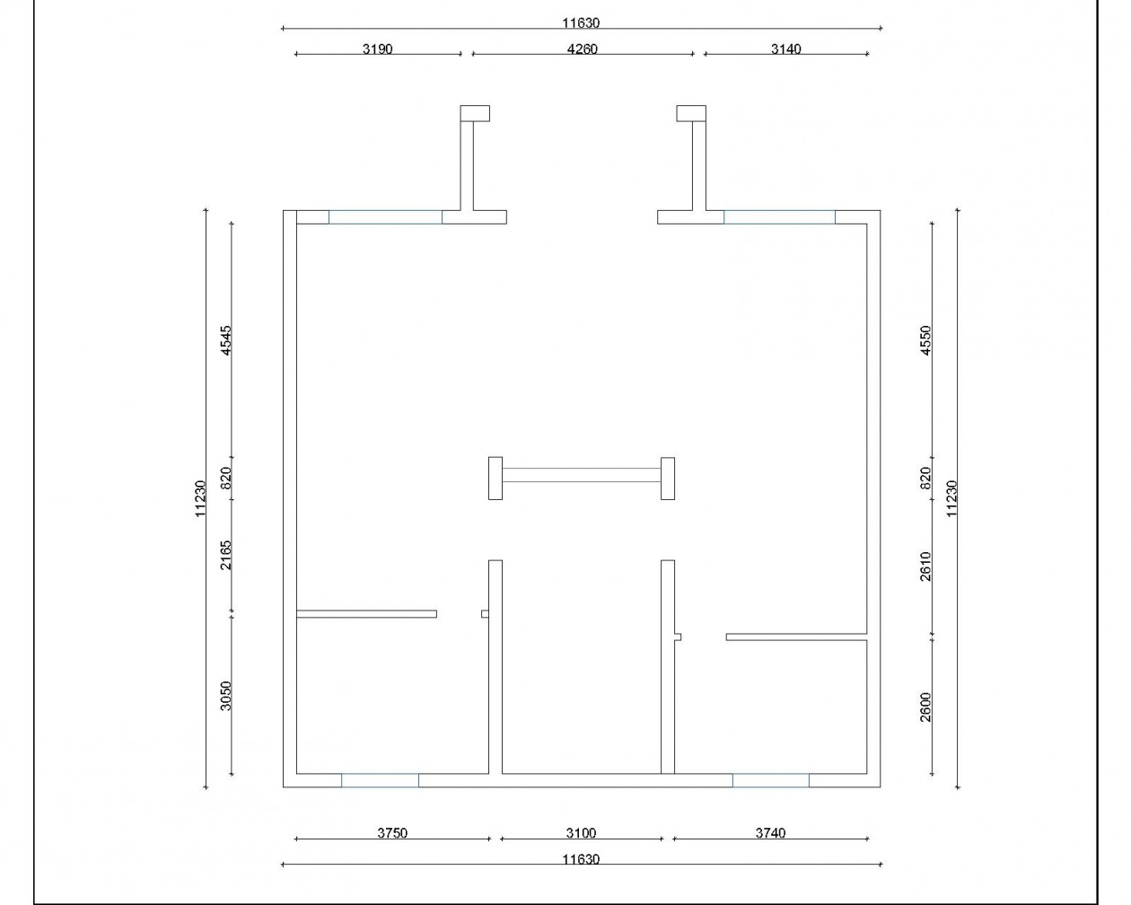
房主一家五口,父母住一楼,二楼三间卧室一间起居室,三楼儿子住,儿子有女友未婚,风格要求新中式,一楼要大气一点
新中式风格打造大气五口之家-1
新中式风格打造大气五口之家-2
新中式风格打造大气五口之家-3
新中式风格打造大气五口之家-4
新中式风格打造大气五口之家-5
新中式风格打造大气五口之家-6
南京喵熊网络科技有限公司 苏ICP备18050492号-4知末 © 2018—2020 . All photos and trademark graphics are copyrighted by their owners.增值电信业务经营许可证(ICP)苏B2-20201444苏公网安备 32011302321234号
客服
消息
收藏
下载
最近