查看完整案例


收藏

下载
项目名称:宜昌御景天地118平方
主案团队:舍居高端设计
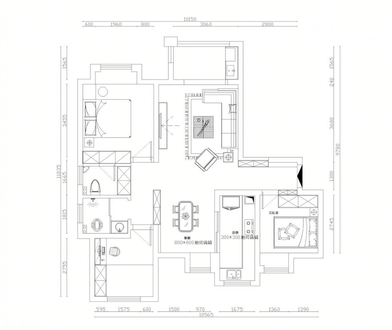
客户需求:业主是一位40多少岁做生意的个体户,这个房子是给儿子准备装修当婚房的,年轻的儿子喜欢比较简洁的装修氛围,而父亲喜欢沉稳的装修格调。年轻人和中年人的思维碰撞,最后都是不在一条战线上面。客户诉求比较繁琐,咱们先从平面改造合适的布局规划,后面再展示效果图我们怎么使用稳重中的极简。(客户诉求1.进门入户玄关对称,延伸空间感,2,主卧卫生间不需要淋浴空间,能否兼顾收纳储物功能。3,鞋柜摆放不堵空间?可拆除只有后段一部分墙。4,酒柜怎么摆放才能和餐厅显示一个整体不突兀?)
下面我们看看“绅士的优雅”
客服
消息
收藏
下载
最近










