查看完整案例


收藏

下载
Двухэтажный дом в клубном поселке «АртЭко» под Москвой построен по технологии фахверк компанией Fahverk-House. Архитектор Дмитрий Дроздов участвовал в проекте на всех его стадиях. «Когда работаешь с домом, у которого три стороны выходят на лес, приоритетной становится задача: не мешать этому лесу присутствовать в интерьере», — говорит автор.
Instagram
Сайт
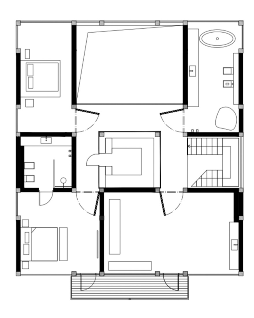
Резиденция состоит из трех корпусов: основного дома, бассейна, гостевого домика. Строения соединены галереей и навесом с автопарковкой, общая площадь резиденции — 475 кв. метров. «Концепция была предопределена: участки в поселке имеют схожий ландшафт, а дома выполнены в едином стиле по технологии фахверк с большой площадью остекления. Мое участие началось с посадки дома, с учетом примыкания участка к лесной полосе. Определившись с расположением и конфигурацией, параллельно начали разработку интерьера», — говорит Дмитрий Дроздов.
Заказчица — ценитель современного стиля, принимала самое активное участие в проекте. Из основных пожеланий — гостиная с каминной зоной, объединенная с кухней, галерея и бассейн со спа-зоной. «Утвердив проект, заказчица приехала на подписание акта и обратила внимание на несущие стойки в гостиной. Которые потребовала заменить. Иногда строители, словно волшебники, способны сотворить чудо: они убрали конструктивные стойки, заменив их на скрытую систему усиления. Но огромную ванну-чашу Antoniolupi все же пришлось переставить со второго этажа на первый», — вспоминает архитектор.
Цветовая палитра интерьера максимально нейтральная. «Белые оттенки «зеркалят» сезонность природы за окном и поддерживают единство дома и ландшафта. Вид на лес доминирует в пространстве, с ним не поспорить», — считает архитектор. Важным элементом дома он называет мрамор: в нем исполнены пол, акценты на стене, подиумы и консоли подвесных столешниц. «В целом, в своих проектах я стремлюсь создать объем, для которого материал вторичен и заменяем. Для меня важна форма, и я вижу ценность в пропорциях».
Обширное панорамное остекление внесло необходимость парящей кухни и подвесных столешниц. За внешней простотой скрыта встроенная система траверс. Все инженерные коммуникации спрятаны в техническом слое стен, что позволяет максимально использовать пространство. «Чтобы не прерывать панорамное остекление, мы применили систему фрамуг на электроприводе, формат которых разработан Fahverk-House. Интегрированная система автоматизации Jung KNX позволяет подстраивать управление светом, приводов фрамуг и штор под пожелания клиента»
«Основная часть мебели спроектирована специально для данного дома, в моих объектах это частое решение. В частности, библиотека с лицевой стороны и гардеробная внутри разработана индивидуально и реализована компанией Альфа Мебель. Важным элементом считаю шкаф итальянского бренда Lago со скрытой системой открывания, установленный при входе. А также диван Arketipo в каминной зоне и кровать Poltrona Frau в спальне. Кухня с фасадами из стекла произведена Giulia Novars. В ванных комнатах использована крупноформатная керамика Arch-Skin, ванну Antoniolupi дополняют смесители Gessi».
Автор:Наталия Постоева
Фото:Антон Бржзовский
分类:Загородный дом
语言:俄语
客服
消息
收藏
下载
最近




















