查看完整案例


收藏

下载
公寓室内设计, 上海, 中国
建筑设计:Atelier Yipan
面积:75 m²
项目年份:2020
摄影师: Hanzhi Gao, Zhuoying Wu
厂家:Blanco, Funen, Geberit, Hansgrohe, Ikea
设计团队:戴陈军, 吴卓颖,张晶琰(实习)
软装:孙迪
City:上海
Country:中国
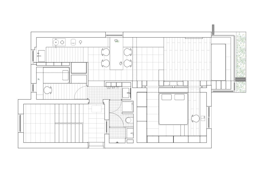
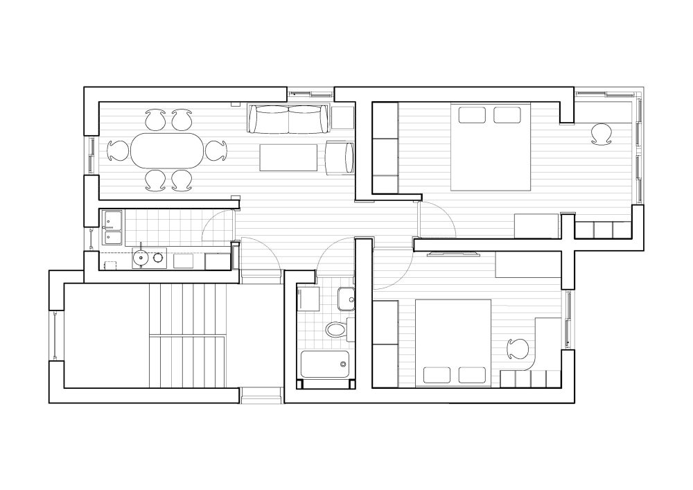
这是一套位于上海市中心的顶层公寓,是建筑师自己的房子。窗户是室内空间与城市之间的联系,透过窗洞可见的场景也影响着室内空间的设计。东侧窗外的水杉树随着季节的变化,提醒着我可以用“时间”来定义这个家。我试想:一个室内的家居空间是不是可以像一处室外的场地那样,随着时间的变化,不同的行为活动就会在场地中发生。抽象的时间维度在具象的日常行为生活中,被不断的感知。
基于这样的想法,增加空间之间的流通性与场地的公共性成为设计首要的策略。将“场地”中的一个连续贯穿两个方向的区域抬升了30厘米,以此让整个“场地”有了比较明显的区分。抬升的高度也重构了家庭成员的尺度关系。
如果空间的定义应该由行为来主导,那么家具就是其中需要被弱化的元素。所以我们将沙发、床垫,以半嵌入的方式与地面结合,是建筑的范畴。同时,我们将原本属于建筑范畴的地面、台面通过尺度的处理,转化成了家具。可能再也没有一种空间类型可以像家居空间一样,可以不断地模糊掉公共与私密之间的边界。
当就寝空间的移门被彻底打开,场地完整的形成后,公共性得到了最好的释放。当时间到了就寝的时候,移门关闭,私密性便开始形成。
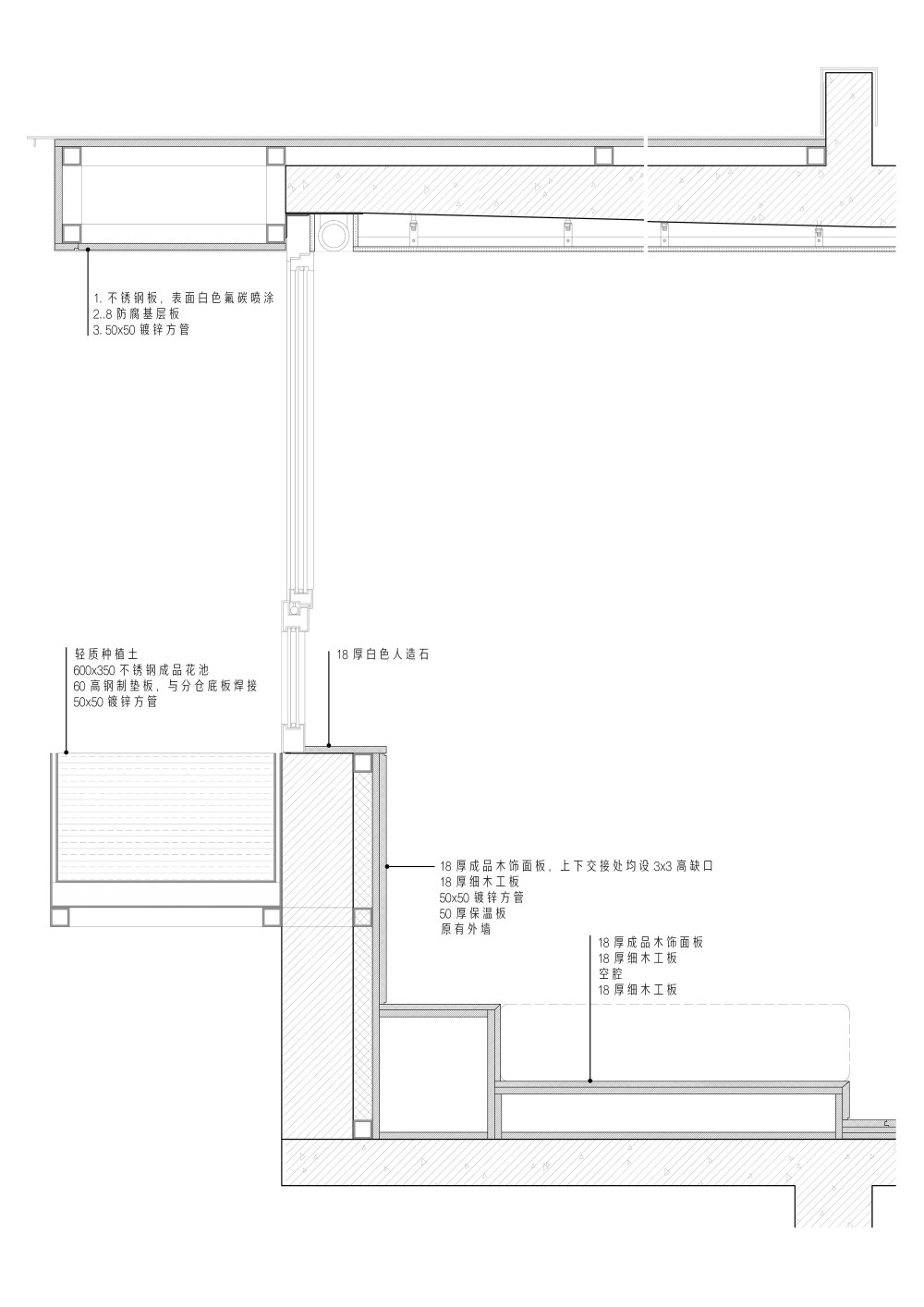
我们在南侧阳台增加一个景观花池,将视觉的聚焦于花池的景观上,从而弱化了建筑南侧的多层办公楼对室内空间的消极影响。从室内延展出去的白色雨棚、能完全打开的推拉折叠窗,都能最大程度的将室外环境延续到室内空间中。
对于一个小户型来说,储物空间的设置尤为重要。通过开放式储物、地柜式储物、侧柜式储物的方式,为每个物品找到他最合适的“家”。
项目完工照片 | Finished Photos
设计师:Atelier Yipan
分类:公寓室内设计
语言:简体中文
客服
消息
收藏
下载
最近



































