查看完整案例


收藏

下载
这是位于斯洛伐克Bratislava的一座住宅,建筑建于20世纪30年代,前身一直是作为仓库使用,直到现任屋主买下,聘请What Architects将这里改造成一间适合居住的空间,设计师面对这个格局混乱的建筑,进行了一系列的改造计划。
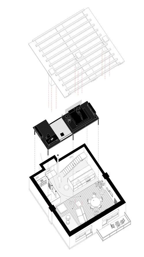
▲仓库的优势为:拥有良好的层高,所以设计师将空间划分为上下两层,下层作为生活区,上层作为睡眠区。
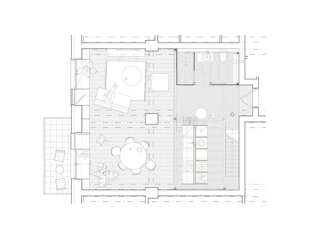
▲在拆除了不必要的隔墙后,整个公共区域呈现出明亮通透的开放式布局,由于原先建筑是作为仓库使用,所以对于家庭功能区的划分全部要靠设计师重新完成,设计师定制了一面橱柜,不仅满足功能需求也巧妙的划分出不同的区域。
▲保留下的立柱还可以感受到建筑的悠久历史,为了达到新与旧的平衡,设计师使用了大量的白色调与木料、石材,奠定空间清爽且具有包容感的框架。
▲原先额外覆盖的吊顶被拆除,设计师利用墙面材质上的变化还原着曾经的模样,覆盖层拆除后,空间的层高优势更加明显。
▲设计师并没有定制传统的大型储物柜,而是在不影响采光的情况下,贴着墙面定制了置物架,更为轻盈灵动,而物品斑斓的色彩则像是跳动的音符,让白色空间也有了活力与生机。
▲除了利用地面材质的变化、功能墙来划分区域外,设计师还在两个空间的过渡区安装了一面纱帘,看起来更加私密宁静。
▲厨房柜体连接着生活区与入口区,柜体的另一面是丰富的储物空间。
▲洗浴室使用了磨砂玻璃,可以很好的兼顾隐私与采光。
▲洗浴室配置的家具以简约小巧为主。
▲通过白色的金属楼梯可以达到上层的睡眠区,在这个空间里,即便是最为简单的白色调设计师都采用了砖块、金属、涂料等不同的表现方式。
▲将上层空间改为睡眠区,让每一角落都被充分使用。
▲利用白色的织网保护着上层空间的安全,柔和轻盈的属性与老旧的厚重木梁形成了鲜明的对比。
/What Architects
摄影/Nora 和 Jakub Čaprnkovci
客服
消息
收藏
下载
最近



























