查看完整案例


收藏

下载
每一个全案,都是私人订制
Customized for each project.
项目地址/海南 · 三亚
Location / Hainan · Sanya
项目类别/全案委托
Project Types / Total Solution
毕业时间/2021 . 06
Finish Time / Jun. 2021
设计团队/力设计
Design Team /Li Design
摄影/林峰
Photographer /Lin Feng
户型图
Plan
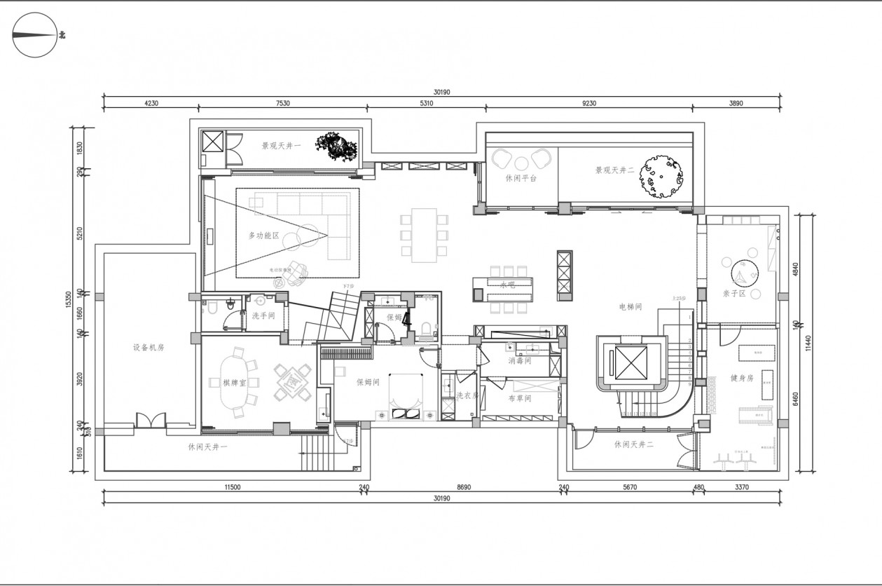
-1F 平面布置图
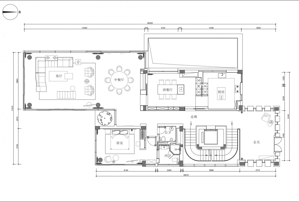
1F 平面布置图
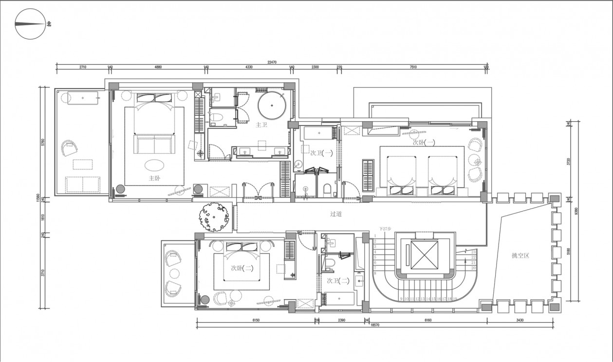
2F 平面布置图
关于设计:三亚位于海南岛最南端,是中国最南部的热带滨海旅游城市,是中国空气质量最好的城市;接到这个案子后,设计师与业主一家进行多次沟通,深刻体会业主的深度诉求。让每个走进这栋别墅的人都能够感受到主人知性的品味,也同时让业主拥有一栋带有个人气质,属于自己内心的别墅。
花园Garden
海南北纬 18° 线,它把夏威夷、加勒比海、迈阿密等度假胜地串联起来,而在中国,北纬 18°穿过的也正是度假胜地 —— 三亚。
玄关The Entryway
效果图/实景
在中国传统的建筑中,玄关有着悠久的历史,其前身为影壁,是院内与院外的隔断,可防煞、防泄、遮掩,以及美化住宅。随着时代的发展,居住方式的改变,影壁逐渐演化成精致、美观的玄关,造就另一番中式空间美景。
与以往的封闭式玄关不同,设计师利用镜面金属与镂空设计,结合超高挑空,打造出一个光与影错综复杂的空间。设计圆弧型吊顶搭配星光式的吊灯,当早晨阳光照进玄关,甚至一番美景。
客厅Living room
软装搭配需要别出一致,不超过自然美景但同时也要与之配合。蓝色单人沙发与窗外的蓝天池水对应,作为空间跳色不单调且高级,茶几金属质感,沙发布艺质感、摆件玻璃质感等共同组合,为这一个空间的增添亮点。
设计的意义不在意事物,而在于氛围和感官。落地窗外有泳池、花草树木蓝天,客餐厅刚好利用这天然美景,室内不添加冗余的设计,走既简单又高级路线,设计线条十分流畅。
餐厅Dining room
餐厅顶上经过客厅延伸过来,打造一个圆形吊顶,搭配气球吊灯,补充客餐厅所需光源。西厨部分设计在内侧,吧台使用白色大理石增加质感,柜门使用黑色烤漆哑光面板,哑光与亮光面搭配起来营造了一个高级的空间。
地下室
The Basement
地下室打造一个娱乐空间,使用涂料制作背景墙,可增加投影作为影音室的空间;吧台利用了长虹玻璃的凹凸质感与银狐岩板营造出一个奢华美观的氛围;餐桌旁增添一幅抽象但华丽的跳色画,给整个空间带来了不一样的感觉。
儿童玩耍区使用了鲜艳的色彩,别具一格!犹如马克·夏加尔一般,他的作品依靠内在诗意力量把个人惊艳的意向与形式上的象征和美学因素结合到一起。红与蓝,永恒优雅的组合,搭配金属打造出一个充满活力与青春的区域。
二楼主卧
Bedroom
效果图/实景
二楼主卧与楼下客餐厅一样,拥有自然的美景,落地窗必不可少,蓝色单人沙发与餐厅单人沙发颜色相互呼应,加上黑白灰高级的搭配,呈现出简约且高级的空间。
主卫使用白色大理石铺满墙地面,一片纯净下,仿佛视界就此静止,让心也随之变得平和起来,室内天窗洒落阳光的位置,搭配浴缸,是一番美景更是一番享受。
二楼次卧
Bedroom
次卧主要打造一个相对活力的卧室,所以使用鲜艳的橙色作为主色调,现场制作的硬包与床架选用同一布艺材质,金属作为点缀;单人沙发散发着优雅华贵的气息,边几非常有特色,是两只手掌组合的形状。
一楼次卧
效果图/实景
一楼次卧窗外就是室内泳池,吊顶设计把不可拆除圆柱包在里面,搭配现场制作的床靠背,整体简单美观,卧室内设有卫生间,可在炎炎夏日泳池玩耍后稍做休息使用。
二楼双人房
Bedroom
二楼次卧床背景使用的是有纹理凹凸质感的墙纸,两侧床吊灯给整个空间带来一丝的艺术气息,同样卧室内也带有卫生间,整体的灰色与卧室的深色床背景呼应。
客服
消息
收藏
下载
最近



























































